家门口建学校!通州这里将再添一所24班小学!

近日,北京市规自委发布了“关于《北京城市副中心0401街区FZX-0401-6077地块A332小学用地项目设计方案》公示意见反馈情况的通告”。

图片

为加大公众参与力度、广泛听取公众意见,《北京城市副中心0401街区FZX-0401-6077地块A332小学用地项目设计方案》于2025年2月5日至2025年2月12日期间,进行了网上公示,公示期间共收到公众反馈意见2条,共涉及3个方面,现将有关采信意见通告如下:



(一)属于我分局职责范围意见




1.公众反馈意见:

关于建筑间距问题。



建设单位及设计单位意见:

本项目西侧有现状财富东方住宅小区,在设计方案中拟建建筑与现有建筑考虑了消防间距、建筑间距及生活私密性间距等要求。本项目方案满足《北京地区建设工程规划设计通则(2003版)》第二章第四节2.4.2条,遮挡建筑为板式建筑,长边平行相对布置时,建筑朝向与正南夹角60°以上,建筑间距按1:1.5间距比例进行控制。



我局意见:

建设单位和设计单位意见属实,予以采纳。




2.公众反馈意见:

关于周边道路实施问题。



建设单位及设计单位意见:

本项目周边岳庄路、永顺东里北街、永顺中街已明确道路实施主体,由道路实施主体负责加快推进实施。道路名称以最终审定的地名规划为准。



我局意见:

建设单位和设计单位意见属实,予以采纳。




3.公众反馈意见:

关于设计方案连廊问题。



建设单位及设计单位意见:

本项目北侧1#综合楼与南侧2#食堂、风雨操场主体建筑间设置连廊进行连接,连廊为封闭连廊有顶盖,可满足在校师生不同天气条件下的内部空间使用需求。本项目在2#食堂、风雨操场建筑屋顶设置了露天活动空间。



我局意见:

建设单位和设计单位意见属实,予以采纳。



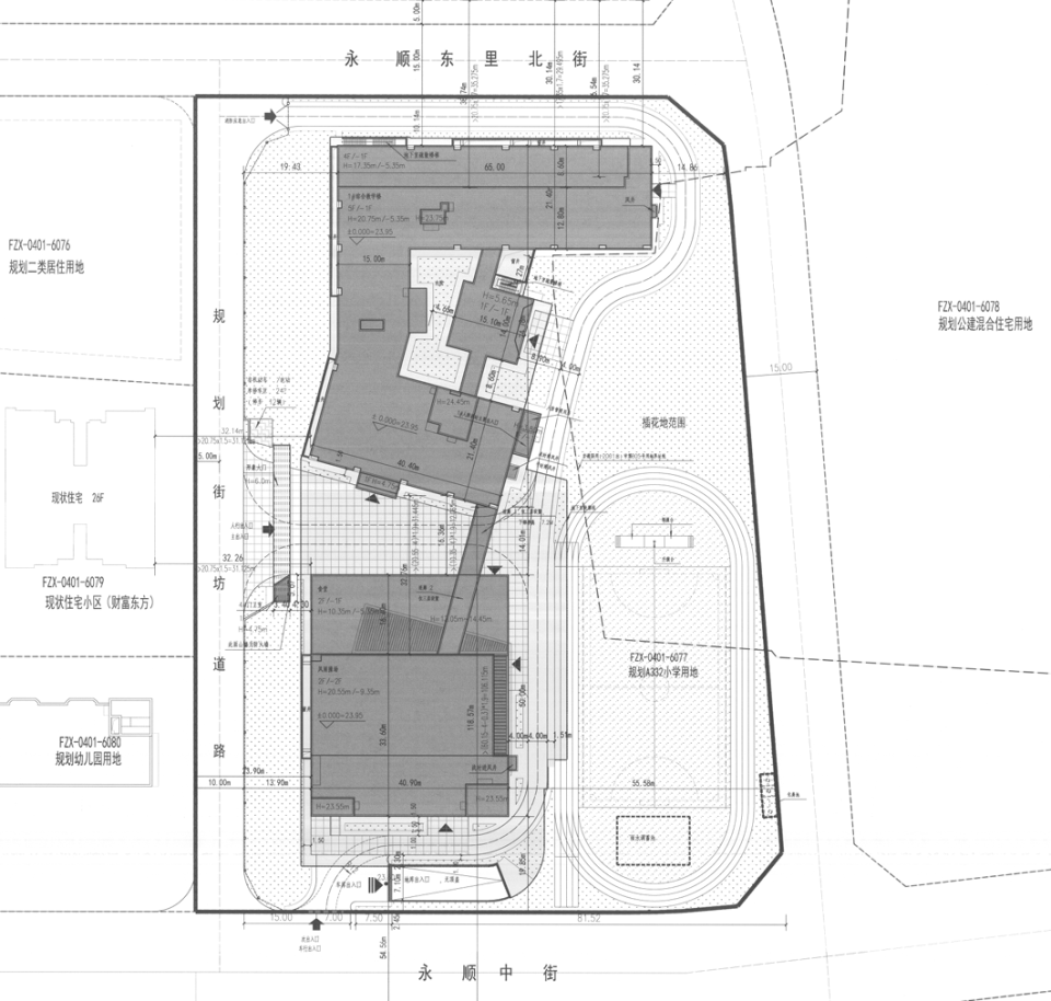
(二)总平面图公布


按照相关法律法规要求,现将上述建设工程设计方案总平面图予以公布,公布期限自即日起至全部建设项目建成后通过规划核验之日止。本项目各项经济技术指标以建设工程规划许可证最终审批为准。


图片


项目位于北京市通州区永顺镇,为北京城市副中心0401街区FZX-0401-6077地块,东至岳庄路,西临现状财富东方住宅小区,南至永顺中街,北至永顺东里北街;用地性质为A332小学用地。


项目建设用地面积为19380.66平方米总建筑面积为26632.40平方米,(其中地上建筑面积18385.46平方米,地下建筑面积8246.94平方米),最终指标及门楼牌编号以工程规划许可证为准,控高为21米,容积率为0.95



图片
图片

    

图片

▲位置示意图


据小编了解,此处地块位于早些年公示的《北京城市副中心0401街区FZX-0401-6066等地块规划综合实施方案》。

图片


用地位置:位于北京市通州区永顺镇,副中心04组团。


用地四至:北至通燕高速,南至永顺南街,东至新华北路,西至永顺路(最终路名以批复地名为准)。


用地面积:约34.55公顷(最终指标以钉桩成果为准)。


建筑规模:地上建筑规模约91.70万平方米(最终指标以审定方案为准)。


图片
图片


规划显示,规划公共服务设施8处,其中,规划12班幼儿园1处,规划24班小学1处规划500床机构养老设施1处,规划末端物流配送点1处、邮政所1处,规划派出所1处。


期待此区域加速建设!