好消息!天津这两所大学最新建设消息公布!附天津多所高校寒假放假时间!

近日,天津两所高校

南开大学

中国民航大学

公布了各自的建设新消息

小编这里已经为大家整理好了

赶快来了解吧

图片



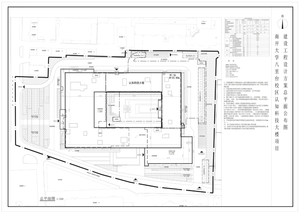
南开大学八里台校区认知科技大楼项目建设工程设计方案总平面图公布


12月1日,天津市规划和自然资源局南开分局公布“南开大学八里台校区认知科技大楼项目建设工程设计方案总平面图”,根据公示,该建设项目是一栋地上7层、地下1层的建筑物。


根据公示图——


认知科技大楼项目位于乐群北路北侧,总建筑面积≤50000㎡,绿地面积≥3800㎡,教育建筑面积≤44300㎡,机动车停车位≥127辆,非机动车停车位≥700辆。


图片
图片

图源:天津市规划和自然资源局



中国民航大学新校区二期最新进展





最新进展




近日,随着最后一方混凝土精准浇筑、顺利收面,中建八局中国民航大学新校区二期一标段项目,主体结构实现全面封顶,标志着项目建设正式转入,二次结构和装饰装修等施工阶段。





新校区介绍




中国民航大学新校区位于天津市宁河区未来科技城,规划以交通学科、经管学科为主,协同发展人文社会学科,承载科技创新和飞行、乘务、空管、机场等职业教育培训功能,布局中国民航大学飞行分校,空中交通管理学院等7个学院,规划总体承载学生规模1.5-1.8万人。


民航大学二期一标段项目,总建筑面积18.86万平方米,涵盖科研塔楼、学习中心、校医院等10个功能单体,是校区功能布局的关键组成部分


图片

图源:天天电台道


图片
图片


此外,大家对于什么时候放寒假

也是十分的关注

小编这里为大家整理了

天津部分高校的校历信息

来看看吧



天津多个高校校历盘点





天津大学




图片
图片

图源:天津大学官网





南开大学




图片

图源:南开大学官网





中国民航大学




图片

图源:中国民航大学官网





天津师范大学




图片
图片

图源:天津师范大学官网





天津理工大学




图片

图源:天津理工大学官网





天津外国语大学




图片
图片

图源:天津外国语大学官网


如果还想了解天津中小学寒假时间

以及2026年放假安排

关注【天津本地宝】公众号

微信对话框回复【放假

即可获取天津放假安排

图片





天津农学院




图片





天津科技大学




图片
图片

图源:天津科技大学官网





天津体育学院




图片

图源:天津体育学院





天津商业大学




图片
图片

图源:天津商业大学





天津城建大学




图片

图源:天津城建大学





天津财经大学




图片

图源:天津财经大学





天津仁爱学院




图片
图片

图源:天津仁爱学院


天津还有其他高校的校历

小编没有找到

欢迎朋友们在评论区为小编补充呀

📚📚📚


右下角,您点赞+推荐


回复【居民医保】获取天津26年居民医保缴费入口

回复【供暖】获取天津供暖服务咨询电话+最新消息(实时更新)

回复【阶梯摇号】获取2025天津阶梯摇号申请入口

回复【事业单位】获取2025天津岗位招聘信息

回复【购房】获取天津最新购房政策

回复【身份证】获取天津居民身份证换领指南

回复【驾驶证】获取天津驾驶证更换/补办地点

回复【居住证】获取天津居住证办理指南

回复【港澳通行证】获取天津各区办理地点

回复【护照】获取天津各区办理地点

回复【落户】获取天津海河英才&积分入户办理指南

回复【限行】获取天津最新限行政策

回复高峰通行证】获取通行证申请入口

回复【摇号】获取天津摇号申请流程、条件、结果查询入口

回复【地铁最新建设】获取天津各条地铁线路规划信息

▌说明:本文由天津本地宝整理发布,未经允许请勿转载!如涉及侵权或对版权有疑问,请邮件联系 dujuan@bendibao.com 删除处理

▌来源:天津本地宝综合整理

▌编辑:十二(王同军)