二房月租828元起!盐田区新三村家园公租房介绍

本期楼盘介绍

盐田区新三村家园

其地理位置及周边配套如何呢

本次介绍的房源是盐田区公租房项目

跟着小编一起看看吧



图片



新三村家园项目简介


✅项目简介

佳兆业新三村家园位广东省深圳市盐田区盐田街道洪安二街66号。项目北侧湖南师范大学附属深圳盐田山海学校-东南门;西北侧靠近地铁2/8号线盐田路站以及盐田区人民医院、盐田实验中学等;东北侧靠近庚子革命首义中山纪念学校和盐港中学;南侧为盐田港保税物流园区。

本次介绍的公租房项目是二房一卫(建筑面积约60㎡)。

图片





✅项目收费标准(仅参考)

配租租金标准:13.8元/平方米·月

物业管理费:3.98元/平方米·月

专项维修费:0.25元/平方米·

⭕单套二房户型每月租金约828元起(面积按60平方米计算)


注:单套房屋租金,在租金标准基础上,考虑楼层、朝向等因素修正确定,最终以合同为准;

物业服务收费按现行标准执行,如有变更,按最新标准执行。


💡推荐服务:


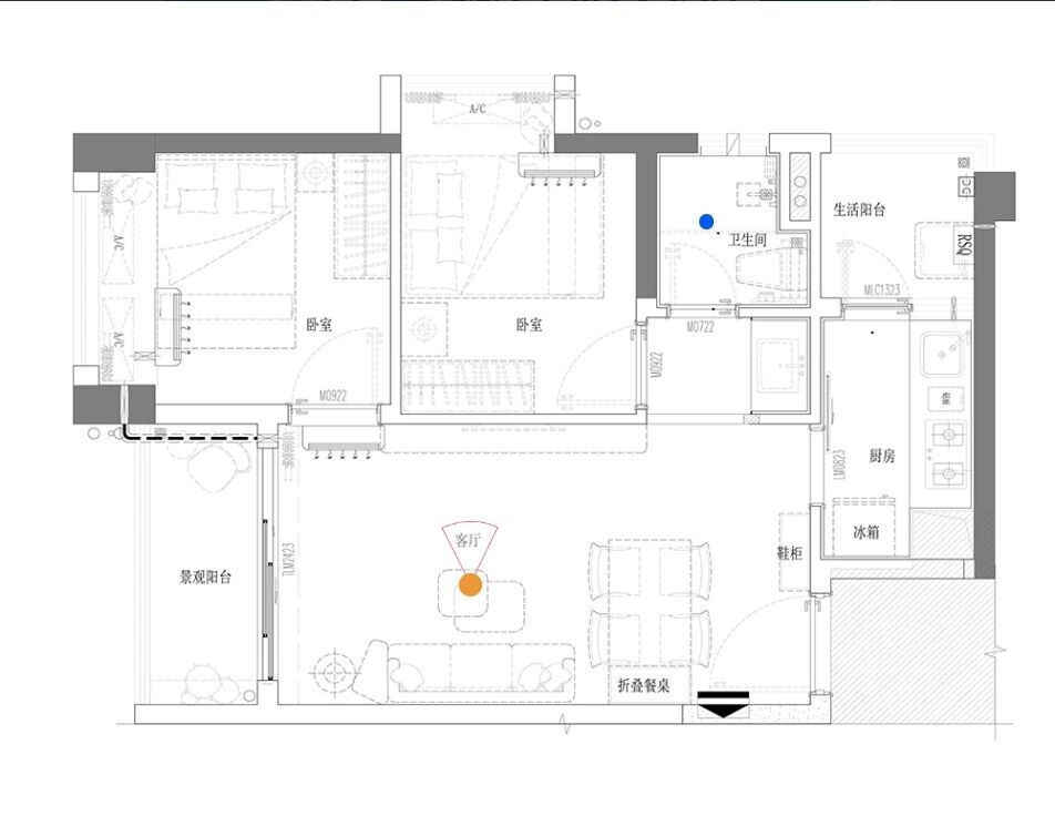
项目户型图


✅户型图

⭕二房户型

图片
图片


图片


图源:盐田区住房和建设局




交通情况及周边配套


✅交通情况

本项目北侧为东海四街靠近东海路、北山道,靠近东环一路;

西侧为洪安一街、靠近盐田路;

东侧为洪安一街、靠近洪安路、盐深及惠深沿海高速,自驾上高速约1公里;

南侧为明珠大道,靠近盐排高速。

⭕地铁:项目附近有地铁2/8号线盐田路站,步行距离约430米左右。

公交:项目附近有盐田东公交总站-公交站途径公交:B676路、M125路、M227路、M348路

具体途径各站点的公交线路信息以交通运输委员会官方网站为准

图片


✅周围学校

🏫湖南师范大学附属深圳盐田山海学校(九年一贯制公办学校)距离约259米;

🏫庚子革命首义中山纪念学校(公办小学)距离约431米;

🏫深圳市盐港中学(公办高中)距离约899米;

🏫盐田实验学校(公办初中)距离约1.1公里;

🏫深圳市盐田区乐群实验小学(公办小学)距离约933米;

🏫盐港小学(公办小学)距离约1.1公里;

🏫深圳外国语学校(公办中学)距离约1.3公里。

具体学位情况以盐田区教育局或承租小区周边学校发布的信息为准

图片


✅周边商业

项目周围缺少大型购物中心,距离约5.3公里有大梅沙8号仓,距离4.2公里有壹海城,乘坐地铁3站到达。

图片


✅附近医疗

深圳市盐田区人民医院东海社区健康服务中心,距离项目约313米;

深圳市盐田区人民医院(盐田院区),距离项目约707米;

深圳市盐田区人民医院沿港社区健康服务中心,距离项目约721米。


💡推荐服务:

图片


更多关于盐田区公租房相关内容

跳转【本地宝深圳房产】公众号

回复【盐田公租房】关键词

即可获取盐田区公租房最新消息

看房入口、申请入口等信息

图片





🏡往期房源介绍



深圳本地宝

【房产】栏目负责人

即可咨询投稿、房产推广


▌编辑:原野(张源)