月租420元起!位于龙岗区核心地段,龙岗区昭华里公租房介绍

本期楼盘介绍

龙岗区昭华里

其地理位置及周边配套如何呢

本次介绍的房源是龙岗区公租房项目

跟着小编一起看看吧


图片



昭华里项目简介


✅项目简介

本项目位于广东省深圳市龙岗区龙城街道建设东路50号,属于尚景社区。项目北侧靠近龙平路还有兴泰实验学校;西侧为天健郡城(商品房),靠近长兴南路;侧为御府名筑花园(商品房),靠近龙城大道;南侧靠近旺德福广场和宝能·all city购物中心、龙岗区政府、龙岗文化中心等。

项目附近有地铁16号线尚景站和盛平站,步行距离尚景站约560米,步行距离盛平站约550米。

本次介绍的房源是龙岗公租房项目单身公寓(建筑面积约35-40㎡)、无障碍住房(建筑面积约43㎡)

图片





✅项目收费标准(仅参考)

⭕配租租金标准:12-24元/平方米·月(新政策和原政策租金标准不同)

物业管理费为4.3元/平方米·月

专项维修费为0.25元/平方米·

⭕单套单身公寓每月租金约420元起(面积按35平方米计算)

注:单套房屋租金,在租金标准基础上,考虑楼层、朝向等因素修正确定,最终以合同为准;

物业服务收费按现行标准执行,如有变更,按最新标准执行。


💡推荐服务:


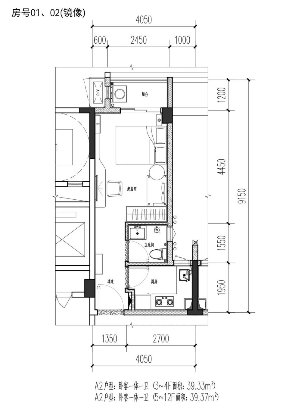
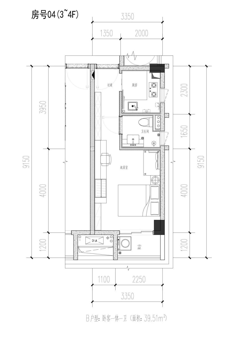
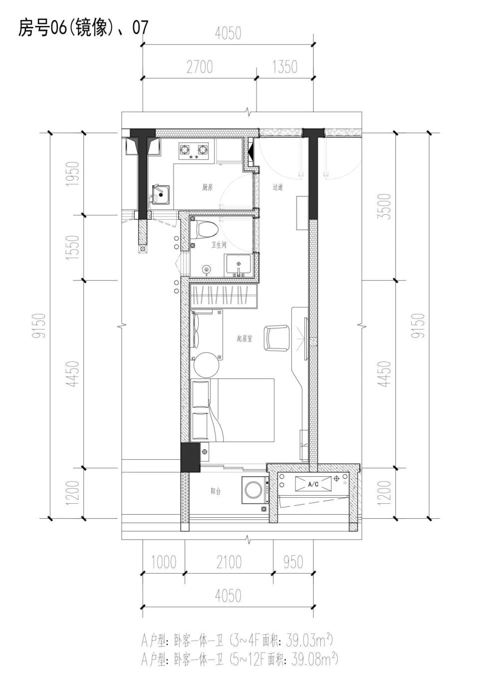
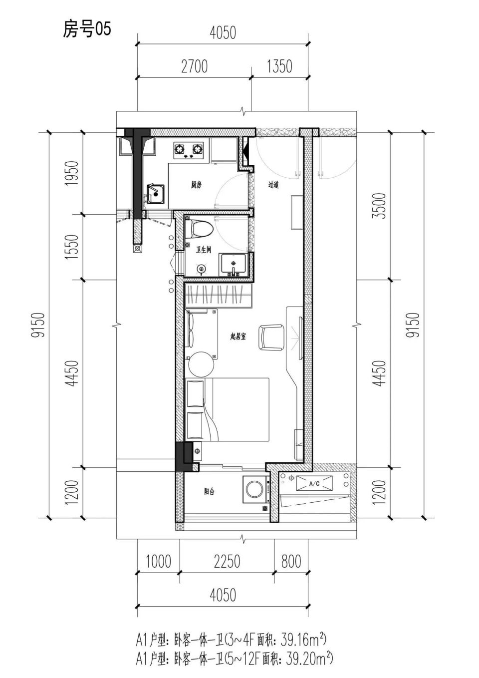
项目户型图


✅户型图

⭕单身公寓

图片
图片
图片
图片

图片

⭕无障碍住房户型

图片

图源:龙岗区住房和建设局




交通情况及周边配套


✅交通情况

本项目北侧靠近龙平路、回龙路;

西侧为龙城建设路,靠近长兴南路和龙岗汽车总站;

东侧靠近龙城大道、盛龙路;

南侧靠近松仔岭二路、龙福路、德政路和龙翔大道等。

位于龙岗区核心区域,交通完善方便

⭕地铁:距离地铁16号线尚景站和盛平站,步行距离约560米左右。

公交:项目附近300米左右有城龙花园-公交站,途径公交:M276路、M303路天健花园-公交站,途经公交358路、M303路;城龙花园-公交站,途径公交:M276路、M303路、高峰专线185路;尚景地铁站-公交站,途径公交:M306路、M317路

具体途径各站点的公交线路信息以交通运输委员会官方网站为准

图片


✅周围学校

🏫兴泰实验学校(九年一贯制民办学校)距离约231米;

🏫清林小学(公办小学)距离约619米;

🏫龙城小学(公办小学)距离约582米;

🏫深圳中学龙岗学校(集团)兰著学校(九年一贯制公办学校)距离约1.2公里;

🏫深圳未来双语学校(九年一贯制公办学校)距离约1.2公里。

具体学位情况以龙岗区教育局或承租小区周边学校发布的信息为准

图片


✅周边商业

位于项目南侧约359米有宝能-all city购物中心(龙岗店);

距离项目2公里内有龙城万科里、天虹商场(龙新店)、龙岗金基吉祥广场和万科广场(深圳龙岗店)等。

图片


✅附近医疗

深圳市龙岗区人民医院御府名筑社区健康服务中心,距离项目约138米;

深圳市龙岗区人民医院,距离项目约2.1公里;

深圳龙城医院,距离项目约3.3公里;

龙岗区妇幼保健院,距离项目约1.4公里。


💡推荐服务:


更多关于龙岗区公租房相关内容

跳转【本地宝深圳房产】公众号

回复【龙岗公租房】关键词

即可获取龙岗区公租房最新消息

申请流程、申请入口等信息

图片





🏡往期房源介绍



深圳本地宝

【房产】栏目负责人

即可咨询投稿、房产推广


▌编辑:原野(张源)