定了!三明这所学校要扩建

近日
三明市自然资源局发布
关于 三元区东新小学扩建项目(一期)

设计方案总平面图的批前公示

...............................................................................

经三明市三元区东新小学申请,我局拟批准三元区东新小学扩建项目(一期)的建筑设计方案,现将建筑设计方案总平面图予以批前进行公示,征求利害关系人意见。在公示期间,有关单位或个人对该项目审批有任何意见或建议的,可在公示期内以书面等法定形式向我局反映,逾期未提出的,视为放弃权利。

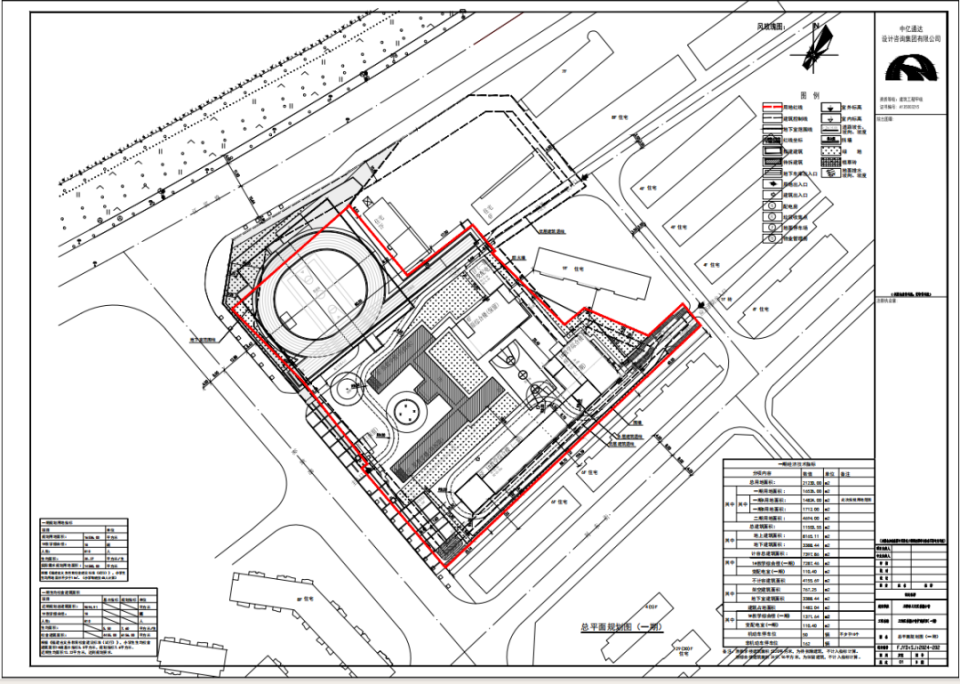
一、项目基本情况

1.项目名称:三元区东新小学扩建项目(一期)

2.建设单位:三明市三元区东新小学

3.建设位置:三明市三元区列东街道

4.建设规模:用地面积16536.0平方米,总建筑面积11553.55平方米,计容建筑面积7397.86平方米,项目具体规划指标及总平图方案详见附图。

二、公示日期

2025年10月20日-2025年10月26日

三、反馈方式

1.来信来访:三明市政务服务中心三明市自然资源局审核审批科(邮编:365000)

2.联系电话: 0598-7500056、0598-7500058

附图:建筑设计方案总平面图

图片

三明市自然资源局

2025年10月20日

根据此前项目招标公告显示
将新设24个教学班

每班45人,新增学位共1080个

其中一期计划新增18个教学班

新增学位810个

二期新增6个教学班

270个学位

图片
一起来看看效果图吧 ~
图片
图片
图片
图片
期待东新小学扩建项目
早日完工投入使用!
来源:三明市自然资源局 新媒体编辑:李雨青

【来源:三明市自然资源局】

声明:此文版权归原作者所有,若有来源错误或者侵犯您的合法权益,您可通过邮箱与我们取得联系,我们将及时进行处理。邮箱地址:jpbl@jp.jiupainews.com