郑州市人才公寓三居室户型房源及户型图汇总!

小伙伴们大家好呀

小编为大家整理过了

具有一居室/两居室的人才公寓

留言区有人询问小编三居室的信息

图片

今天小编就为大家汇总了

郑州市目前具有三居室户型的部分人才公寓

以及对应的户型图

同时文末还附有人才公寓配租指南

一起来看看吧~


郑州市具有三居室户型的人才公寓(部分)



✅本期为大家介绍的人才公寓有:

  • 兴达美寓

  • 陇西美寓

  • 华山美寓

  • 荥泽美寓

  • 东华美寓

  • 文化美寓

  • 商都美寓

  • 银屏美寓


小编提示:房源面积和租金均仅供参考,如有变动以实际为准


✅公寓具体的地址户型等详细信息跟随小编的脚步一起来看看吧:


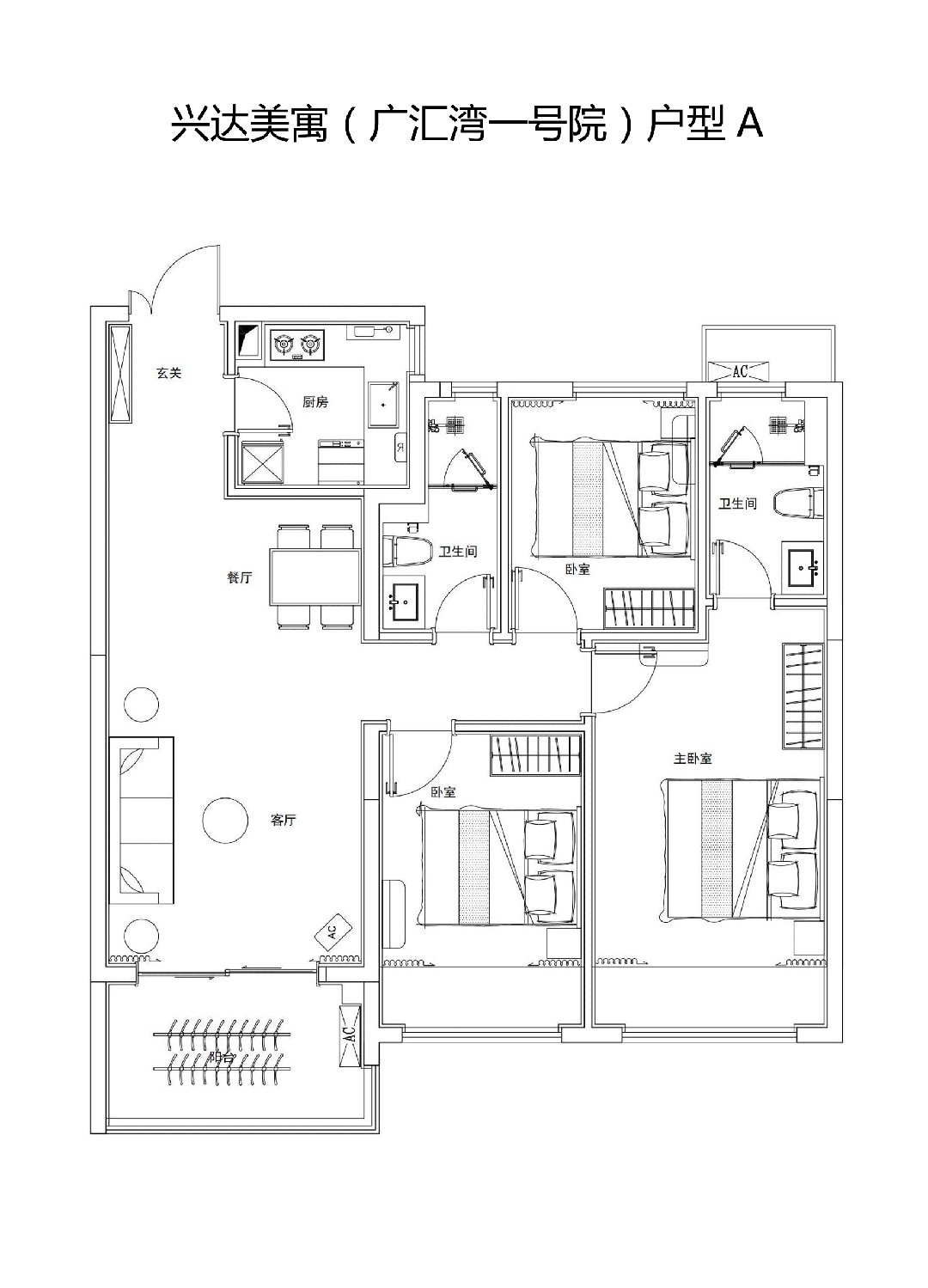
兴达美寓



1️⃣户型图:


一批次户型:



图片
图片

二批次户型:



图片


图片


图片


图源:郑州城发安居有限公司


2️⃣地址:金水区,姚店堤南路北、鸿宝路南路南。


3️⃣三居室面积:三室户型面积总区间在107-124㎡,月租1788元起



陇西美寓



1️⃣户型图:


一批次户型:


图片


图片

二批次户型:


图片
图片

陇西美寓1#楼标准层平面图

图片

三批次户型:


图片

图片

四批次户型:


图片

图源:郑州城发安居有限公司


2️⃣地址:中原区,石羊路与颖河路交叉口西南角。


3️⃣三居室面积:三室户型面积总区间在87-131㎡,月租1420元起



华山美寓



1️⃣户型图:


一批次户型:



图片
图片


二批次户型:



图片
图片

图源:郑州城发安居有限公司


2️⃣地址:中原区,建设路南秦岭路西。


3️⃣三居室面积:三室户型面积总区间在108-218㎡,月租1470元起


图片



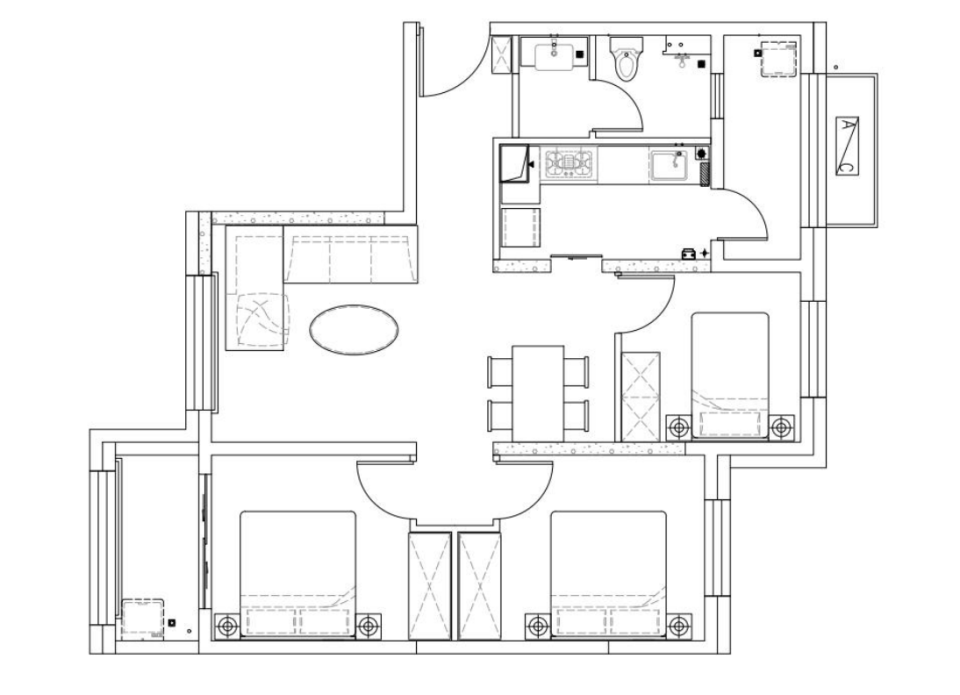
荥泽美寓



1️⃣户型图:


一批次户型:


图片


图片

B3户型三室两厅一厨一卫


二批次户型:



图片
图片

图源:郑州城发安居有限公司


2️⃣地址:荥阳市,G310国道北、塔山路东。


3️⃣三居室面积:三室户型面积总区间在97-111㎡,月租708元起



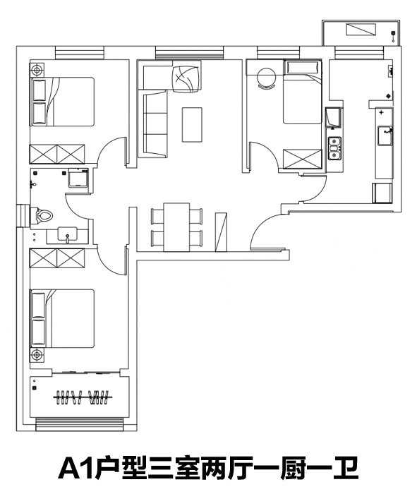
东华美寓



1️⃣户型图:


图片


图片


图片

A户型140㎡三居室

图片

B户型120㎡三居室

图片

C户型160㎡三居室


图源:郑州城发安居有限公司


2️⃣地址:中牟,文渊路东、秋翠路西


3️⃣三居室面积:三室户型面积总区间在120-160㎡,月租价格区间在673至1507元



文化美寓



1️⃣户型图:


二批次户型:


图片


图源:郑州城发安居有限公司


2️⃣地址:金水区红专路南、经七路西。


3️⃣三居室面积:三室户型面积总区间在122或130㎡,月租2502元起



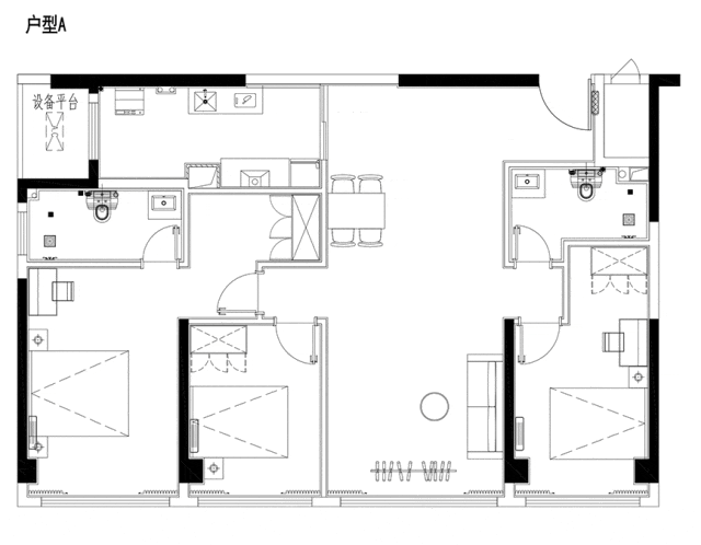
商都美寓



1️⃣户型图:


二批次户型:


图片


图片

M1户型:三室一厅95-96 ㎡


图源:郑州城发安居有限公司


2️⃣地址:南台路西,市场南街北。


3️⃣三居室面积:三室户型面积总区间在95-96㎡,租金价格区间为1250-1634元/月



银屏美寓



1️⃣户型图:


图片


图片


图片

图源:郑州城发安居有限公司


2️⃣地址:高新区 ,科学大道以北、桃花里以东、国槐街以南、银屏路以西。


3️⃣三居室面积:三室户型面积总区间在131-138㎡。

还有小伙伴想要了解

申请人才公寓的具体攻略

小编也给大家整理好啦

继续来看~


郑州人才公寓配租指南


✅配租及入住时间参考:郑州人才公寓一旦开放,之后就是常态化配租,有房源即可进行选房,上午9:00、下午16:00会集中释放房源。抢到房签订合同后,可在签订合同后3天内进行入住办理,未进行入住办理的房源会在第三天晚上12点自动释放


人才公寓租金参考(部分):

🔹郑州城发玉轩美寓:271元/月起

🔹郑州城发雪松美寓:505元/月起

🔹郑地嵩山美寓:580元/月起

🔹郑州城发江山美寓:862元/月起

🔹郑州城发商都美寓:1179元/月起

*以上房租来源郑好办,仅供参考,具体请以实际为准


配租对象:

在郑就业创业的大学专科 (技工院校全日制高级工)(含) 以上学历人才


申请条件:

  • 住房:申请人、配偶、未成年子女在郑州市内五区和郑东新区、郑州高新区、郑州经开区无自有住房,未承租保障性住房且未享受相关保障性住房货币补贴 ;

  • 年龄:年龄在45周岁 (含) 以下 。

  • 信用:申请人及共同申请人均未被依法依规列为失信联合惩戒对象。

  • 学历:大学专科(技工院校全日制高级工)(含)以上学历。

  • 高层次人才、博士和经市人社局认定的市重点产业急需紧缺人才不受学历和年龄限制,并予以优先保障。


申请入口:


图片

以上便是本期小编整理出来的内容啦

大家还有什么想了解的

不管是房型还是租金价格

还是其他任何有关人才公寓的问题

都可以在留言区询问哦

小编一定做到“知无不答”

图片

编辑:嘉一(韦嘉)