架构、工艺大升级 接替14900K的台式机处理器来了!酷睿Ultra 9 285K首测

图片

如果只是从处理器的技术规格来看,英特尔在去年推出的酷睿i9-14900K是一款非常不错的产品,标称睿频加速频率就达到6.0GHz,远超其他同类产品,而且还拥有多达24颗核心,其中8颗P Core性能核支持超线程技术,全核心工作频率可达5.6GHz。这也让它可以兼得优秀的单线程与多核性能,无论是用来游戏还是内容创建都非常不错。

然而问题就是要工作在高频率下,需要更高的电压,再加上从第12代酷睿开始到第14代酷睿使用的实际上是基于10nm Enhanced SuperFin技术的Intel 7工艺,并不先进,这也就给处理器带来了偏高的功耗与发热量,导致包括酷睿i9-14900K在内的部分第13、14代酷睿K系列处理器出现不稳定现象。因此英特尔不仅必须从硬件上彻底解决这个问题,还需要在解决问题的同时依然能为用户提供强大的性能,保持竞争力。现在这个解决方案终于来了,它就是代号Arrow lake的英特尔酷睿Ultra 200S新一代台式机处理器。

01/
这次不是“挤牙膏”
核心架构、生产工艺全都升级了!

图片

▲拥有8颗性能核与16颗能效核的酷睿Ultra 9 285K,拥有6颗性能核与8颗能效核的酷睿Ultra 5 245K处理器。

坦率地说,虽然第12代酷睿是一代创新之作,首次引入P Core性能核与E Core能效核的混合架构,但后续的第13代、第14代就有“挤牙膏”的嫌疑。它们都是使用基于10nm Enhanced SuperFin技术的Intel 7工艺技术,也都采用了LGA1700接口,以及基于GraceMont架构的E Core能效核,P Core性能核架构虽然从Golden Cove升级到了Raptor Cove,但并没有大幅改动,只是小幅地提高频率、增大二级缓存容量而已。在代号Arrow lake的英特尔酷睿Ultra 200S新一代台式机处理器上,一切都将有所不同。首先在外观上,英特尔酷睿Ultra 200S处理器将采用新的LGA1851接口,该接口保持了LGA1700的尺寸,仍为45mm×37.5mm,但增加了151个引脚,触点密度有所提高。同时处理器的IHS散热顶盖也要更高一些,有利于处理器内部堆叠更多小芯片。

图片

从正面看,酷睿Ultra 9 285K与酷睿i9 14900k最典型的差异是上下防呆缺口数量不同。

图片

酷睿Ultra 9 285K背面与酷睿i9-14900K(图右)相比也有明显不同,触点密度更高,中间用来安装电容的空间更窄,电容数量、排布位置差异明显。

在外观上,处理器的防呆口位置也有显著变化,如图所示,在第14代酷睿处理器旗舰酷睿i9-14900K上,上下各有两个防呆缺口,而在酷睿Ultra 200S的旗舰处理器酷睿 ULTRA 9 285K上,上下只有一个防呆缺口,让我们能轻松辨识谁是最新的英特尔处理器。两款处理器背面也有明显不同,图左的酷睿 ULTRA 9 285K由于有1815个金属触点,所以用来安装电容的空间明显要更窄一点,此外两款处理器背面电容的数量、排布位置也明显不同。

图片

酷睿Ultra 200S内部通过Foveros 3D高级封装技术,集成了计算核心、GPU核心、IO核心以及SoC核心。

处理器在外观上有这么大的变化,原因在于处理器内部也发生了很大的改变。从处理器架构上来看,酷睿Ultra 200S的内部与英特尔刚发布的Lunar Lake移动处理器非常相似。那就是首次在桌面处理器上采用了Chiplet设计,让不同的核心比如计算核心、GPU核心、IO核心以及SoC核心采用不同的工艺制造,并通过Foveros 3D高级封装技术将其整合在一起。这种工艺和核心解耦、各自采用更合适工艺制造的方式,带来了处理器设计上的重大变革。其中处理器的计算核心采用TSMC的N3B工艺,内置GPU用的是TSMC的N5P工艺,SoC和I/O模块用的是TSMC的N6工艺。即便是SoC和I/O模块所用的生产工艺也比基于10nm Enhanced SuperFin技术的Intel 7工艺先进。

图片

酷睿Ultra 200S内部采用的性能核与能效核核心全部升级为新的核心,并带来了IPC性能的大幅提升。

计算核心上的重大改进就在于P核的微架构从Raptor Cove进化至Lion Cove,E核微架构进化至Skymont,带来了相对上一代微架构性能的大幅度提升。其中Lion Cove的主要改进是增大规模、提高内部执行能力、增加更多执行端口并针对缓存进行大规模革新。比如整个分支预测宽度增加至之前的8倍、VEC和INT的乱序执行部分进行分离调度,此外还带来了更宽的调度单元、增强的内存子系统,并提升了缓存容量。其中每核心一级缓存容量从80KB提升到112KB,每核心的二级缓存容量从2MB提升到3MB。举例来说,虽然酷睿Ultra 9 285K与酷睿i9-14900K的性能核与能效核核心数量完全相同,但前者的二级缓存总容量可达40MB,后者只有32MB。同时性能核还可以16.67MHz为步进进行频率调节、超频,并带来了基于AI的电源管理以及针对核心面积和性能的优化。

图片

按英特尔官方数据,酷睿Ultra 200S虽然不支持超线程技术,但却能提供多达15%的多线程性能提升。 

Lion Cove还取消了超线程技术以及相关的晶体管资源,这应该是本次最重要的变化。举例来说酷睿 ULTRA 9 285K的8个P Core只有8条计算线程,而不像酷睿i9-14900K的8个P Core有16条计算线程。英特尔认为,目前E核心在很大程度上起到了超线程技术的作用,同时超线程技术也需要耗费大量的晶体管资源,因此本代处理器干脆彻底取消,以降低功耗、发热量以及成本。根据英特尔官方数据,Lion Cove的性能相对于上一代Raptor Cove的IPC性能提升了9%。

图片

酷睿Ultra 200S计算模块平面图,左右两侧的P Core、E Core能效核均被三级缓存包围,所以它们都能访问三级缓存。 

性能核心的改进如果说是显著提高的话,那么能效核心的改进就可以说是翻天覆地了。Skymont架构的能效核心改进主要是整体IPC的提高、能效核心现在也能在更高的工作负载范围内输出性能了,此外还带来了增强的矢量计算和AI计算等。整体来看,Skymont能效核心分支预测大幅度加强,前端指令解码来到了3×3也就是9宽度设计,整个架构规模、调度端口、缓存以及队列深度等都进行了极大幅度的扩充。在矢量计算方面,SIMD增加到4×128位,这意味着吞吐能力相比上代产品翻倍,对AVX-2、VNNI指令的支持也更为出色。

同时,Skymont的缓存也有大幅升级,不仅二级缓存的带宽提升了两倍,而且能效核可以和性能核一起共享三级缓存,实现36MB三级缓存全CPU核心共享。经过以上改进,Skymont架构E Core的IPC性能相对于上一代GraceMont提升了高达32%。简单总结的话,从Skymont能效核开始,E Core将变得不再是暗中为节能而设计的核心了,在规模大幅度扩大后,它相应地迎来了更高的性能,完全可以当做主核心来使用。

02/
首次在台式机处理器配备NPU
并拥有更强的核芯显卡

图片

酷睿Ultra 200S成为英特尔首次引入NPU的台式机处理器,其算力为13TOPS,处理器的总算力达到最高36TOPS。

而酷睿Ultra 200S处理器的另一大创新是首次在台式机处理器中内置了NPU神经网络处理器用于AI应用的加速,它集成的NPU与Meteor Lake处理器中的NPU技术水准相当,都是基于NPU3架构,其包含了2个神经计算引擎,每个神经计算引擎都拥有矩阵乘法和卷积单元,支持数据转换和激活函数等,能够支持包括生成式AI、计算机视觉、图像增强和协作AI方面的内容。之前大量需要CPU和GPU参与运算的内容,都可以转移至NPU上来,NPU可以提供最高13 TOPS的INT8算力。因此按计算核心、核芯显卡、NPU可提供的最高算力计算,酷睿Ultra 200S处理器最多可提供36TOPS的算力。

图片

酷睿Ultra 200S内置的Xe GPU拥有64个XVE向量引擎、4个光线追踪单元。

此外,酷睿Ultra 200S还集成了支持各种新技术的核芯显卡,即基于Xe-LPG架构的Xe GPU。考虑到酷睿Ultra 200S处理器的用户大多会搭配独立显卡使用,这款显示核心的规模不大,其内置4个Xe核心、64个XVE向量引擎、4个光线追踪单元,并拥有专属的4MB二级缓存,支持XeSS英特尔超级采样技术,DP4a AI加速指令,可以在一个周期内提供64次INT8计算,能够执行32位累加,效能更为出色。其总算力最高可达8TOPS,图形性能比第14代酷睿处理器内置的UHD Graphics 770核芯显卡高了2倍以上。

GPU内置的Xe媒体引擎不仅可以加速VP9、AVC、HEVC以及AV1等常见的视频编码解码器,还能对索尼最新推出的8K XAVC视频编解码器提供硬件加速,该编解码器现在已经出现在Adobe 的专业视频制作软件中。根据英特尔官方规格,其媒体引擎最高可硬解8K@60fps 10-bit HDR视频,硬件编码8K@120fps 10-bit HDR视频。

03/
频率有升有降
工作规格解析

英特尔首批将推出从酷睿Ultra 5到酷睿Ultra 9总计5款处理器,其中两款是KF系列产品,没有内置核芯显卡,但全系处理器都配备算力为13 TOPS的NPU。从Ultra 5到Ultra 9的P Core性能核与E Core能效核数量配置与第14代酷睿处理器的酷睿i5到酷睿i9其实完全相同,比如酷睿Ultra 7 265K与酷睿i7-14700K都配备了8颗性能核与12颗能效核,酷睿Ultra 9 285K与酷睿i9-14900K则都配备了8颗性能核与16颗能效核。但由于酷睿Ultra 200S处理器不支持超线程技术,所以它们的计算线程数量都会比同级的第14代酷睿处理器少。

图片

酷睿Ultra 200S系列处理器的首发阵容与详细技术规格

为了追求更稳定的运行、更低的功耗与发热量,此次酷睿Ultra 200S处理器的P Core性能核的工作频率相对第14代酷睿处理器也有小幅降低——酷睿Ultra 9 285K的最高睿频频率从酷睿i9-14900K的6.0GHz降至5.7GHz;酷睿Ultra 7 265K/KF的最高睿频频率从酷睿i7-14700K/KF的5.6GHz降至5.5GHz;酷睿Ultra 5 245K/KF的最高睿频频率则从酷睿i5-14600K的5.3GHz降至5.2GHz。但为了保证多线程性能的输出,英特尔小幅提升了酷睿Ultra 200S处理器的E Core能效核的工作频率。

其中酷睿Ultra 9 285K的E Core最高睿频频率从14900K的4.4GHz提升到4.6GHz;酷睿Ultra 7 265K/KF的E Core最高睿频频率从14700K的4.3GHz增加到4.6GHz。而酷睿Ultra 5 245K/KF的能效核频率提升最多,因为酷睿i5-14600K的E Core能效核睿频频率只有4.0GHz,但酷睿Ultra 5 245K/KF的E Core能效核睿频频率提升了多达600MHz,也就是说所有酷睿Ultra 200S K系列处理器的能效核睿频频率相同,均为4.6GHz,这与以前酷睿处理器按档次定频率的做法完全不同。

可能正是由于E Core能效核频率的提升、NPU模块的增加、图形核心性能的提升,酷睿Ultra 200S处理器部分产品的标称最高睿频功耗与第14代酷睿处理器相比,没有太大不同。处理器PL1基础功耗都是125W,酷睿ULTRA 9与酷睿ULTRA 7系列处理器的最高睿频功耗为250W,比第14代酷睿处理器的i9、i7产品仅低了3W。酷睿Ultra 5的最高睿频功耗则有明显降低,从酷睿i5-14600K的181W降低到了159W。

图片

酷睿Ultra 200S系列处理器的内存支持能力得到提升,标称内存支持速率可达DDR5 6400,并支持不同类型的内存。

此外,酷睿Ultra 200S系列处理器的内存支持与PCIe扩展能力都有加强。处理器最多可提供24条PCIe通道,其中包括20条PCIe 5.0通道,这也让英特尔平台终于可以同时使用PCIe 5.0 x16的显卡与PCIe 5.0 x4的SSD,且都不需要分享带宽而损失性能。酷睿Ultra 200S系列处理器的标称内存支持能力则提高到DDR5 6400,但不再支持DDR4内存。其最高支持内存容量可达192GB,单根内存插槽最高支持48GB,且可支持UDIMM、SODIMM、CUDIMM、CSODIMM多种不同类型的内存。而其中的CUDIMM即Clocked Unbuffered DIMM(CUDIMM)时钟驱动器内存极有可能在酷睿Ultra 200S系列处理器上大展宏图,我们将在后文为你介绍。

图片

总的来看,酷睿Ultra 200S系列处理器采用了新的工艺、内部架构也迎来了翻天覆地的升级,但它相对于第14代酷睿处理器的性能核工作频率更低,计算线程数更少,那么新一代酷睿Ultra 200S处理器在实际使用中是否能带来更好的性能,更低的功耗与工作温度呢?接下来就让我们通过酷睿Ultra 9 285K与酷睿i9-14900K两代旗舰处理器的碰撞来得出答案。

04/
专为酷睿Ultra 200S K系列处理器打造
顶级ROG Z890主板来助力

图片

酷睿Ultra 200S系列处理器+Z890芯片组主板可以带来强大的扩展能力、丰富的功能

由于酷睿Ultra 200S系列处理器采用LGA1851接口,所以以前安装LGA1700插槽的700系主板不能使用它们,用户必须购买最新的800系主板,比如首批上市的Z890主板。在芯片组技术规格上,Z890与Z790相比变化不大,仍是主要为电脑提供更强的扩展能力,其最多可提供24条PCIe 4.0通道,与酷睿Ultra 200S一起能带来总共48条PCIe通道。在USB接口上,它最多可提供10个USB 3.2 Gen 2接口或5个USB 3.2 Gen 2x2接口,主板厂商可按产品设计需求进行配置,并能提供最多8个SATA 3.0接口。而48条PCIe通道除了用于显卡外,还能为Z890主板提供多个M.2 SSD接口,并可用于连接独立的雷电5控制器、英特尔Killer Wi-Fi 7无线网络芯片,使得Z890平台最多可提供4个雷电5接口,支持Wi-Fi 7+蓝牙5.4无线模块,以及2.5G有线网络的接入。

图片

图片

图片

主板配备了合金背板

图片

主板IO装甲内的Polymo Lighting II RGB灯效

为了充分释放出酷睿Ultra 9 285K的性能,我们特别搭配ROG专为K系列高端处理器设计的ROG MAXIMUS Z890 HERO主板。外观上,它延续了HERO系列主板的深色调风格,其厚重的金属质感、镀镍表面、时尚的轮廓以及大型M.2和芯片组散热器上的立体视觉效果颇为霸气、抢眼。同时该主板还配备了合金背板,可从背部分摊供电芯片温度,降低供电温度,并防止主板变形,对主板形成全面覆盖,保护主板背面免受外力划伤。ROG MAXIMUS Z890 HERO还拥有最新的Polymo Lighting Ⅱ灯效,灯效模块内置于I/O装甲中,能为ROG标志提供更具动感的RGB灯效。

图片

ROG MAXIMUS Z890 HERO主板上的LGA1851插槽

图片

LGA1700处理器插槽,最明显的区别还是它中间安装电容的空间更宽,防呆卡扣上下各有两个。

相对于以往的HERO主板,ROG MAXIMUS Z890 HERO主板最大的不同就是采用了LGA1851插槽,对比以前的LGA1700插槽,它的针脚密度更高,与处理器背面类似,LGA1851插槽中间安装电容的空间相对LGA1700插槽更窄,插槽中央陶瓷电容的数量、排布方式也有明显区别。同时与处理器一样,LGA1851插槽的防呆卡扣只有右上、右下各一个,而LGA1700插槽总共有四个,区别还是很明显的。

图片

主板采用了22+2+1+2相供电设计

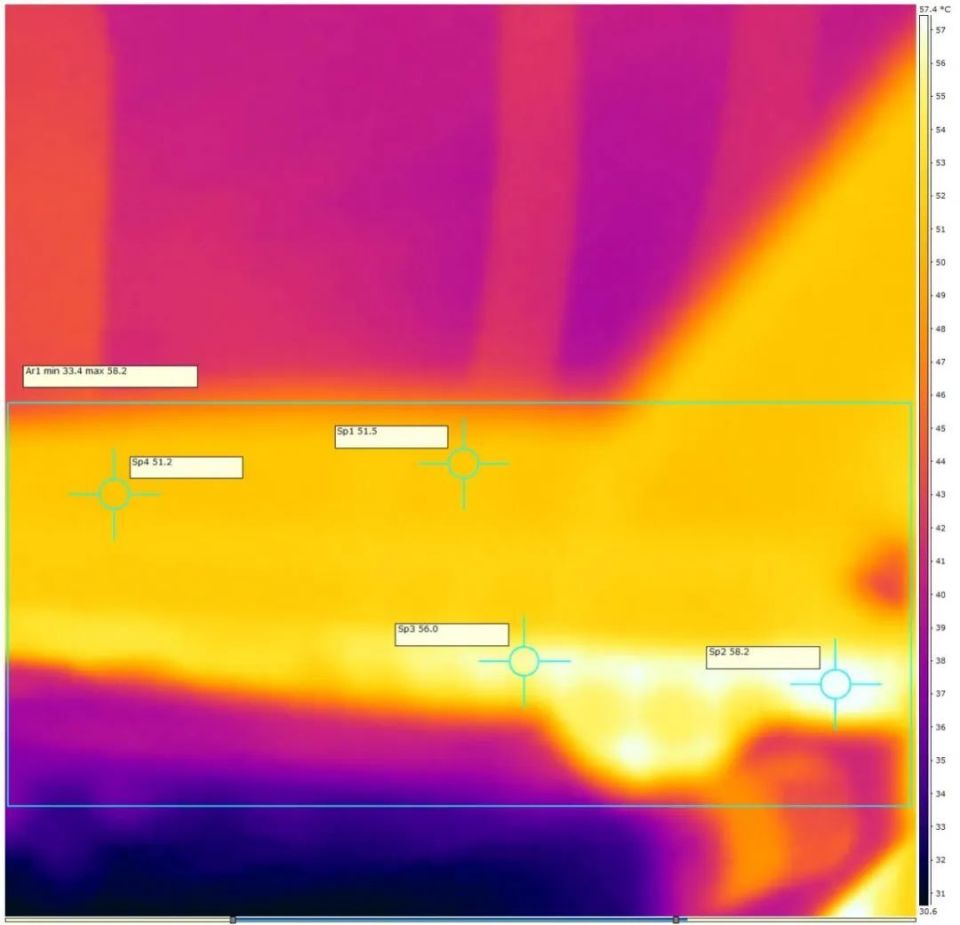
尽管酷睿Ultra 200S处理器标称的最大睿频功耗只有250W,但为了充分发挥出酷睿Ultra 9 285K这类24核心、24线程旗舰处理器的最大性能,以及超频能力,ROG MAXIMUS Z890 HERO主板采用了非常庞大的22(Vcore、110A MOSFET)+2(VCCSA、90A MOSFET)+1(VCCGT、90A MOSFET)+2(VNNAON、80A MOSFET)相供电设计,并搭配双8Pin ProCool Ⅱ高强度供电接口,在高电流状态下更稳定、效率更高的MICROFINE粉末化合金电感,具备10000小时工作寿命的日系10K固态电容等高规格元器件。根据热成像仪观察,当酷睿Ultra 9 285K使用AIDA64 FPU烤机半小时后,主板供电电路的最高温度还不到60℃,此时主板供电电路的最高温度为58.2℃。

图片

通过FLIR热像仪观察,在酷睿Ultra 9 285K以284W功率烤机半小时后,主板供电电路的工作温度并不高,最高温度在58.2℃左右。

其中处理器核心与核显供电电路每相搭载支持110A负载的SPS Power Stages Mosfet。这也就意味着该主板的22相CPU核心供电电路理论上最高可支持2420A的电流,可轻松支持所有酷睿Ultra 200S处理器。同时为了提升供电电路稳定性,该主板还配备了由 L形热管连接的超大一体式I/O+VRM供电电路散热装甲,可以有效增加散热表面积,并通过高导热系数导热垫与MOSFET紧密接触,实现快速降温。

图片

主板采用的NitroPath内存插槽,最高可支持DDR5 9200内存。

图片

主板采用的NitroPath内存插槽,由图示可以看到它将内存插槽引脚向内折叠,使得Stub线长度缩短了多达70%,内存插槽的支持速率提高400MT/s。

为了让酷睿Ultra 200S处理器支持高速率内存的能力得到充分发挥,在ROG MAXIMUS Z890 HERO主板上,ROG也引入了最新的NitroPath内存插槽。所谓NitroPath内存插槽是对内存插槽的引脚布局采用了一种新的方法,它通过将引脚向内折叠来缩短每个引脚的短桩线即Stub线长度,可缩短多达70%,大幅降低了内存高速率运行时的信号反射,保持了信号完整性,因此它可以让内存工作在更高的速率,。将处理器支持内存的速率提高400MT/s,内存速率最高可支持到DDR5 9200。同时它还比普通内存插槽更坚固,可以提供多达57%的插槽保持力。

图片

主板提供了大量扩展插槽,包括3个PCIe 5.0 x4 M.2 SSD插槽,以及一根PCIe 5.0 x16显卡插槽。

图片

主板引入了新的Q-Release Slim显卡插槽,拥有金属强化层。

图片

在Q-Release Slim显卡插槽上取出显卡,只需按住主板、向上拉动显卡即可,无须再按额外按钮。

借助Z890芯片组与酷睿Ultra 200S处理器提供的48条PCIe通道,ROG MAXIMUS Z890 HERO主板也提供了多个扩展接口,包括设计更简洁的Q-Release Slim显卡插槽。在这种显卡插槽上,无须任何按钮,无须用户扳动显卡插槽上的卡扣,用户只需要用一只手按压主板,以防止它在插拔显卡时移动,再握住显卡的左侧(靠近显卡视频输出接口的位置),向上拉动显卡就能将显卡从插槽中轻松取出。

图片

按下亮色的按钮即可取下M.2 SSD散热器

图片

▲主板提供了6个M.2 SSD插槽,每个插槽都有便捷的安装卡扣,无须使用螺丝刀就能完成M.2 SSD的安装、固定。

而主板上的6个M.2 SSD插槽,其中3个支持PCIe 5.0 x4标准,另外3个支持PCIe 4.0 x4。每一个M.2 SSD接口都配备了散热装甲、导热垫,以帮助SSD快速降温。而且M.2 SSD的安装非常简单,ROG为SSD设计了新的卡扣、安装按钮,用户只需插入SSD,将SSD向下按压,卡扣即会自动固定SSD,取下SSD时只需向下扳动卡扣与安装按钮即可卸下散热片与SSD,非常简单。

图片

M.2 SSD插槽上标有左右箭头的方块就是M.2 Q-Slide扣具

如果用户使用的是M.2 2240、M.2 2260这些小型化SSD,ROG还非常贴心地为用户带来了M.2 Q-Slide扣具,它内置一个闩锁机构,可沿轨道滑动,以将低于M.2 2280长度的SSD牢牢地固定。该主板还提供了4个SATA接口和1个支持PCIe 4.0 x4通道的SlimSAS接口,令用户可以连接各类存储设备,具备强大的拓展能力。

图片

主板提供了两个雷电4接口,以及Wi-Fi 7+蓝牙5.4无线模块。

功能方面,ROG MAXIMUS Z890 HERO主板不仅也有两个接口带宽达40Gbps的雷电 4接口,还采用了双有线网卡配置,包括带宽是2.5Gb网卡两倍的瑞昱RTL8126 5Gb有线网卡,并搭载了英特尔 Wi-Fi 7+蓝牙5.4无线网卡。Wi-Fi 7网卡支持高达320MHz的频道宽度,可以有效增加网络带宽上限。借助4K-QAM字符的使用,理论上Wi-Fi 7的传输速率可以获得20%的提升。具体到规格上,其使用的英特尔Wi-Fi 7无线网卡最大无线传输带宽可达5.8Gbps,相对于4084Mbps的顶级Wi-Fi 6无线网卡有很大提升。

图片

主板的Wi-Fi 7天线采用了易插拔设计,直接插入主板背板的天线插孔就能完成安装。

图片

主板包装中提供了ROG USB驱动盘、ROG开瓶器

同时包装盒里附送了易插拔、可折叠式设计的Wi-Fi 7天线,只需约1秒时间,用户直接将天线接头插入插孔就能完成安装。ROG还为该天线设计了磁吸底座,可轻松固定在机箱上。主板包装中则提供了ROG USB驱动盘、ROG开瓶器等有趣、实用的小配件。

图片

由瑞昱ALC4082 Codec+ES9219Q SABRE DAC芯片+专业音频电容组成的SUPREMEFX音频系统。

在音频设计上,该主板也采用了豪华的硬件阵容,它配备了输出信噪比为120dB、提供10条DAC通道的瑞昱ALC4082 7.1声道Codec,并搭配“谐波失真+ 噪音”仅-114 dB、拥有121dB动态范围 (DNR)、130dB信噪比的ES9219Q SABRE DAC芯片,再加上专业音频电容的助力,能为用户带来震撼的音频体验。

图片

ROG MAXIMUS Z890 HERO主板也拥有AI智能超频、AI智能散热Ⅱ、AI智能网络Ⅱ三大功能。

除了强大的硬件配置,该主板还拥有ROG传统的AI智能优化技术,包括AI智能超频、AI智能散热Ⅱ、AI智能网络Ⅱ等多种功能。其中AI智能超频可以预测评估CPU超频潜力和系统散热环境,提供调校建议,帮助普通用户实现稳定超频。AI智能散热Ⅱ则可自动管理并控制主板连接的风扇,监控系统负载和处理器温度对风扇转速进行动态调节,不仅可以提供优秀的散热性能,还能有效控制风扇噪音。而AI智能网络Ⅱ则可使用流量监视器监控当前Wi-Fi信道的使用情况,并可通过信道切换功能移动到不那么拥塞的信道上,以提高网络传输性能。此外AI智能网络Ⅱ还能检测Wi-Fi信号强度,推荐用户将天线指向信号强度高的方向,而GameFirst功能则可通过智能算法有效降低网络游戏的延迟。

图片

在主板BIOS中,开启NPU BOOST加速引擎,选择合适的加速等级,就能实现NPU一键超频。

更值得一提的是,现在处理器内部的NPU也可以超频啦!针对酷睿Ultra 200S处理器,ROG MAXIMUS Z890 HERO主板在BIOS中加入了NPU BOOST加速引擎,设置有Level 1~3三个等级,数字越高,超频幅度越大。我们也将在后面进行实际测试。

图片

 ▲本次ROG还在BIOS中加入了Q-Dashboard实时仪表盘显示功能,仅需一张图就能看到主板现在所有连接设备的信息,前方以绿点标注,点击该设备就能自动前往对应的设置页面,非常方便

图片

▲测试中我们选用ASUS Advanced OC Profile华硕高级超频配置,并将ASUS MultiCore Enhancement华硕多核心增强选项设置为Remove ALL limits即移除所有功耗、电流限制,最大化地释放处理器性能。

总体来看,ROG MAXIMUS Z890 HERO是一款规格高、配置优秀、功能丰富的主板,非常适合采用酷睿Ultra 9、酷睿Ultra 7处理器的用户。


ROG MAXIMUS Z890 HERO主板产品规格

接口:LGA1851

板型:ATX

内存插槽:DDR5 ×4(最大192GB、最高DDR5 9200)

显卡插槽:PCIe 5.0 x16 ×1

PCIe 4.0 x4 ×1

扩展接口:PCIe 4.0 x1 ×1+PCIe 5.0 x4 M.2 SSD ×3+PCIe 4.0 x4 M.2 SSD ×3+PCIe 4.0 x4 SlimSAS ×1+SATA 6Gbps ×4

音频芯片:ROG SupremeFX 瑞昱ALC4082 7.1声道

网络芯片:英特尔2.5G+瑞昱5G有线网卡+联发科Wi-Fi 7+蓝牙5.4模块

背板接口:雷电4 Type-C+USB 3.2 Gen 2 Type-A/C+USB 3.2 Gen 1 Type-A+HDMI+RJ45+模拟音频7.1声道接口+光纤S/PDIF

05/
搭配顶级的ROG龙神3 EXTREME 360水冷散热器

图片

为了在测试中完全释放出酷睿Ultra 200S处理器的性能,我们还搭配了顶级的ROG龙神3 EXTREME 360水冷散热器。它采用了Asetek与英特尔合作设计的优化冷头底板设计,针对酷睿Ultra 200S进行了高度的匹配。其使用的8.5代Emma V2水泵专注于更大更集中的热点区域,确保铜底座与CPU 之间的接触更精确、更安全。同时本次扣具也针对英特尔酷睿 Ultra CPU进行了高度调整和优化。更新后的扣具可确保 CPU 上的接触压力更加均匀,从而提高整体性能和可靠性。

图片

冷板上的四个固定螺丝位置可以调节,以适应不同的插槽。

冷板上的四个固定螺丝的位置可上下调动,使得它可以适应LGA1200、LGA115X、LGA1700、LGA1851等不同的插槽。为了加速热量的排放,水冷散热器配备了三个采用 FDB流体动力轴承、叶片数量可达9片,提高了风扇风压和气流面积,降低了噪音的30mm厚ROG磁吸式风扇(ROG MF-12S ARGB)。这款风扇不仅可以支持AURA SYNC神光同步光效,更重要的是它的电机已升级为三相六极设计,提高了电机的运行效率和稳定性,使风扇运行更加平稳,噪音更小。这对于长时间使用尤为重要,因为它能大大延长风扇的使用寿命。而这款风扇因为采用磁吸式供电,所以用户只需依靠磁力将三个风扇的供电触点紧密接触,相互导通,并在外侧风扇的一个供电触点上连接电源线即可让电源为三个风扇供电,大幅简化了需要连接的线缆数量。

图片

水冷头顶部内置一块3.5英寸、分辨率为640×480的液晶显示屏,可显示颇具科技感的文字、图像。

最后ROG龙神3 EXTREME 360水冷散热器也延续了以往龙神水冷散热器的优秀设计,包括水冷头上3.5寸的液晶显示屏,既可以显示温度、电压、频率等硬件信息,也可以载入用户的自定义文字、图片。而水冷头内置的小风扇不仅可以帮助处理器降温,还能通过通风口向外带来冷却气流,有效降低主板供电电路的发热量。值得一提的是,ROG龙神3 EXTREME 360水冷散热器的6年漏液包赔保修政策,则能让用户放心使用。

06/
使用芝奇TRIDENT Z5幻锋戟CK DDR5  8200 CU-DIMM内存超频

图片

从以上对Z890主板的介绍可以看到,新款Z890主板的一大进步就是对高速率内存支持能力的增强,普遍都能支持DDR5 8000以上的内存。这一方面有主板设计的进步,另一方则在于Z890主板可以支持最新的CU-DIMM内存。什么是CU-DIMM内存?简单地说,以往消费级电脑上使用的内存,都是CPU直接通过差分时钟驱动内存工作,但由于CPU内部有很多电源噪声,时钟信号还需要穿过CPU引脚区、主板到达内存插槽、内存颗粒,在整个过程中,会受到电源、感应抖动串扰、抖动放大等因素影响,使得内存的时钟信号完整性难以得到保证,内存难以工作在更高的速率下。

图片

如果安装了散热片,那么在外观上CU-DIMM内存与普通内存相比没有区别。

而CU-DIMM内存则在每根内存上都安装了时钟驱动器芯片,不仅能接收来自CPU的时钟信号,还能减少抖动,恢复时钟幅度、时钟保真度,并输出干净、稳定的时钟信号来驱动内存,使内存能有更大的概率达到更高的速率。因此在使用酷睿Ultra 9 285K处理器的内存超频测试中,我们就采用了来自芝奇的TRIDENT Z5幻锋戟CK DDR5 8200 CU-DIMM内存48GB套装。

从外观上看,它与普通的芝奇幻锋戟内存没有明显区别,只有包装盒上标明了它的不同,印上了“DDR5 CU-DIMM”的字样,这是因为时钟驱动器芯片安装在内存PCB上,在配备散热器的内存上自然难以看出不同。该内存采用了时尚的流线型元素,通过精密切割技术打造出刀锋造型的散热片,这也是它被称为幻锋戟的主要原因。其刚毅的曲线设计宛如超跑的奔驰轨迹,以利落鲜明的线条诠释出剽悍的速度感。内存散热片表面则采用精致细腻的喷砂处理,在颜色上有细致光亮的科技银、高雅沉稳的黯雾黑,本次我们测试的产品就是黯雾黑版本。

图片

只需1.4V,该内存就能工作在DDR5 8200下。

通过使用高品质的SK海力士颗粒,其标称内存速率高达DDR5 8200,而且工作电压只有1.4V,其在DDR5 8000下的标称电压只有1.35V,在DDR5 8200下的延迟为40(CL)-52(TRCD)-52(TRP)-131(TRAS),并不算高,毕竟很多普通DDR5 5200、5600内存的CL延迟也设置在40左右。值得一提的是,尽管每根内存仍采用单面8颗粒设计,但每颗颗粒的容量为3GB,单根内存容量达到24GB,所以这对内存的总容量达到48GB,让使用这款内存的用户能兼得容量与性能。


测试平台

主板:ROG MAXIMUS Z890 HERO主板

处理器:酷睿Ultra 9 285K、酷睿i9-14900K

内存:DDR5 7200 16GB×2、芝奇TRIDENT Z5幻锋戟CK DDR5 8200 CU-DIMM 48GB套装

硬盘:长江存储PC411商用消费级固态硬盘1TB

显卡:GeForce RTX 4080 SUPER

电源:ROG THOR 1200W

操作系统:Windows 11


07/
内存性能测试
延迟明显增高

图片

DDR5 7200内存在酷睿Ultra 9 285K上的测试结果

图片

DDR5 7200内存在酷睿i9-14900K上的测试结果

首先我们对处理器的内存性能进行了测试,在都使用DDR5 7200 32GB内存套装,且延迟均设置为34-45-45-90的环境下,可以看到,酷睿Ultra 9 285K的内存读写、复制带宽均比酷睿i9-14900K要高一些。但是内存的访问延迟有显著增加,从第14代酷睿处理器的64.6ns上升到81.4ns,内存延迟增加了近17ns。我们推测原因主要在于酷睿Ultra 200S处理器采用了Chiplet小芯片设计,内存控制器在SOC这块芯片上,与处理器计算核心不在同一块芯片,后者在计算模块芯片上,因此会增加访问延迟。这与同为小芯片设计的AMD Zen处理器类似,内存延迟都比以往采用单一芯片设计的处理器要高一些。

08/
处理器基准性能测试
酷睿Ultra 9 285K全面领先

图片

基准性能测试中,尽管没有超线程技术、但借助更先进的核心架构与工艺,更高的E Core能效核工作频率,酷睿Ultra 9 285K在大部分单核性能与多核性能测试中都以明显的优势战胜了酷睿i9-14900K,比如酷睿Ultra 9 285K的3DMark单线程与多线程性能分别领先14900K达4.73%、12.53%;在CINEBENCH R23渲染测试中,酷睿Ultra 9 285K的单核心与多核心性能优势分别为3.42%、4.72%;在PerformanceTest 11.0处理器测试中,酷睿Ultra 9 285K更创造了两个第一:它是《微型计算机》评测室中第一款总分突破71万的消费级处理器,也是第一款单线程性能达到5300分以上的消费级处理器,其测试成绩击败目前已知任一款英特尔与AMD的消费级产品。

酷睿Ultra 9 285K能取得如此优秀的测试成绩与它采用了IPC性能大幅进步的Lion Cove P Core性能核,以及Skymont能效核紧密相关。酷睿Ultra 9 285K仅在CPU-Z单线程测试小负对手,我们分析主要原因在于该测试只是一个使用SSE指令集的FP32数学测试,也没有考察SSE的矢量数学计算性能,测试具有局限性。而其他测试会考察处理器的浮点、排序、压缩性能,AVX2指令集等项目,考察更全面。

09/
处理器应用测试
酷睿Ultra 9 285K具备更高生产力

在实际应用中,因为目前大部分转码、渲染,乃至大语言模型应用都可以调动处理器的所有核心参与工作,所以借助更好的多核心性能,酷睿Ultra 9 285K也带来了令人满意的表现。其中在将一段4K H.264视频转码为1080p H.265视频时,酷睿Ultra 9 285K的转码耗时比酷睿i9-14900K少了23秒,只有酷睿i9-14900K耗时的89%;而在将该视频转码为1080p AV.1视频时,酷睿Ultra 9 285K的优势更加明显,耗时比酷睿i9-14900K少了多达38秒,前者的耗时只有后者的82%。在Lame 3.1音频转码中,酷睿Ultra 9 285K仅需12秒就能将一首80MB的WAV音频文件转码为码率为128kbps的MP3文件,酷睿i9-14900K则需要耗时14秒。

图片

在使用Blender渲染宝马汽车模型时,酷睿Ultra 9 285K的耗时比14900K少了近5秒,渲染耗时只有酷睿i9-14900K的91.8%。此外酷睿Ultra 9 285K在使用大名鼎鼎的V-RAY渲染器进行渲染时,它的渲染性能也比14900K提升了8.2%。考虑到大语言模型应用的流行,我们还测试了两款处理器在运行Mistral 7B 70亿参数大语言模型、Llama 3 8B 80亿参数大语言模型时的性能表现。测试中我们将输入“tell me about microcomputer”(告诉我一些关于微型计算机的事儿),考察通过处理器来回答问题的词元生成速度。测试过程中我们禁用GPU参与工作,处理器计算线程数则设置为每款处理器的最大线程数,比如酷睿i9-14900K的计算线程数为32、酷睿Ultra 9 285K的计算线程数为24。

测试结果清晰明了,更多的线程数并不能“拯救”酷睿i9-14900K,还是依靠更先进的处理器架构,以及16颗E Core能效核那更高的工作频率,酷睿Ultra 9 285K在两个大语言模型中的词元生成速度都轻松击败酷睿i9-14900K。其在Mistral 7B 70亿参数大语言模型中的词元生成速度领先酷睿i9-14900K高达28.4%,在Llama 3 8B 80亿参数大语言模型中的词元生成速度领先优势达17.8%。此外,酷睿Ultra 9 285K在WebXPRT4、CrossMark、PCMark10这三类考察处理器在照片编辑、视频编辑、图像分类、加密、拼写检查、视频会议、渲染与虚拟化应用的系统类测试软件中也获得了全面领先。

酷睿Ultra 9 285K仅在7-ZIP压缩与解压缩性能测试,TrueCrypt AES加密解密性能测试中落败。我们推测这是因为这两个测试都非常依赖处理器的内存性能,内存延迟更低的第14代酷睿处理器自然会拥有一定优势。总体来看,酷睿Ultra 9 285K在大部分应用中都处于领先,非常擅长进行转码、渲染和大语言模型的应用,具有更高的生产力。

10/
游戏应用测试
酷睿Ultra 9 285K与酷睿i9-14900K平分秋色

图片

游戏测试中,为避免出现3D性能不足的瓶颈,我们在1080p分辨率、最高画质设定下对两款处理器进行了测试。在8款游戏测试中,酷睿Ultra 9 285K与酷睿i9-14900K相比是互有胜负。比如在《僵尸世界大战》《古墓丽影》《众神陨落》《地平线:零之曙光》中,酷睿Ultra 9 285K的平均运行帧率更高,在热门游戏《黑神话:悟空》中,两款处理器的成绩则基本相同,彼此间的差异只有1帧。而在DIRT 5、《看门狗:军团》《杀手:暗杀世界》等游戏中,酷睿Ultra 9 285K处理器则小输酷睿i9-14900K,不过差距都在5帧以内,差距并不大。我们推测这是因为在游戏中往往只会调用处理器的P Core性能核,而酷睿Ultra 9 285K的性能核最高睿频频率比酷睿i9-14900K低了300MHz,再加上内存延迟偏高,所以在部分游戏中不敌酷睿i9-14900K也是可以预料的。



NPU在AI应用中的速度的确更快

此外,我们也测试了酷睿台式机处理器新增的NPU性能。酷睿Ultra 9 285K使用CPU核心来完成基于FP16浮点数的UL Procyon AI计算机视觉性能测试的话,得分为281;使用处理器内置核芯显卡则可以将测试得分提升到352,而使用NPU来运行该测试,分数则可以提升到393。该测试主要使用MobileNet V3、ResNet 50、Inception v4三种网络模型,并计量它们的推理次数与推理时间,推理次数越多,推理时间越短,得分就越高,显然使用NPU的确可以加速AI应用的计算。

图片

在GeekBench AI测试中也带来了类似的结果,使用酷睿Ultra 9 285K的NPU进行测试时,其在使用FP16浮点数的半精度测试中全面领先,得分为9751。使用处理器与核芯显卡的测试得分分别为8600、9480,NPU位居第一。不过在使用INT8整形数的量化性能测试时,酷睿Ultra 9 285K的NPU虽然战胜了核芯显卡,但与处理器计算核心相比,成绩还有一定差距。前者的得分为14063分,后者的得分达到15749分。

图片

图片

NPU从默认的1600MHz超频到2080MHz后,可以带来半精度性能与量化性能的大幅提升。

而借助ROG MAXIMUS Z890 HERO主板的NPU BOOST加速引擎,当我们将加速等级设置为最高的第3等级后,处理器可自动将NPU的工作频率从默认的1600MHz大幅提升到2080MHz。在此频率下,其GeekBench AI半精度性能达到12203分,较默认设置下提升了高达25.1%,GeekBench AI量化性能为17482分,较默认设置下也提升了24.3%,超频效果非常显著。虽然处理器也可以超频,但使用NPU最大的意义在于可以降低处理器负载,让处理器核心专注于其他工作。需要注意的是,目前酷睿Ultra 9 285K内置的NPU只支持使用FP16浮点数、INT8整形数时加速,不支持FP32浮点数,所以超频后其单精度性能不会有明显提升。

11/
超频测试
CPU-Z突破2万分、CINEBENCH R23突破45000分!

图片

超频后,酷睿Ultra 9 285K的CPU-Z多线程性能分数突破20100分。

图片

在5.7GHz性能核搭配4.8GHz能效核的组合下,酷睿Ultra 9 285K的CINEBENCH R23处理器多核心渲染性能达到45000分以上。

既然对NPU都进行了超频,那么对酷睿Ultra 9 285K的处理器核心超频能力考察也是必不可少的。在默认设置下,酷睿Ultra 9 285K的P Core性能核全核心频率为5.3GHz,E Core能效核全核心频率为4.6GHz。经我们多次测试来看,酷睿Ultra 9 285K的超频能力与酷睿i9-14900K相比是有差距的,在普通散热环境下P Core性能核很难以全核心5.8GHz的设置稳定工作。它最高可在1.45V电压、P Core性能核全核心5.8GHz、E Core能效核全核心4.8GHz的设置下进入系统,并完成CPU-Z性能测试。如果要完成CINEBENCH R23这样的处理器重载测试,则需将 P Core性能核全核心频率降低100MHz到5.7GHz。尽管超频频率不高,但得益于更先进的处理器架构,频率更高的E Core能效核,超频后它的处理器多线程性能提升明显。其CPU-Z多线程性能分数达到20100分以上,成为《微型计算机》评测室中首款CPU-Z多线程性能分数突破20100的消费级处理器。

而在5.7GHz P Core、E Core能效核全核心4.8GHz的设置下,酷睿Ultra 9 285K的CINEBENCH R23处理器多核心渲染性能也达到了45000分以上,同样是《微型计算机》评测室中,该项目得分最高的英特尔消费级处理器。

12/
内存超频能力提升
四插槽主板也可支持DDR5 8600内存

图片

芝奇TRIDENT Z5幻锋戟CK DDR5 8200 CU-DIMM内存在DDR5 8200下的性能表现

图片

超频到DDR5 8600下,可以进一步提升内存传输带宽,小幅降低延迟。

此外我们还通过酷睿Ultra 9 285K处理器、ROG MAXIMUS Z890 HERO主板、芝奇TRIDENT Z5幻锋戟CK CU-DIMM内存测试了它们的内存超频能力。结果同样让人满意,尽管芝奇TRIDENT Z5幻锋戟CK DDR5 8200 CU-DIMM内存的标称速率已经达到DDR5 8200,但ROG MAXIMUS Z890 HERO主板也可轻松地开启内存的XMP配置,让内存一键超频到DDR5 8200,并带来123.63GB/s的内存读取带宽、100.51GB/s的内存写入带宽,而且它们都还具备一定的内存超频能力。在仍保持内存40-52-52-131的延迟设置下,我们将内存工作电压从1.4V增加到1.5V,就能把内存速率进一步提升到DDR5 8600。在此速率下,内存的读写带宽分别提升到128.64GB/s、101.89GB/s,内存延迟则小幅地从DDR5 8200下的78.3ns下降到77ns。

这说明新的处理器、主板,以及CU-DIMM内存的确具备更好的超频能力,毕竟在Z790主板上,如果要让内存速率提升到DDR5 8600,一般需要使用只有两根内存插槽,专为内存超频设计的主板,比如ROG MAXIMUS Z790 APEX ENCORE。而现在采用四根内存插槽设计,定位比APEX ENCORE低的HERO系列主板上就能实现DDR5 8600这样高的速率。不过内存超频测试也再次证明酷睿Ultra 200S台式机电脑的内存访问延迟的确有明显增加,一般Z790四插槽主板搭配DDR5 8000内存时的访问延迟也就在66ns左右。

13/
功耗低了40W
温度也更低

图片

最后我们还使用AIDA64 FPU烤机测试对两代处理器的发热量与温度进行了考察。在满载状态下,它们有非常明显的差异。在都搭配360水冷散热器的环境下,酷睿Ultra 9 285K的CPU满载功率只有284.5W,比酷睿i9-14900K的326W低了超过40W,更低的功耗也为处理器带来了更低的工作温度。烤机30分钟后的处理器封装温度为96℃,酷睿旗舰处理器的满载温度终于控制在100℃以内,不会碰到温度墙,为长时间稳定工作打下基础。

14/
从架构到工艺都更加先进的新选择

图片

▲现在购买酷睿Ultra 9 285K还有晒单返100元E卡的活动,非常超值。

不难看出,相对于酷睿i9-14900K,酷睿Ultra 9 285K处理器有架构工艺更先进、生产力更强、功耗与温度更低,工作更稳定等多项优点,不足就是内存延迟增加、P Core性能核频率降低,在游戏中无法完全战胜酷睿i9-14900K。对于已经拥有第13代、14代酷睿K系列处理器,偏重游戏的玩家来说,当然没有必要升级它。但对于准备装新电脑,需要顶级性能的用户而言,酷睿Ultra 9 285K显然是新用户兼得性能与稳定的更好选择。而且它的售价并不离谱,比酷睿i9-14900K 4999元的首发售价还低了200元,其目前的售价为4799元,再加上可以同时支持PCIe 5.0 SSD与PCIe 5.0 显卡,提供雷电4接口与Wi-Fi 7无线连接的Z890主板,基于酷睿Ultra 9 285K的酷睿Ultra 200S台式机电脑将能为用户带来功能全面、卓越出众的用机体验。


友情提示

MCer请注意,由于微信公众号调整了推荐机制,如果你发现最近很难刷到Microcomputer(微型计算机)公众账号推送的文章,但是又不想错过微机的精彩评测内容,可以动动小手指把Microcomputer设置成星标公众账号哦!