曲靖市文物志(二十四)

图片
曲靖市文物志
(二十四)
开栏的话
有人说时间稍纵即逝,看不见摸不着,可我们能看到时间留下的形状,我们能触摸时间留下的痕迹。乌蒙磅礴、群山叠翠、山雄水秀、宝藏丰富、文化璀璨,在曲靖这块古老而又年轻的土地,这片充满传奇而又充满希冀的热土上,千百年来,前人走过的路我们这样看见。曲靖发布推出的《曲靖市文物志》专栏,带你穿越时空,看看什么样的物件和故事都留存在了时间里。
小编今天带你了解
曲靖的重要历史事件和重要机构旧址
钟屏街红九军团司令部
图片
又名牛家祠堂。位于会泽县金钟街道金钟社区第六村民小组(钟屏街483号)。建筑坐南向北,由围墙、花池、照壁、东西厢房、过厅、东西书房、正殿组成三进院落,占地面积1723.9平方米。
图片
花池,呈半圆形。池深2米,直径12米,占地面积113平方米。
照壁,单檐硬山顶结构。全长21.6米。用青砖砌成,青瓦镶嵌成梅花瓣图案,两边为圆形卷洞门。
东西厢房,各3开间,通面阔均为12米、进深4.2米。
过厅,硬山顶抬梁式土木石结构。3开间,通面阔15.6米、进深6.6米。明间设通道,可进入第三进院。
东西书房,各3开间,通面阔均为13.2米、进深5米。
正殿,单檐硬山顶抬梁式土木石结构。3开间,通面阔12米、进深7米。
建筑始建于清代中后期,为会泽旺族牛家族人所建的家族宗祠。1935年中国工农红军第九军团长征经过会泽时在此祠堂内设立司令部。20世纪50年代至21世纪初由宣威汽车总站会泽汽车站使用。2003年由会泽大佛寺管理小组使用。此建筑是清代家族宗祠的典型代表,也是中国工农红军长征过会泽的重要实物见证,对研究地方宗祠和红军长征过曲靖乃至云南活动情况提供了珍贵的实物资料,具有较高的历史和纪念价值。
2012年1月7日,建筑连同会泽火神庙、大佛寺共同被云南省人民政府公布为第七批文物保护单位。
中共罗盘地委指挥部
图片
位于罗平县钟山乡鲁邑村中。指挥部坐西向东,由照壁、两厢和正房组成三房一照壁合院建筑,占地面积327平方米。
图片
正房,重檐硬山顶穿斗式砖石木结构,一底一楼。5开间,通面阔21.4米、进深6.7米。明间、次间各通面阔4米、稍间各通面阔4.7米。明间门两侧悬挂松木楹联“金戈铁马踏平旧世邪恶,强国富民建设人间乐园”1副,落款为“癸未年冬云岭山人张明武撰书”。门前设6级条石台阶。
南北耳房,重檐硬山顶穿斗式砖石木结构,一底一楼。均为3开间,通面阔10.4米、进深4.7米。
正房、耳房前檐下均设回廊,檐柱下置雕花刻草柱础,吊柱、挑梁、门窗上均刻有不同形状花纹。
照壁,通长8.6米、厚0.6米。分上、下2台。下台高2米,用打凿成方形的石灰石镶砌而成;上台高1.26米,用未经加工石灰石镶砌而成。照壁墙面上左行横书“胜利的旗帜永远在滇桂黔边区飘扬!陈赓”17字。照壁北端设拱形门,高2.82米、宽1.70米。拱门前设3级台阶。
指挥部建筑始建于中华民国初期,原为当地村民张氏住房。1948年6~12月为中共罗盘地委指挥部和滇桂黔边纵队罗盘支队司令部所在地。1950~1985年闲置。1986年起由鲁邑村委会使用和管理。1986~2004年先后进行6次维修。
历史上,中共罗盘地委指挥部和滇桂黔边纵队罗盘支队司令部领导着滇桂黔三省(区)南北盘江流域的罗平、师宗、平彝、高良特别行政区和兴义、兴仁、安龙、西林、西隆等27个县的大片解放区以及众多游击区的革命武装斗争。中共罗盘地委指挥部和滇桂黔边纵队罗盘支队司令部所在地是滇桂黔边区的重要革命基地,起着大后方和核心领导作用。指挥部具有重要的历史和革命纪念价值。
2003年12月,云南省人民政府公布为第六批文物保护单位。2004年中共云南省委、省人民政府命为省级爱国主义教育基地。
播乐起义纪念址
图片
位于曲靖市沾益区播乐乡政府驻地东200米播乐中学内。
纪念址由纪念塔、纪念馆、烈士墓3部分组成,分布面积33330平方米。
纪念塔,钢筋混凝土方形结构。塔通高10米、宽3.4米。塔顶呈火炬状,塔身正面书“九五起义纪念址”7个镏金大字,直行行书;塔身阴面书播乐中学地下党活动历史及“九五”起义经过,横行楷书。
纪念馆,1998年为纪念九五起义五十周年迁建2层纪念馆,一楼为聚贤厅,二楼为陈列室,100余件革命文物保存完好,存放于陈列室内。
烈士墓,3冢。分别为王荣烈士、温培群墓、温智国烈士衣冠冢。
播乐中学前身为沾益县第四区区立播乐两级小学,是当地爱国人士温培群1931年倡导创建。1937年中共云南省工委派共产党员樊子诚到校任校务主任,秘密发展党组织,建立党支部,在学生中灌输革命思想,学习和传播马列主义,加强军事训练,为中共云南省地下党培养了大批干部,使播乐中学成为革命的根据地。1948年,遵照党中央的指示和云南省工委的统一部署,在滇东工委的直接领导下,播乐中学师生员工和农民武装500多人,在云南人民讨蒋自救军第三支队的接应下,于9月5日举行了震惊云南的“九五”起义。起义部队同国民党二十六军193师展开激战,战斗持续到天黑,起义部队顺利转移到会泽方向。
播乐“九五”起义给当地国民党反动统治以沉重打击,在云南革命史上写下了光辉灿烂的篇章。起义后的播乐中学,遭到国民党军队的血腥洗劫和破坏,学校成为废墟。1982年,中国共产党沾益县委、县人民政府决定恢复播乐中学,修建了校史陈列室、烈士墓、纪念塔等,占地面积达50多亩,成为曲靖市境内最大的重要革命历史事件纪念地。播乐起义纪念址是云南革命历史的见证,也是研究云南革命史和对青少年进行爱国主义教育的基地,具有重要的历史价值。
1998年11月,云南省人民政府公布为第五批文物保护单位,并列为云南省爱国主义教育基地。
中国人民解放军滇桂黔边纵队第三支队队部旧址
图片
简称边纵三支队队部旧址。位于陆良县龙海乡小寨村委会小寨村71号。旧址房屋坐西北向东南,由正厅、东西厢房、院墙及大门组成三合院建筑,占地面积294.96平方米。
图片
旧址房屋为重檐硬山顶穿斗式砖木结构。正厅5开间(其中1间已拆毁),通面阔15米、进深7米。东厢房2开间,通面阔8.3米,进深5米。西厢房2开间,通面阔5.4米、进深4米。院墙长6米、高1.4米、厚0.6米,青砖砌筑。大门开在院墙与东厢房交汇处。高1.9米、宽1.2米。门顶上方置两坡瓦屋面,呈三角形,中央用混凝土镶嵌一红五角星浮雕图案。门前设5级石质台阶。
房屋建于中华民国初年,为开明人士李标堂的住屋。1947~1948年中国人民解放军滇桂黔边纵队三支队队部驻此。中国人民解放军滇桂黔边纵队三支队的前身为云南人民讨蒋自救军第一纵队第三支队,支队长杨守笃。支队转战24个县,大小战斗70余次,为云南人民的解放事业做出过重要贡献。中华人民共和国成立后,此处曾用作村公所、供销社、学校、大队办公场所。2010年,龙海乡人民政府筹资进行维修,设立小寨革命陈列馆,开辟为爱国主义教育基地。
2019年2月,云南省人民政府公布为第八批文物保护单位。
关下村红军战斗遗址、纪念塔
位于曲靖经济技术开发区西城街道西山社区关下居民小组东部,紧邻320国道。分布面积约6000平方米。
1935年4月26日,中国工农红军一、三军团先头部队为掩护中央军委纵队和主力部队通过沾益、曲靖,分别包围了沾益县城和曲靖县城。4月27日,红军主力进入曲靖一带,由于国民党守军已被中国工农红军一、三军团围困,当日下午,中国工农红军中央军委纵队先遣分队侦察通讯队在设营队负责人刘金定、作战科参谋吕黎平、侦察队队长张明远的带领下作为前锋沿滇黔公路前进,在距离曲靖城西约10千米的西山乡关下村时与一辆由昆明向曲靖急驰而来的国民党军车遭遇。侦察通讯队就此隐蔽于公路北侧的水沟里,待敌军军车驶近后,迅速冲出,并向汽车射击、喊话,将汽车包围起来。红军当即俘虏了敌军官和驾驶员各一人,并在卡车内缴获了十万分之一云南军用地图20余份、云南白药一千包零四百瓶以及大量宣威火腿、普洱茶叶等。战斗结束后,通过简单审讯得知,负责敌军军车运输地图和物资的是国民党“剿匪”第二路军前敌总指挥薛岳的副官。因薛岳率部入滇追剿红军,缺少云南详细军用地图,特派副官入滇向云南省政府主席龙云索要后,紧急送往贵阳,在途经曲靖西山关下村时遭遇红军截获。
关下村战斗虽然规模不大,敌我双方也未发生伤亡,但意义深远。当晚,中央政治局和中革军委在附近的三元宫召开会议,利用缴获的地图制定了正确的行军线路,为红军抢渡金沙江起到了关键性的作用。
1976年,云南省、曲靖地区革命文物征集办公室在战斗遗址上建立纪念标志碑。碑为汉白玉质地,长方形,底座为五边形。2层。下层边长2.8米、上层边长1.25米。碑高1.8米、宽0.79米、厚0.15米,占地面积32平方米。碑正面直行隶书“红军战斗遗址”6个大字,背面刻有红军长征途经西山的线路图。同年,为纪念红军长征途经西山,又在距离红军战斗遗址约120米处的关下居民小组南侧敬老院内建立关下红军纪念塔。以纪念塔为中心,塔前建有池塘、陈列馆,塔后建有休息亭。塔由塔基、塔座和塔身三部分组成,均为钢筋混凝土结构。塔基为正五边形,边长4.9米。塔座5层,正五边。塔身呈四边形,建在方形塔座上,下宽上窄,通高12.8米。正面摹毛主席手书“英勇奋斗的红军万岁”9个大字,背面刻有铭文,记录中国工农红军长征2次途经曲靖的情况以及建立纪念碑的时间、目的。塔顶置红色五角星。
关下村红军战斗遗址和纪念塔是见证中国工农红军长征进入曲靖的重大历史事件发生地的重要实物证据,具有较高的历史和纪念价值。
2002年12月,曲靖市人民政府公布为第一批文物保护单位。
中心原小学校址
图片
位于曲靖市沾益区白水镇中心村委会的一低缓山丘上。建筑坐西向东,由正房、南北厢房、倒座组成一大型“走马串角楼,四合五天井”封闭式四合院。占地面积1840平方米。
建筑为单檐硬山顶穿斗式土木结构,一楼一底。东西长43米、南北宽26米。有房屋52间。屋顶用青色板瓦覆盖,屋面向外侧一坡短而陡,向内侧一坡则长而缓,出檐深,有利于院内雨水的收集。院内回廊上柱脚下均垫有柱础,墙体为夯土筑成(后有局部地方改用砖砌),房屋基础以打凿规整的石灰岩条石砌成,高出地面,利于屋内防潮,防止墙基被雨水浸蚀。天井地面低于院内回廊,用青石铺砌。
中心小学建于中华民国28年(1939)。建盖者为樊子愚。小学建成后,中国共产党滇东北地下党组织曾在此召开多次重要会议。解放战争期间,中国人民解放军滇桂黔边纵队第六支队以此为据点掩护革命群众,转移进步学生,组织革命群众进行反抗国民党反动统治的武装斗争。建筑梁柱结构简单朴实,建筑形式源于北方四合院,又具有鲜明地域特色,是当地民居建筑的典型代表,同时又是曲靖境内一处重要的革命遗址。校址现作为当地老年活动中心和党员活动中心使用,保存良好。
2012年5月,中心原小学校址被列为云南省第三次全国文物普查百大新发现项目。2013年5月,曲靖市人民政府公布为第二批文物保护单位。
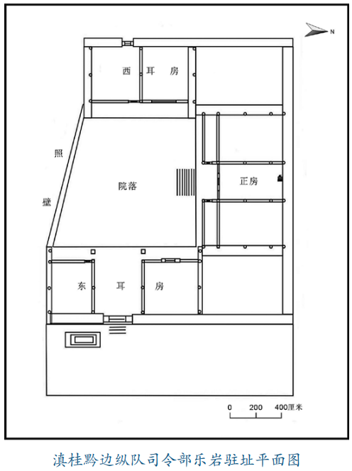
滇桂黔边纵司令部乐岩驻址
图片
位于罗平县板桥镇乐岩村中。旧址坐北向南,为三房一照壁合院建筑,占地面积418.1平方米。
图片
正房,重檐悬山顶穿斗式土木结构。3开间,通面阔11.8米、进深7.1米。屋顶施青灰筒板瓦覆盖,屋基为青石,墙体为土基砌筑。正房明间前设9级青石台阶。明间后部设木质楼梯。
东、西耳房,重檐硬山顶穿斗式土木结构。东耳房3开间,通面阔12.3米、进深5.1米,明间底层设进院通道。外建石质月拱门,高2.5米、宽1.6米、厚0.78米。门顶部左行横书阳刻“源远流长”4字。西耳房2开间,通面阔8.8米、进深5.1米。耳房二层前檐下均设护栏,山墙处各置枪眼1~2个。
照壁,位于天井正南,石砌。通长10.1米、高2.15米、厚0.87米。天井呈不规则形状,青石铺砌。
旧址房屋建筑始建于中华民国早期,为当地商人张氏住所。1949年中国人民解放军滇桂黔边区纵队司令部曾驻于此。在短暂的半年时间里,司令部先后举办了4期训练班,集中整训大批干部,并发动周边农村群众开展“反三征”“减租减息”斗争。司令部迁移后房屋收为公管,曾由本村老人协会管理使用。后因房屋漏雨迁出,现由板桥镇文化中心管理。滇桂黔边纵司令部乐岩驻址为中华人民共和国成立前曲靖南部广大地区积蓄革命力量,培养革命干部,开展敌后武装斗争,迎接云南解放发挥了重要的作用,具有重要的历史和纪念价值。
2002年12月,曲靖市人民政府公布为第一批文物保护单位。
车心口红军战斗遗址
图片
位于富源县墨红镇三台村委会糯岗村车心口山顶部。
车心口地势险要,绵延起伏,南接冷嘴子山、深冲、朝阳箐,北连起垴坪子山、尖山、朝阳箐山。面积约3000平方米。山上植被繁茂,山顶丫口有元代铺设的古驿道从中穿过,属易守难攻之地。1935年4月25日,中国工农红军一方面军第一军团入滇由这条古驿道进入车心口山,与前来阻击的国民党李嵩独立团进行了激烈的战斗,经过6小时的激战,红军全歼敌军,取得胜利,为顺利通过云南,北渡金沙江创造了有利条件。此战斗遗址面积较大,整座山都留下红军战斗的足迹。2000年以来,由于当地政府封山育林,故当年红军战斗痕迹已被茂密的植被所覆盖。遗址有一定的历史价值和纪念意义。
2011年6月,富源县人民政府公布为第四批文物保护单位。2020年7月,曲靖市人民政府公布为第三批文物保护单位。
红九军团水城扩红遗址
图片
位于会泽县金钟街道水城社区西北约100米万额山脚。遗址由扩红雕塑、扩红广场、陈列馆组成,占地面积4446平方米。
雕塑坐东向西。长18米、宽6米、高11.7米。雕塑上面共有10个人物图案,形态各异、栩栩如生。
1935年4月,中国工农红军一方面军第九军团攻克宣威后,接到中央军委迅速离开宣威,向金沙江进发,渡江北上的电令。4月30日,红九军团在军团长罗炳辉、政治委员何长工的率领下,离开宣威楂格,从梨树丫口进入会泽县境,渡过牛栏江,次日到达者海坝子,在者海老街宿营1日,开仓济贫。5月2日兵临会泽城下。3日,攻克会泽古城,红军处决了伪县长杨茂章、劣绅刘善初,筹款10万银元,骡马上百匹。红军除恶济贫,深受当地贫苦百姓的欢迎和爱戴,政治部主任黄火青带领红军战士进行革命宣传。会泽青年群情激昂,争先恐后踊跃报名参加红军,仅3天时间,报名参加红军者即达1300多人。红九军团在水城梨园召开群众大会,军团长罗炳辉在会上作了激动人心的演讲,报名参加红军的新战士组编成一个新兵营。5月4日,红军离开会泽。
会泽水城扩红是红九军团长征途中在云南境内扩充红军人数最多的一次。为了纪念红军长征经过会泽的革命活动,会泽县人民政府先后在水城梨园建造了扩红雕塑、扩红广场。遗址具有较高的历史价值及重要的纪念意义。
2011年12月,会泽县人民政府公布为第七批文物保护单位。2020年7月,曲靖市人民政府公布为第三批文物保护单位。
龙海山区行政委员会旧址
图片
位于陆良县活水乡沙锅村。旧址坐西向东,分别由正厅,南、北厢房组成“走马串角楼”三合院建筑,占地面积306.6平方米。
正厅,重檐悬山顶穿斗式土木结构。3开间,通面阔12米、进深6米,二楼楼板、墙壁均为木板构成,楼道有木制扶栏。建筑建于中华民国年间,为沙锅村保长张照宇所建。
龙海山区是云南省较早建立的反对蒋介石反动统治而开展革命武装斗争的重要根据地之一,沙锅村是当时龙海山区革命根据地的指挥中心。1948年7月在此建立中国共产党陆良中心县委,领导着以龙海山区为中心,包括陆良、曲靖、沾益、富源、罗平、师宗、马龙7县的游击革命战争。后来又在此相继成立了龙海山区行政委员会、陆良县游击大队、陆良县临时人民政府等地方政权和地方军事组织,为云南人民的解放事业做出了重要贡献。
陆良县临时人民政府迁入县城后,此处一直为沙锅村公社、大队、村公所使用,现为沙锅村村委会管理使用。龙海山区行政委员会旧址对研究陆良革命斗争史及当地建筑风貌提供了实物资料。
1986年1月,陆良县人民政府公布为第一批文物保护单位。2020年7月,曲靖市人民政府公布为第三批文物保护单位。
白龙山红军战斗遗址
图片
位于富源县营上镇合依村南约500米处的白龙山东坡。占地面积3000平方米。
遗址所在白龙山主峰西面,是云贵高原特有的山间坝子,坝子内村寨错落,田园密布。白龙山东坡,下临奔腾不息的块泽河,坡度陡峭,形成十分险要的易守难攻之势。1935年4月23日,中国工农红军一方面军从贵州兴义进入富源县黄泥河,途经富村、营上、大河、中安等地。4月24日,红军行军至营上白龙山一带时,遭遇到国民党滇军李嵩独立团的堵截。经过激战,红军将敌人击溃后继续前行。4月25日,红军行至墨红镇车心口一带时,再一次与滇军展开一夜激战。此战红军一举将滇军独立二团全部歼灭,为红军顺利通过云南,北渡金沙江创造了有利条件。白龙山战斗是中央红军进入云南后较为激烈的一次战斗,战斗中共牺牲55名红军战士。
为了缅怀先烈,更好地继承先辈们的革命遗志和光荣传统,1990年5月1日,富源县人民政府在白龙山山顶特立青石质长方形红军烈士纪念碑1通。碑坐西北向东南。高1.4米、宽0.6米、厚0.1米。碑阳面阴刻直书“富源县爱国主义教育基地”11字。碑座为三台水泥石砌台基。纪念碑座正前方平镶置1通大理石保护标志碑。碑长0.8米、宽0.6米、厚0.1米。
1989年12月,富源县人民政府公布为第一批文物保护单位。
雨谷协定旧址
图片
位于陆良县龙海乡雨谷村委会下雨谷村西100米。旧址占地面积约60平方米,四周原为竹林,已被砍伐并建盖房屋。
1947年7月陆良县发生“七二四”事件后,为进一步坚定统战对象杨体元反对蒋介石反动统治的决心,巩固中共地下党与杨体元的合作关系,中共陆良特别支部根据云南省工委的指示,于同年11月14日在陆良县双箐口乡雨谷村的一片竹林里与杨体元签订了《雨谷协定》。
中共陆良特支的签字代表是:许南波、谢敏、杨守笃;杨体元一方的签字代表是:杨体元、朱杰、皇甫立本。
雨谷协定的签订拉开了陆良县革命武装斗争的序幕,为中国人民解放军滇桂黔边纵队开展武装斗争提供了革命根据地。《雨谷协定》是中国共产党统一战线工作在陆良的具体体现。为缅怀革命先烈,对广大党员、人民群众,特别是青少年进行革命传统教育和爱国主义教育,1998年11月,中共陆良县委、陆良县人民政府在雨谷协定旧址附近修建了纪念碑。
2013年9月,陆良县人民政府公布为第三批文物保护单位。
中共罗平地下党干部培训班旧址
图片
位于罗平县钟山乡狗街村委会原罗平县第九中学内。旧址建筑坐南向北,占地面积440平方米。
建筑建在高1.6米的石基上,为单檐悬山顶穿斗式土木结构。青灰筒板瓦屋面,现存4间。通面阔18米、进深7.5米。东数第3间现存8级老式台阶。第1至第7级台阶均高0.31米、宽0.32米,第8级台阶高0.11米、宽0.32米,台阶两边护条石长2米、宽0.22米。第1级台阶两侧高0.37米须弥座上置直径0.42米、厚0.22米的圆形石鼓,石阶两侧各有长4.4米、高1米的花台各1个,每个花台在距地面0.39米处有直径为0.3米的排水孔各1个。
旧址原为庙宇,有房屋11间。1939年后中共罗平地下党拉倒庙内菩萨开办学校。1948年8月5日被国民党中央军放火烧毁2间,以后又毁5间,现存的4间均为后来修复。1948~1949年间,中共罗平地下党组织在此开办了4期干部培训班,培训了300多名干部,为曲靖南部地区的革命活动积蓄和发展了力量。
1986年7月,罗平县人民政府公布为第一批文物保护单位。
普冲党支部旧址
图片
位于富源县墨红镇普冲村委会河泥村中的一座老房屋内。旧址房屋坐西北向东南,占地面积148平方米。
旧址建筑为单檐硬山顶穿斗式砖木结构,一楼一底。3开间,通面阔13.5米、进深7米、高7.4米。二楼明间右隔板上印有“文化大革命”时期的“毛主席像”,像下印有楷体“忠”字。房屋始建于1940年,20世纪90年代曾维修过,除部分木构件稍有糟腐断裂现象外,其余主体结构保存较为完好。在距离房屋西北300米处的普冲小学校园一角,立有普冲党支部旧址纪念碑1座。碑立于一个高约1.5米的长方形台基之上,台基四周设不锈钢护栏,设9踩宽1.5米的踏步通达。纪念碑为三角柱状体,碑座呈梯形,混凝土浇筑。碑通高5.6米,碑尖置一枚中国共产党党徽。碑身正面刻“中共富源县第一个党支部成立旧址,一九四八年二月。”碑座横书阴刻普冲党支部成立经过及组成人员情况。
普冲党支部的建立是富源境内的第一个由共产党领导的地下党支部,隶属中共陆良特支委员会,为曲靖东部地区早期革命斗争起到了积极的作用。
2011年6月,富源县人民政府公布为第四批文物保护单位。
高坡顶战斗遗址
图片
位于宣威市板桥街道永安村委会高坡顶西面800米处的小山上。遗址在小山顶部,近似圆形,分布面积约1000平方米。
遗址在小山边缘现保留有宽0.45~0.85米、深0.9~1.3米的环形战壕,总长约140米。山丘北边面临山下道路,此处战壕每隔一段均从主战壕向外挖有纵向战壕3~5米不等,尽头为直径约1.5~2米的小型环形工事,可容1~2人,当为机枪手位置。由于遗址地处山顶,居高临下,完全可以扼制山下通往宣威的道路。
1949年2月中旬,永焜支队进入宣威,发展革命力量。4月,组建成立“云南人民讨蒋自救军宣威支队”。支队成立后不久,即获悉国民党第二十六军出动30多辆军车,由沾益出发到板桥、宣威城一带抢运军粮。为了粉碎敌人的计划,支队连夜进行战斗动员。次日拂晓,支队进入战备状态,在南起宣威与沾益交界的余家河口,北至小鸡街附近黑泥塘一带10千米的公路沿线布下埋伏。一大队打第一线,在高坡顶一带公路两侧布控。二大队打第二线,埋伏在余家河口一带。战斗最激烈的是黑泥塘一带,路面及两边山头均属战场范围。上午8时战斗打响,经过2个多小时的战斗,击毙敌军10余人。在这次战斗中,宣威支队指战员共有4人牺牲,其中包括一大队二中队指导员唐兴义。
2013年4月,宣威市人民政府公布为第二批文物保护单位。
稿件内容摘自曲靖市文物局编纂、出版的《曲靖市文物志》