这位女性建筑师不会做饭,却设计出了造福后世的现代厨房

你可能每天都对自家乱糟糟的厨房一筹莫展,但如果你是一位来自一百年前的家庭主妇,恐怕会感到无比庆幸。因为一百年前的厨房要糟糕得多——昏暗,破旧,油腻,杂乱无章。


图片

昏暗杂乱的厨房|Kitchen Decor


随着上世纪初世界各地的城市工业化和人口暴涨,人们的生活节奏越来越快,生活空间越来越狭小。有些家庭甚至没有厨房。工人阶级家庭和穷人请不起佣人也无力负担宽敞的住宅,他们的住处通常只有一个或者两个房间,一个大的铸铁火炉兼具了做饭和取暖两个功能,周围凌乱地摆放着餐具和家具。家庭主妇一边在黑暗的油灯下准备食物,一边还要忍受孩子们的啼哭声。


图片

上世纪初的美国工人阶级家庭,独立的厨房对他们来说是奢侈品|Carl Mydans/Library of Congress


好在这一切在上世纪二十年代悄悄地发生了改变。


我们感谢工业革命带来了电、煤气和自来水这些厨房的必需品。我们还要感谢奥地利史上第一位女性建筑师玛格丽特·舒特-里奥茨基(Margarete Schütte-Lihotzky),是她将科学融入了日常生活,设计出了日后造福千家万户的法兰克福厨房——现代厨房的鼻祖。


奥地利第一位女性建筑师


1897年,玛格丽特出生于维也纳一个中产阶级家庭,父母都是开明的人,这让从小生活在平等自由氛围中的玛格丽特向往学习艺术。1915年,她在240名考生中脱颖而出成为了维也纳应用艺术大学(Kunstgewerbeschule)的第一位女性学生


图片

年轻时的玛格丽特|wikipedia.org


在大学期间,玛格丽特师从建筑师奥斯卡·斯特兰德(Oskar Strnad)——维也纳“经济适用房”设计的先驱之一,致力于为工人阶级设计舒适实用又不贵的房子。玛格丽特深受导师的影响,也十分关注工人阶级的生活。她亲身走访、观察工人们的住处,希望用自己的专业知识改善他们恶劣的居住环境。


这些举动在当时是十分惊人的,“在1916年,没有人会想到一个女人会去盖房子,即使是我自己”,玛格丽特在日后回忆时说道。


即便如此,玛格丽特从维也纳应用大学毕业后顺利地投身于建筑行业,成为了奥地利第一位获得建筑师资格的女性。她先是跟阿道夫·鲁斯(Adolf Loos)等维也纳著名建筑师们合作了几个住房项目,为一战的伤兵和退伍军人规划住宅。


图片

玛格丽特与建筑师同事们|The Charnel-House


她在职业生涯早期就获得不少行业内的奖项和肯定,但真正让她声名鹊起的是后来的“法兰克福厨房”。


法兰克福厨房的诞生


“法兰克福厨房”顾名思义,是在德国法兰克福诞生的。


1926年,玛格丽特接受德国建筑师恩斯特·梅(Ernst May)的邀请来到法兰克福,他们面对的是一战留下的废墟和大量居无定所的工人和穷人。一个叫做“新法兰克福”的建筑项目应运而生,目的就是解决这令人绝望的住房短缺问题。预算很紧张,空间也很紧张,建筑师们需要把一万个适合居住的单元塞进这个城市——新思想和新设计应运而生,这其中也包括玛格丽特设计的厨房。


图片

战后的法兰克福某处|And Then Face to Face 


要在有限的空间内解决厨房杂乱无章的问题,提高做饭的效率,玛格丽特构思的过程中最重要的灵感来源有两个。


一个是“泰勒制”(Taylorism),又称“科学管理”(Scientific Management),是由美国人弗里德里克·泰勒在十九世纪末提出的针对工厂车间的工作流程。他的“动作时间研究”(time-motion study)详细地记录了工人工作的每个步骤和所需时间,设计出最有效的工作方法,将工作流程标准化以达成最高的产量。


玛格丽特不是第一个想到把这套科学管理方法用进家庭生活的人。美国家庭经济学家克里斯汀·弗雷德里克(Christine Frederick)将泰勒的“时间-运动理论”纳入了自己的厨房研究中并写成了书。这本书被翻译成德语并传到了同样信奉“泰勒制”的玛格丽特的手中。


图片

弗雷德里克书中正在处理蔬菜的美国妇女|Wellcome Collection 


玛格丽特的另一个重要灵感来源是豪华火车餐车的厨房。她发现这个小小的厨房只能同时容纳两个厨师,却能够有条不紊地给车上一百多个人提供食物,还兼具清洗和储存所有的餐具的功能——她脑海里的“泰勒制”家庭厨房被具象化了。


图片

1920左右欧洲豪华列车上的厨房|classicstreamliners.com


综合这些灵感,玛格丽特开始着手设计厨房。


这不是一件容易的事。二十世纪初期的欧洲动荡不安,劳动力短缺,很多女性身兼家庭主妇和外出务工者两种身份。玛格丽特心中有一个信念,她要用自己的设计为这些女性减轻负担。


她走访、观察了许多工人阶级的女性,了解她们的日常生活;她建了一个1.9m*3.4m的厨房原型,用秒表测量在这个房间里完成每一项任务需要多长时间;她画了无数张图纸,用来展示人在厨房里是如何移动的。


图片

当时法兰克福厨房的设计图纸|moma.org


最终呈现的结果无不体现着她的专业与巧思。


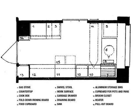
整个厨房像是一个流水线工作车间,准确来说是家庭主妇的“实验室”——长长窄窄的布局,一扇用来采光的窗户,一个可调节的顶灯,L型的工作台,一个煤气灶,一个旋转凳,内置储物柜,一个折叠式熨衣板和一个可拆卸的垃圾抽屉。


图片

维也纳应用艺术博物馆法兰克福厨房的重建模型|Lois Lammerhuber – Austrian Museum of Applied Arts, Vienna


为了做饭时方便拿取,香料架就安装在炉子旁边;用来储存大米、面粉、糖的铝制储物柜上贴了标签,一目了然;工作台被设计成了坐高,厨师可以坐着干活,省力不少。


图片

贴了标签的铝制储物柜|pamono.com


除此之外,厨房用具的材料也是根据当时的科学研究精心挑选的——面粉容器是用可以驱赶粉虫的橡木做的,工作台是用抗刀痕抗染色的山毛榉做的。


这些布局和装置在今天的我们看来理所当然,但在当时却是一大创举。如何安装放置这些零零总总的设备和厨具,都是经过严格计算的,为的是在有限的空间里用最短的时间让每一个家庭成员吃饱肚子。


图片


用玛格丽特自己的话来说:“我希望用自己的设计为妇女们争取忙碌生命中的宝贵时间——可能是几个月,也可能是几年。”


法兰克福厨房之后


玛格丽特活了一百零三岁,一生都投身于城市建设和建筑设计。


在法兰克福的工作结束之后,她辗转过许多城市,莫斯科、伦敦、巴黎、伊斯坦布尔等等,还曾两次到访过中国,并对北京的四合院表现出了浓厚的兴趣。她漫长的一生里参与过无数住宅、学校等等公共建筑的设计工作。这其中法兰克福厨房无疑是对后世影响最深的一个。


图片

玛格丽特在中国访问|University of Applied Arts, Art Collection and Archive, Photo Archives


但有趣的是,尽管设计出了造福万千家庭的厨房,玛格丽特自己从来都不是厨房的常客。她在自己一百岁诞辰时说道:“你会很惊讶地发现,我在1926年构思法兰克福厨房之前从来不亲自下厨。在维也纳的时候我妈妈做饭,在法兰克福时我会去餐厅吃饭。”


不做饭不意味着不为做饭的人着想。


事实上,玛格丽特是当时为数不多的站在女性的立场为女性谋福利的人。在她看来,厨房的劳动也是工作的一种,跟其他需要走出家门的工作相比,女性将时间花在日常的家务劳动中并不意味着她们就低人一等了——家务活也是专业的,因此也需要跟其他工作一样被科学严谨地对待


图片

晚年的玛格丽特|Ronald Zak


尽管后人对法兰克福厨房褒贬不一,有人认为过于狭小厨房的空间只得容纳一人,女性不得不承担所有的家务,这不利于平权的发展。但是,在那个女性地位普遍低下的年代,有一位女性建筑师不顾社会的偏见,切身地站在女性的立场,用自己的专业知识改善女性的日常生活,这难道还不够美好吗?


参考文献

[1] ARCHER, S., 2019. The Frankfurt Kitchen Changed How We Cook—and Live. https://www.citylab.com/design/2019/05/modern-kitchen-history-design-ideas-domestic-architecture/586345/

[2] Elsaesser, T., 2006. The Camera in Kitchen. Grete Schütte-Lihotzky and Domestic Modernity. and Carmel FINNAN. Practicing Modernity: Female Creativity in the Weimar Republic. Würzburg: Königshausen & Neumann, pp.27-49.

[3] Schütte-Lihotzky, M., 2011. Passages from Why I Became an Architect. West 86th: A Journal of Decorative Arts, Design History, and Material Culture, 18(1), pp.86-96.

[4] 张云亭, 2017. 现代厨房从这里开始。DEMO https://zhuanlan.zhihu.com/demostudio


作者:Edan

编辑:李子


一个AI

看完了,还不快去收拾厨房!