20w自装105㎡,她说:设计师把我拉黑了

本次的屋主是一个家居爱好者,家的原始户型,是典型的紧凑型小三居,户型还算方正,通透性和采光都不错。
但是对于热爱生活和热衷收纳的夫妇来说,原始户型绝不是他们心目中梦中情屋的样子。
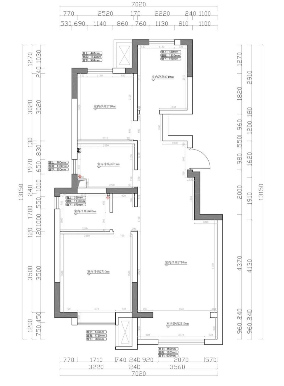
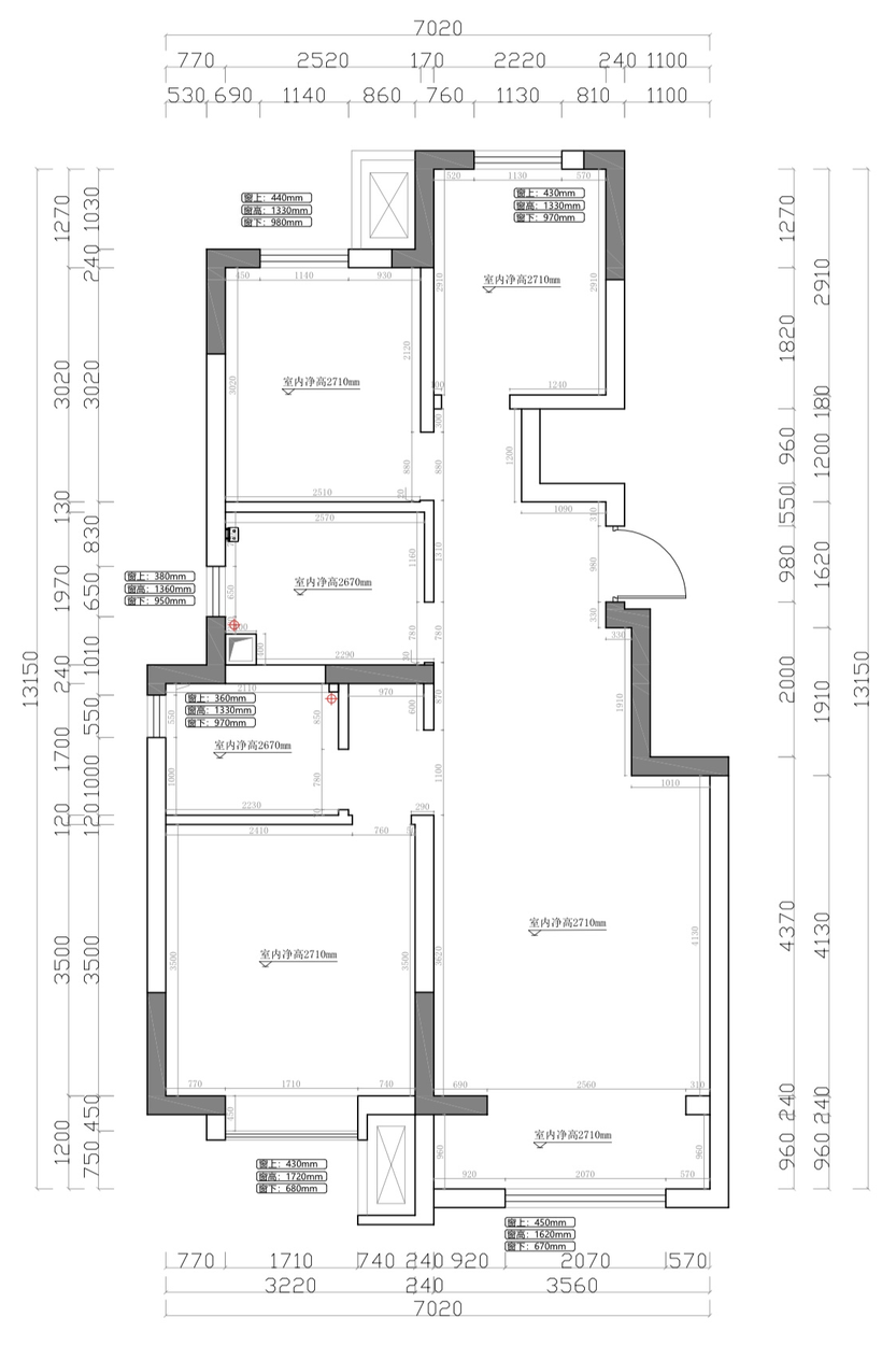
改造前户型图
图片
存在问题:
厨房空间逼仄,影响男主人下厨发挥
●卫生间狭小,洗衣区规划无从下手
●主卧空间不足,难以满足二人的收纳需求
改造前后
图片
图片
改造重点:
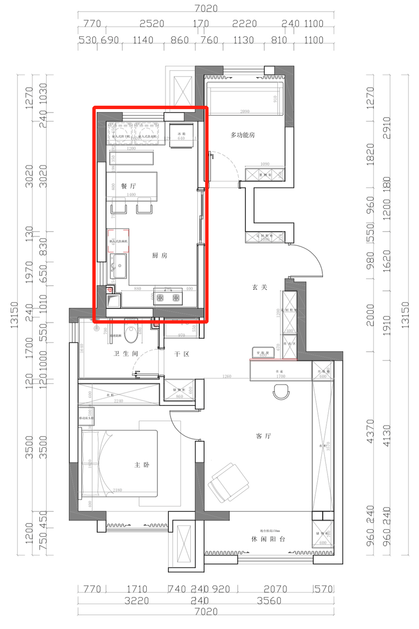
●砸掉厨房墙面,次卧改为餐厅,做餐厨一体
●改变主卧门位置,用S墙隔出0.5㎡杂物间
●玄关、起居室做满墙收纳
房屋位置:  天津
房屋面积:  建面88㎡,套内72㎡
房屋户型:  三室一厅一厨一卫
全部花费:  21.2w(硬装15w+家电6.2w)
常住人口:  2人
01
这样的餐厨,让先生更爱做饭
图片
图片
业主的家庭分工非常明晰:先生管做饭,小蒥管卫生。
图片
为了让厨房看上去更整齐,业主直接拒绝了白色,从台面、橱柜门板、餐桌到地板的表面质地,一律要耐脏耐脏再耐脏
图片
图源:住范儿自摄
U型橱柜看似平平无奇,似乎只是增加了操作台面空间;但其中隐藏着小蒥的“巧思”。厨房洗、切、炒的台面高度,都根据厨房主力——丈夫的身高定制的
图片
图片
厨房收纳都是保持和厨房色系统一的前提下,一件件添置的。
只有视觉上令人放松、打扫卫生也不添负担的厨房,才能真正让在外打拼的两个人,更快乐。
图片
旋转置物架
外移洗衣机和烘干机留下了又丑又长的管道,工长轻描淡写说盖住就行;但考虑到节省面积,最后的成品比较薄,还特意选择了和开发商窗户比较搭配的“丝绒玫瑰色”,一下让厨房显得更有层次了!
图片
图源:住范儿自摄
02
看似清冷,实则实用的客厅
图片
夫妇两人没有看电视的需求,客厅承担了家里几乎70%的收纳。
无主灯设计之下,中间部分安装3盏明装射灯,墙边吊顶安装筒灯,最大程度保留了整个空间的层高。
图片
图片
图源:住范儿自摄
通过光影,一秒拉满氛围感
图片
图片
图源:住范儿自摄
窗帘、地毯、绿植、装饰画等软装中的细节,也轻松拿捏。
地台休闲区选择和窗外树荫相统一的森绿色软装,为主调清冷的室内空间,平添了一些自然元素,更有生活气息。
图片
图片
图片
图源:住范儿自摄
选择白色、无主灯、善用镜子,让层高低的房间看上去敞亮清透。
图片
图源:住范儿自摄
03
能打 90分的多功能玄关
图片
通过这两张照片,不难看出小蒥家的玄关文能合理遮挡、保护隐私;武能充足收纳、分类收纳。
图片
图片
图源:住范儿自摄
进门时的包包、杂物、鞋子,都有专属位置。
04
卫浴虽小,五脏俱全
before&after
图片
图片
原始户型的卫生间只有6㎡,唯一的优点是已经规划了干湿分离
图片
图源:住范儿自摄
在户型上,通过一堵S型墙面,挤出一间0.5㎡的储物间,解决了家中清洁用品的收纳问题。
如果买到坠感不够、定型欠佳的窗帘,也可以淘这种有一定重量的窗帘配饰,再拿到当地窗帘店去加工,能让窗帘笔挺不少。
图片
图源:住范儿自摄
05
温馨宜居才是卧室的奥义
主卧和次卧都属于紧凑型卧室,所以并不会浪费时间琢磨如何将卧室功能丰富化,而是专注于尽可能通过软装,让它们更加温馨宜居
图片
图源:住范儿自摄
到访的伙伴们一致偏爱主卧这盏“酒吧风”落地灯,银色金属质感外加暖黄色灯光,搭配棕色丝绒窗帘,实物比照片更加眼前一亮。
图片
图片
图源:住范儿自摄
(文章来源:住范儿)