发现北京一户人家:四口人住53㎡,改造后,堪称“小区最美住宅”

本期分享的这套案例,可以说是当下社会一种普遍的现象。就是随着孩子慢慢长大,为了有一个良好的学习成长环境,会重新购买一套学区房。哪怕面积很小,哪怕户型结构不理想,也认为很值得。
比如本案屋主就买下了一套位于一层的53㎡老破小,虽说看起来降低了生活品质,但通过设计改造之后,不仅兼顾了舒适与实用,还堪称是“小区最美住宅”。
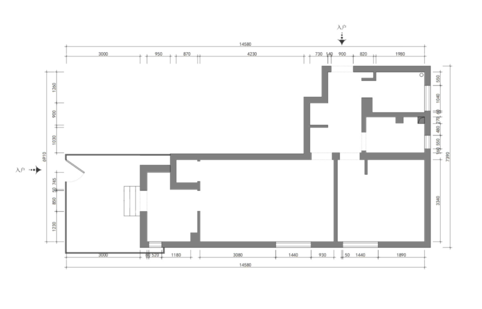
平面结构图
图片
本案来自北京,屋主一家四口,有两个男孩。由于这套房是为了方便孩子上学购买,且户型面积较小,所以屋主希望在满足基本居住功能的情况下,尽可能考虑到孩子的成长性需求。尤其是储物空间这块,更是要作为重点来考虑。
原户型为一居室带院子结构,因受到空间面积限制,小户型该有的问题基本上都有。所以如何在现有的空间中进行合理规划,也十分考验设计师的能力。
平面方案图
图片
结合屋主的家庭情况,布局调整如下:
1、厨房做开放式设计,增加玄关区的通透性。
2、重新调整过道动线,并给主卧门洞做平移处理。
3、以房中房的形式,在客厅增加儿童房,满足独立休息空间。
4、小阳台改成书房,弥补学习空间。
5、小院更改台阶位置,并简单整合。
玄关
图片
鞋柜以通体到顶的方式,设计在进门一侧,充分保障了一家的收纳需求。虽说占据了部分过道空间,但在厨房打开的情况下,也并没有造成视觉拥堵性。
细节1:暖白色的柜门+原木色的抽屉和镂空区,立马就削弱了柜体的厚重,并带来了更强的立体层次感。
细节2:鞋柜转角处做弧形设计,除了可以让动线更加流畅丝滑之外,也与旁边的柜体做到了很自然的衔接。
图片
过道看向玄关视角,地面单独铺上地砖,进一步强调了落尘区的清洁度,且与室内的木地板做到了平缓过渡。
左侧原有的内陷空间处,则增加了一组功能柜设计。不仅解决了冰箱的空间需求,还极大提升了生活洗漱效率。
图片
入户第一视角,洗手台底部做悬空处理,底部刚好可以放置扫地机器人。而给左侧的卫生间安装上折叠玻璃门,也一定程度上为过道引入了一些采光。
卫生间
图片
对于小户型来说,能利用的空间是绝对不能放过的。无论是洗手台上方的吊柜,还是中间的镜柜,都兼具了一定的储物能力,最大化强调了空间的整洁度。
图片
来到卫生间内部,由于洗手台独立了出去,刚好满足了洗烘机摆放,让生活动线更加人性化。同时,悬挂式马桶、独立淋浴间设计,也都再次保证了整洁。
图片
为了缓解早起洗漱时的拥挤性,淋浴间内也增加了一个嵌入式洗手台;再加上利用包管设计的壁龛,完美解决了洗漱用品的放置。
厨房
图片
厨房的开间尺寸十分尴尬,为了挖掘出每一块可利用的空间。左侧的功能性储物柜,深度控制在40cm。
这样既满足了大部分物品的收纳,又节省下了一个舒适的转身空间。而统一的奶油色基调定位,也真的是温暖又治愈。
图片
过道
图片
由于主卧门洞位置做了平移处理,旁边也满足了嵌入式储物柜设计,方便收纳一些不常用的杂物。
通往客厅的门洞做拱形设计,也算是一个小小的亮点。既减少了视觉突兀性,又带来了一些生活小情调。
餐厅
图片
得益于过道动线调整,原有的门洞哑口设计成了一组嵌入式展示柜。在丰富空间的同时,也兼具了不错的装饰效果。
图片
由于客餐厅做了一体化设计,餐桌贴着墙体摆放,再搭配上卡座,轻松满足了一家四口的用餐需求,且动线舒适性也相当不错。
细节:墙面设计滑轨插座,可以根据需求随时增减,并意味着该餐厅也兼具了办公、学习等功能性。
图片
图片
餐边柜紧邻卡座设计,并与客厅的储物柜连接,最大化强调了空间的秩序感,且让收纳做到了互不干扰。
客厅
图片
由于客厅做了复合功能性设计,所以在布局时仅增加了一张沙发,并通过墙面留白的方式,减少了繁复与杂乱,让空间更加简洁干净。
图片
电视墙处设计了一整面的储物柜,上柜做封闭式处理,下柜做开放式处理,既方便了孩子收纳整理,又带来了更多的成长性需求。
图片
书房
图片
原有的小阳台改造成了一块开放式书房,无论是大人在此办公,还是孩子在此学习,都非常方便,且采光环境也不错。
儿童房
图片
儿童房做了房中房设计,可以让两个孩子都有一个独立的休息区,且下床还兼具了一定的储物能力。
儿童房前后两面墙均做镂空设计,除了可以为空间带来更多的趣味性之外,也优化了内部的采光、通风环境。
图片
主卧室
图片
为了提升收纳能力,主卧以榻榻米的形式做了一体化布局设计。一来可以节省空间,二来也丰富了功能性。
图片
小院
图片
小院重塑了台阶动线,并通过实木、石材等天然材质,营造出了一种闲情雅致的格调。这样即便是身处闹市中,也能感受慢生活方式的美好。
图片
本案最大的亮点,就是空间布局规划了,真的是将每一块可利用面积都利用了起来。同时,温暖的奶油风定位,也兼顾了颜值与舒适性,真的很棒。