梁云 等:论周至汉代宗庙形制的转变

作者:梁云 陈燕芝 刘婷
来源:“故宫博物院院刊”微信公众号
原文刊载于《故宫博物院院刊》2023年第3期
图片
周原西周城址(图源:“文博中国”微信公众号)
中国古代敬天尊祖,宗庙是祭祀祖先的专门礼制建筑,象征先祖的尊貌。在先秦宗法政治的背景下,宗庙具有神圣性,作为都邑的标志在建设规划中首先被考虑。西汉时期宗庙地位依然崇高,除了京都长安附近,在各郡及诸侯王国皆立有先帝宗庙。20世纪50年代以来,考古陆续发掘了一些周至汉代的宗庙遗址,为宗庙形制复原提供了难得的资料。本文拟在这些考古发现的基础上,探讨周至汉代宗庙形制的转变、西汉宗庙形制的来源等问题。
一 周代宗庙的传统形制
殷墟甲骨文有“示”和“宗”,指祖先神主和藏主之所,而没有“庙”的概念;夏代情况与之类似。二里头遗址是否有宗庙建筑还不能确定。在殷墟小屯乙、丙组许多基址附近都发现祭祀遗迹,其中乙七基址的祭祀遗迹最丰富,可能是一处商王宗庙,但未作全面揭露,其形制结构尚不清晰。
周人开始明确有“庙”的概念,《诗·大雅·緜》称“作庙翼翼”,《逸周书·世俘解》称“燎于周庙”。1976年发掘的周原凤雏甲组建筑是一个坐北向南的长方形封闭院落,始建于商末周初;发掘及研究者多认为该建筑是宗庙或“周庙”,但有学者指出该建筑门塾、出土带字甲骨的灰坑与文献中的“台门”“龟室”不符,东厢有作为庖厨的房间,西厢亦出日常用器,生活气息浓厚,因此是生活居所,不是宗庙。
1999-2000年在周原云塘、齐镇各发掘一组西周建筑基址。云塘建筑群由“品”字形分布的F1、F2、F3及环绕四周的围墙和门塾组成〔图一〕。F1位于北部居中,平面呈坐北向南“凹”字形,夯基的东、西、北边各有一处,南边凹入部分有两处台阶;夯基上共有南北向七排37个柱础坑,四周均铺卵石散水;南边两台阶门道和门塾之间铺有“U”形石子路。在F1北、北围墙南有一石片坑。F2、F3分别在F1西南和东南,F2平面呈南北向长方形, F3仅存西南一角。门塾(F8)位于南墙中部,平面呈东西向长方形,台基上为一排面阔三间的房子,其东西两边与围墙相连。围墙整体呈“凸”字形。院落西侧还有F5,平面呈南北长方形,南、西边有台阶。齐镇建筑群由F4、F9、F6、F7组成,北部主台基F4亦为面南的“凹”字形,只是台基上有南北向柱础坑八排,面阔、进深较F1各多一间;其南亦有U形石子路与F9相连。F9、F6、F7被破坏严重。两组建筑均属西周晚期。
图片
〔图一〕 云塘建筑平面图
发掘者认为主体建筑(F1、F4)的结构与前人宫庙复原研究相契合〔图二〕。F2、F3为东、西厢或东、西堂,它们与F1的关系符合《尔雅·释宫》“室有东西厢曰庙”的记载。主体建筑及F2、F3台基周围未见瓦片,与周人宗庙“茅茨土阶”记载吻合;F5东、南侧瓦砾堆积较多,应为庙西之“寝”。院落里玉石器和铜礼器残片可能是礼仪用品残留。因此这两组基址极有可能是宗庙性质建筑。
图片
〔图二〕 云塘建筑结构称谓复原图
1981-1984年发掘的雍城马家庄一号建筑群坐北向南,由“品”字形分布的庙寝、东厢、西厢,南部的门塾以及中庭组成,四周环绕围墙,形成一个闭合空间〔图三〕。门塾与庙寝在同一南北中轴线上,由门道、东西内外塾组成。外围墙的东墙北段、中段各有一门址;西墙北段有一门址。庙寝居中偏北,建筑的夯墙轮廓平面为凹字形,其正中缺口部分为前堂,面阔三间;前檐无墙,有两个夯土墩作为双楹基础。堂后有长方形的正室。前堂、正室两侧有曲尺形夹室,其后为北三室,均为长方形明间,共有三门。建筑四周有回廊和散水。庙堂前散水处有石铺漫道式台阶(东阶和西阶)。东、西厢在庙寝南东西两侧左右对称,坐东向西或坐西向东,平面格局亦为“凹”字形,只是通往南北夹室的门是开在堂之后墙的两端。庙寝之北有一亭台式建筑,平面呈长方形,四周无檐墙,四角各有两个角柱;亭台四周亦有散水围绕。中庭为一中间凹下,四周稍高的空场。在遗址内发现各类祭祀坑181个,以牛坑、羊坑为主,还有部分空坑,以及少量的牛羊同坑、人坑、人羊同坑、车坑;绝大多数分布在中庭,仅少数在建筑内发现。打破建筑地面的坑内出土春秋晚期或战国早期的陶器,表明了建筑使用的年代下限。
图片
〔图三〕 雍城马家庄一号建筑平面图
由于在院内中庭发现数量众多的祭祀坑,因而可以确定马家庄一号建筑是春秋秦国的宗庙遗址。韩伟先生认为院内“品”字形分布的三个建筑是秦人以诸侯身份所立三庙:太祖庙一、昭庙一、穆庙一,太祖庙北的“亭台”式建筑为“亳社”,即殷人亡国之社。王晖先生认为西周春秋时天子至大夫流行近亲三庙制:父庙、祖父庙、曾祖父庙,马家庄一号建筑正反映了这种制度。朱凤瀚先生最近撰文指出战国以后礼书中作为亲属分类的昭穆制度是拟构出来的,在金文及考古资料中得不到证明;将马家庄一号建筑的东西厢房解释为父、祖二庙也有问题,它们可能是北部居中庙寝的附属建筑。如此看来,关于单体建筑的性质和定名,还有探讨的余地。
细审资料,朱说优胜。理由之一是他指出祭祀坑中全身的牛、羊均头向北,即便是无头的牛、羊,腔口亦向北,表明祭祀对象是北部居中的庙寝;不见头向东或西的牛羊牲体,说明或许东西厢建筑不是享祭对象。二是东、西厢建筑分别朝向西、东,不符合古代宗庙坐北面南的惯制;尤其东厢向西,朝向阴面,与古代高等级建筑朝南向阳的传统相违背,也与祢、祖二亲庙的尊贵地位不相称。东西厢的朝向设计与云塘建筑基址F3、F2一致,后者学者们已经考证是文献中“东西堂”,为“俟事之处”;马家庄宗庙遗址亦当如是。
庙寝北的亭台式建筑与文献中亳社被立于庙门外作为“庙屏”的位置不合,也与亳社“塞其三面,唯开北牖”的形制不同,因此不是亳社。该建筑可能是《仪礼·士昏礼》中的“北堂”。《士昏礼》称:“妇洗在北堂,直室东隅,篚在东北面盥”,北堂东北角向南正对着室的东墙角,可知北堂东西横长与正室相当,而且南北正对。该建筑是一个四面通透的敞亮空间,符合“堂”的特征;且向南正对太室,二者横长亦相当。“北堂”是庙寝北盥洗之处,又名“北洗”。《士昏礼》记:“姑洗于北洗”,郑注云“北洗在北堂”。在该建筑西的空地上发现全长6.9米的陶水管道一列,为排水设施,便于盥洗。无独有偶,云塘建筑F1北的石片坑内含未经烧烤的动物骨骼,似属盥洗残余,其东侧也有排水管道,亦应属“北洗”。经学家将“北堂”解释为庙寝建筑北部的房或室,均不合乎“堂”的本义,况且“北堂”应与“东堂”“西堂”一样是独立的单体建筑。
总之,马家庄与云塘建筑的相似性明显,它们代表了周代宗庙的传统形制:院落外有围墙,院内建筑呈“品”字形分布,庙寝建筑多为“前朝后寝”(或前堂后室)的“凹”字形,其北有“北堂”(北洗);院落整体座北向南,南墙正中有门塾,东、西墙或留侧门。
需要补充的是,1984-1986年在侯马呈王路发掘的13号地点建筑以Ⅱ号基址为中心〔图四〕,其东南、西南分别为Ⅰ号、Ⅳ号建筑基址,呈“品”字形分布,合围成庭,三面环绕垣墙(Ⅴ号)。Ⅱ号基址为横长方形的主体建筑,应面阔九间,其东北角外有“阶”。Ⅱ号西连长条形的Ⅲ号基址。Ⅰ号、Ⅳ号东西对称,均为纵长方形。围墙南部正中有东西对称的夯土基址,应为门塾。13地点建筑的布局形制与马家庄、云塘建筑大同小异;其西60米处的26号地点还发现百余座祭祀坑,因此发掘者认为包括13号地点在内的呈王路基址群为晋都新田的宗庙。在该基址群的东、东南、南、西南皆有祭祀遗址,形成了一个半径不超过1000米的半圆形祭祀遗址带,以它为祭祀活动的中心和祭祀对象。从这种方位关系看发掘者的意见可以信从。
〔图四〕 侯马呈王路13号地点建筑基址
二 汉代宗庙的新形制
1958-1959年在汉长安城南、安门与西安门南出平行线范围内,发掘了一处由十二座形制相同的院落基址组成的大型礼制建筑群〔图五〕。第一至十一号院落分南北三排,南、北排各四座纵向正对,中排三座错落于南北排之间;建筑群外围还筑有一个平面方形的大院子,院墙长约1400米。大院子南墙居中位置南约10米外还有一座院落(第十二号)。
图片
〔图五〕 “王莽九庙” 建筑群位置图
每座小院落平面均呈“回”字形,即由外周方形的夯土围墙、围墙四隅内曲尺形配房、四门和中心建筑基址组成〔图六〕。围墙边长260—280米,第一至十一号院落中心基址边长55米,第十二号中心基址边长100米。以第三号院落为例〔图七〕,中心建筑台基呈“亚”字形,残高4.5米,其中间部分边长27.5米,四角各伸出一个边长7.3米的小方台,二者结合处各有双拐角。中心台基四面缺口部分均由中间的“堂”和左右“个”组成,“堂”与“个”以土坯墙相隔。四堂之间有绕过台基四角的回廊相通。回廊外围有一周高出厅堂地面0.5米的夯基(槛墙),其上每面各有三个平面方形的小夯土台,它们的前面各有一段砖路,中间砖路正对院落四门门道。整个中心建筑环绕石铺散水。曲尺形配房似为廊屋式。四门正中有门道,门道两旁有夯筑土台,似为门塾。
图片
〔图六〕 “九庙” 3号院落平面图
图片
〔图七〕 “九庙” 3号院落中心建筑鸟瞰图 (自西向东)
根据遗址内出土的文字资料,以及四门处出土的四神图像瓦当,学界普遍认为该建筑群是《汉书》记载的王莽于地皇元年(公元20年)所“起九庙”。关于其性质归属和各庙神主,黄展岳、顾颉刚先生认为“九庙”是祭祀黄帝的太初祖庙和王莽远祖、近亲庙。高崇文先生同意顾颉刚关于中排三庙神主的观点,即王莽为自己及后世子孙有功德者预留的宗庙。其说可从。
关于建筑各部分结构定名,发掘者认为中心建筑台基上的中间部分为“太室”,四角伸出的小方台为“夹室”,四面各有一“堂”,可依《礼记·月令》把东堂叫“青阳”,南堂叫“明堂”,西堂叫“总章”,北堂叫“玄堂”。此说大体无误,但中心台基是秦汉流行的夯土墩台建筑核心部分——墉,主要作为梁柱架构的依靠;形制相似的西安南郊大土门村“明堂”遗址,其中心台基四角各伸出2个小台,杨鸿勋先生指出四隅的8个小台并非建筑基座。“九庙”的中心台基较大土门“明堂”有所简化,后者四角自外向内的第二小台被前者简化成双拐角,前者四角的小方台自然不是小室的基座,即非“夹室”。“夹室”其实是“堂”左右两侧用土坯墙(“序”)隔出的空间,即左右“个”。中心台基上主体部分确应叫“太室”,西汉宗庙已有“太室”,《汉旧仪》云:“高帝崩三日,小敛室中牖下。作栗木主,长八寸,前方后圆,围一尺,⋯⋯已葬,收主。为木函,藏庙太室中西墙壁埳中。”如此,“九庙”中心建筑为四堂八个共一太室的结构。
“王莽九庙”的形制设计当有所本。西汉太上皇庙、高祖高庙在汉长安城中,其遗迹还需寻找。惠帝为高祖在长陵立庙,是为“原庙”,此后宗庙基本都置于陵墓附近,如景帝德阳宫、武帝龙渊庙、昭帝徘徊庙、宣帝乐游庙。陵庙大多位于大陵园的东南部,如阳陵罗经石遗址、茂陵10号建筑遗址、延陵3号建筑遗址;也有位于帝陵东北的,如宣帝杜陵东北400米处发现一处建筑遗址,有夯土台基并出大量汉代砖瓦及龙、凤纹空心砖,可能是杜陵陵庙。
2000-2004年在汉阳陵发掘的罗经石遗址整体平面呈内外相套的“回”字形〔图八〕。外围是正方形的院墙,边长260米,四边正中各有一门;墙外有壕沟;院墙四隅内各有曲尺形配房,配房顶部单坡向内,前有散水。在每面门塾左右两边和配房两端间各有两口井,共16口。院落中心的夯土台基建筑亦为正方形,边长54米。台基上中心位置放置一块方形巨石,即“罗经石”,其顶部加工成直径135厘米的圆盘形,表面刻有正南北方向的十字凹槽。台基周沿有砖铺回廊地面和鹅卵石散水,并残留大量瓦片堆积。四面回廊铺砖上涂抹不同的颜色:东青、西白、南红、北黑。台基外壁有成排的壁柱柱洞,台基上也有成排对应的柱洞。台基四面各设左、中、右三个台阶踏步,中阶正对院落大门门道;踏步表面砌四神纹空心砖:东青龙、南朱雀、西白虎、北玄武。遗址还出土了小型玉璧、玉圭等祭祀用品。
图片
〔图八〕 罗经石遗址平面图
罗经石遗址祭祀特征显著,学界普遍认为该遗址为汉景帝德阳宫(庙)。“罗经石”位于遗址中心最高处,遗址中间高、四周低,中心夯土台基可能如“王莽九庙”、大土门村“明堂”一样分为两级,上级即台基顶部平面为“亚”字形,其中间的正方形部分为“太室”,四角各伸出2个小方台。“罗经石”即为“太室”的中心柱础石。下级四面各有“堂”,“堂”前中部正对中阶。“堂”左右两侧,即台基四角各两小方台余留出的空间,为左、右“个”(夹室),其前正对左、右阶。四“堂”之间有绕过台基四角的内回廊相通。当然,由于后世取土破坏,中心台基的“亚”字形轮廓可能已经被夷平,仅余“罗经石”存焉。
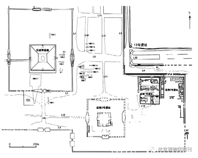
2011-2012年在汉成帝延陵勘探发现的3号建筑遗址位于大陵园东南部〔图九〕,是一个以中心建筑为核心的大型院落,中心建筑平面呈正方形,边长60.8-62.9米,其四面正中各有外凸的夯土台基,可能是四面中阶踏步;四周围绕墙垣,平面为正方形,边长238-239米,四墙正中各有一门址。采集到不少四神空心砖及铺地砖残件〔图十〕,遗址应为延陵陵庙。
图片
〔图九〕 汉成帝延陵帝陵及大陵园东南角遗迹分布图
图片
〔图十〕 延陵3号建筑遗址出土四神纹空心砖
无论考古发掘的“王莽九庙”、罗经石遗址,还是勘探发现的延陵陵庙,它们都有明显的共性特征,反映了汉代宗庙不同于周代的新形制:整体平面呈四向的“回”字形,即内外相套的两个正方形,院落围墙四边正中各辟一门,围墙四隅多有曲尺形配房,中心建筑揭露清楚地为四堂八个共一太室的结构,其四面各开三门;中心建筑四面或院落四门用“四神”纹砖瓦,有浓厚的四时、四方、五行色彩。此外,三处遗址的规模也比较接近,其中“罗经石”遗址与“九庙”院落边长均为260米,中心建筑的边长为54或55米。这种精准的一致性恐非偶然,说明了二者沿袭关系,王莽建“九庙”时显然参考了西汉宗庙的模样和尺寸。
三 形制转变的节点及原因
以阳陵罗经石遗址为代表的西汉宗庙形制来源于何处?周至汉代宗庙形制的转变发生于何时?又为何转变?
《史记·封禅书》记载汉文帝十六年(公元前164年)作渭阳五帝庙,“同宇,帝一殿,面各五门,各如其帝色。⋯⋯夏四月,文帝亲拜霸、渭之会,以郊见渭阳五帝。五帝庙南临渭,北穿蒲池沟水,权火举而祠,若光辉然属天焉”。有学者认为汉景帝德阳宫是在废弃的渭阳五帝庙的基础上改建的,后者“变废为宝”,由此造成了汉庙形制的转变。
五帝庙位于霸渭交会处的渭河北岸,罗经石遗址在今霸、渭交会处西约6.39公里。今渭河河段较西汉时普遍北移,最大幅度达五公里以上,西汉时霸渭交会处应更靠南,与“罗经石”遗址距离更远。罗经石遗址与渭阳五帝庙位置并不重合,后者恐已为渭河河道冲毁。此外,五帝庙四面各五门,不同于德阳庙面各三门。因此德阳庙并非建在渭阳五帝庙旧址上,以前者为代表的汉庙形制也不是来源于后者。《汉书郊祀志》记载汉成帝时听从匡衡、张谭之奏而废止了包括渭阳五帝庙在内的诸多祠祀,“又罢高祖所立梁、晋、秦、荆巫、九天、南山、莱中之属,及孝文渭阳、孝武薄忌泰一、三一、黄帝﹒﹒延年之属”。其中,“孝文渭阳”即渭阳五帝庙。可见一直到汉成帝时该庙还在沿用,祭祀如故,与德阳庙并存。
从西汉宗庙乐舞制度来看,孝文庙、孝惠庙、高庙及原庙应采用了与德阳庙相同的形制。《汉书·礼乐志》曰:“高庙奏《武德》《文始》《五行》之舞;孝文庙奏《昭德》《文始》《四时》《五行》之舞;孝武庙奏《盛德》《文始》《四时》《五行》之舞。⋯⋯诸帝庙皆常奏《文始》《四时》《五行》舞云。”诸庙乐舞大同小异,《文始》《五行》更是常备曲目。乐舞演出需要相应场地,与建筑结构严格匹配,相同的乐舞意味着相同的建筑空间布局。由此可知,西汉诸帝庙的形制相当一致。汉阳陵宗庙只是因为保存下来,并经过完整发掘,才被作为其中典型。此外,顾名思义,《四时》《五行》舞有比较强烈的时令、五行色彩,其中《五行》舞者“戴象征水、土、火、金、木五行的青、黄、赤、白、黑五种颜色的冠冕”,与汉庙四向“回”字形结构以及用四色、“四神”纹砖瓦表示方位的风格相契合。
更重要的是,西汉宗庙乐舞制度主要袭自秦代。西汉宗庙乐是由秦乐人制作的,《礼乐志》说“高祖时,叔孙通因秦乐人制宗庙乐”;汉庙乐舞“大氐皆因秦旧事焉”。《五行》舞即由秦始皇改周舞之名而来,周舞本名《大武》。《文始》即《韶》舞,传说为舜所作,后传入齐,又由齐入秦。这两支乐舞被作为秦代庙乐。宗庙乐舞相承,宗庙形制自然相袭。因此,西汉宗庙形制来源于秦代宗庙,即秦始皇庙。
蔡邕说:“汉承亡秦灭学之后,宗庙之制,不用周礼。每帝即世,辄立一庙,不止于七,不列昭穆,不定迭毁。”指出西汉宗庙制度与周制迥异。惠帝时叔孙通制定“宗庙仪法”,可能与他在高祖时拟定朝仪一样,“颇采古礼与秦仪杂就之”。但“古礼”为虚,“秦仪”为实;叔孙通曾为秦廷博士,熟悉秦朝礼仪,应主要借鉴后者。
先秦宗庙主体建筑的结构为“前朝后寝”或“前堂后室”。马家庄宗庙遗址发掘简报将前有双楹、面阔三间的前堂称为“前朝”,将其后的长方形正室称为“后寝”。这种结构,东汉蔡邕《独断》说“宗庙之制,古者以为人君之居,前有‘朝’,后有‘寝’,终则前制‘庙’以象朝,后制‘寝’以象寝。‘庙’以藏主,列昭穆,‘寝’有衣冠、几杖、象生之具,总谓之‘宫’。”宗庙建筑模仿宫殿,前面“朝”的部分又叫“庙”,用以安放祖先神主(木主);后面“寝”的部分陈列祖先衣冠及生活用具,如同活着般供奉。《礼记·月令》:“寝、庙毕备,”郑注:“前曰庙,后曰寝,以庙是接神之处,尊,故在前;寝,衣冠所藏之处,对庙为卑,故在后。”死者衣冠平时被藏于庙后之寝,由守祧保管;重大祭祀活动行尸礼时,授予尸穿戴。《周礼·春官·守祧》:“掌守先王先公之庙祧,其遗衣服藏焉。若将祭祀,则各以其服授尸。⋯⋯既祭,则藏其隋及其服。”
但是到了西汉,宗庙中已不存放先祖衣冠;由于庙、寝分离,要定期举行“月游衣冠”仪式,即将先帝陵寝中的衣冠送到宗庙中接受祭享。该仪式活动在惠帝时已经存在,惠帝为了往来方便欲建一条连接未央、长乐宫的复道,遭到叔孙通反对,“‘陛下何自筑复道高帝寝,衣冠月出游高庙?子孙奈何乘宗庙道上行哉!⋯⋯愿陛下为原庙渭北,衣冠月出游之,益广宗庙,大孝之本’。上乃诏有司立原庙 ”。文中“高帝寝”,如淳认为是“宫中之寝”,晋灼引《黄图》说“寝在桂宫北”,颜师古曰:“诸家之说皆未允也,谓从高帝陵寝出衣冠,游于高庙,每月一为之,汉制则然。”当以颜说为是。在陵旁立庙,是为了方便将陵寝中的衣冠送到陵庙中游历一番。可见无论高庙还是原庙,平时都不存放死者衣冠,也无存放之处,是一种有堂而无寝的结构,与先秦宗庙截然不同,否则“月游衣冠”多此一举。陵寝与陵庙之间的专用道路被称为“宗庙道”或“衣冠道”;不仅高庙,西汉诸帝陵一般都有“衣冠道”,如汉景帝阳陵陵园内的第16号道路。“月游衣冠”既然是西汉通行的制度,那么西汉诸帝庙的形制也应相同。
西汉陵寝制度承袭自秦代。蔡邕《独断》云:“古不墓祭,至秦始皇出寝,起之于墓侧,汉因而不改,故今陵上称寝殿,有起居衣冠,象生之备,皆古寝之意也。”  近年在秦始皇陵陵园内城西北部发现一处大型陵寝建筑遗址,为南北向长方形建筑群,周边有墙垣,其内由中部的9条南北向连通的廊道,分割为九组东西对称的建筑,靠南的第十院落与70年代发掘的寝殿连为一体,如此共同组成了十进院落。西汉陵寝建筑,基本沿袭了始皇陵陵寝的布局及形制特点,如大多位于封土或帝、后陵园的西北或北侧,寝园平面形状都为南北向纵长方形,寝殿台基位置靠近陵园或封土等。
因此,庙、寝分离始于秦代。战国时期君主集权及其官僚制度逐渐形成,君主个人的陵墓及墓祭活动越来越受重视,与之同时宗庙的地位有所下降;其结果就是“庙后之寝”从宗庙中脱离出去,转移到陵墓附近,发展成为规模宏大的祭祀性礼制建筑。秦始皇陵寝园的规模和复杂程度远非先秦“庙后之寝”所能比拟,除了盛放死者衣冠,其寝殿还有“日四上食”的常祭活动,北部九进院落可能居住等秩不同的守陵宫人,充分体现了“事死如事生”的理念。宗庙形制的变化与陵寝的出现相呼应,秦始皇庙与汉庙一样,也应是有堂而无寝的结构。
《史记·秦始皇本纪》:“(二十七年)自极庙道通郦山。”公元前220年秦始皇建极庙的同时,又修筑了连通极庙与陵园的道路。后来极庙成为秦始皇宗庙,这条道路便成为宗庙与陵寝之间的专用道路,性质相当于汉代的“宗庙道”或“衣冠道”。杨宽先生认为西汉在宗庙和陵寝间修筑通道,沿袭了秦始皇的做法,堪称卓识。如此说来,“月游衣冠”制度可能是从秦代开始的,被西汉所继承。
《秦始皇本纪》记载秦二世元年(前209年)召集群臣议定新的宗庙礼制,内容之一是将极庙作为始皇宗庙,并尊为帝者祖庙;二是重新整理秦国宗庙系统,将襄公以下先公、先王宗庙合并为“七庙”,与始皇庙分属两个序列。此事已经得到湖南兔子山出土秦二世元年诏书简牍的证实,其文曰:“天下失始皇帝,皆遽恐悲哀甚,朕奉遗诏。今宗庙吏(事)及箸(书)以明至治大功德者具矣,律令当除定者毕矣,以元年与黔首更始,尽为解除故罪,令皆已下矣。⋯⋯”“宗庙事”即议定始皇庙之事,“箸”读为“书”,指记载秦始皇功绩的史书;均被二世当作头等大事。文书颁布于二世元年十月,秦以十月为岁首,它又被称为“秦二世登基诏书”。二世胡亥登基之初就向天下宣布此事,意在宣扬自身功德及其继位的合法性。
秦二世元年的宗庙改革,是周至汉代宗庙形制演变的转折点,也是新、旧两种宗庙制度的分水岭。
近年发掘的甘肃礼县四角坪遗址,揭示了秦代祠庙类建筑的布局。遗址位于县城东北的四格子山顶,面积约2.5万平方米,外周有方形夯土围墙;中心有方形夯土高台,高台边长约27米,其周缘有铺砖、散水;高台上的中部有近方形半地穴式房址,其四角有角柱,四壁上有成排铁钉,房址地面铺砖并有覆瓦;在中心高台和外围墙之间,四面各有平行、对称的两排附属建筑,每排建筑有两个台基房间,并有通道与拐角的曲尺形建筑相连〔图十一〕。该建筑遗址平面呈“回”字形,与秦代西汉宗庙极为相似,只是较后者多出了四面的附属建筑,其中心夯台上的半地穴式房址也较为特殊。
图片
〔图十一〕 四角坪遗址中心高台及附属建筑复原示意图
《秦始皇本纪》:“二十七年,始皇巡陇西、北地,出鸡头山,过回中。焉作信宫渭南,已更命信宫为极庙,象天极。”始皇统一天下后第一年就西巡陇西,回访秦人兴起之地——礼县(秦汉西县),并祭告上天及列祖先公。四角坪可能是专为这次祭告活动而修建,中心高台上的半地穴房址即为祠堂,主人立于其上举行仪式,扈从百官环立于四面附属建筑。该建筑位于郊外,不同于位于都城内的宗庙,中心高台边长仅相当于西汉宗庙中心建筑的一半,其上祠堂也较为简朴,不如宗庙讲究;但在整体布局和祭祀对象上又与宗庙类似。
四角坪遗址的性质应是汉代人记载的“人先祠”。《史记·封禅书》集解晋灼曰:“〈汉注〉在陇西西县人先祠山下,形如种韭畦,畦各一土封。”索隐《汉旧仪》云:“祭人先于陇西西县人先山,山上皆有土人,山下有畤,垺如菜畦,畤中各有一土封,故云畤。” 所述祭祀场地“垺如菜畦”,即外围有城墙,围成方形,形如方正齐整的菜田;其中有土台(封),与四角坪遗址布局相吻合。《说文》称“田五十亩曰畦”。四角坪遗址如果加上残毁部分,总面积与之相当。“人先”即“先人”或“祖先”,“人先祠”其实是秦人祭告上天、祖先的祠祀,不同于单纯郊祀的“畤”。四角坪专为秦始皇西巡祭祖而建,使用时间短暂,可能属一次性使用的建筑,进入汉代很快废弃;汉代人对其性质用途已不甚清楚,笼统地称之为“人先祠”。
四 秦代西汉宗庙形制的思想渊源
极庙最初的性质是什么?杨宽先生认为是秦始皇为自己所建的宗庙,而西汉皇帝生前为自己建庙的制度,就是沿袭秦代的。此说未安。因为二世既然下诏“议尊始皇庙”,那么始皇生前为自己立庙的可能性不大,否则毋须讨论。
汉初未有生前立庙的制度,汉高祖就不曾为自己立庙,高庙的庙号是刘邦卒后惠帝与群臣在太上皇庙议定的。《汉书·韦玄成传》:“京师自高祖下至宣帝,与太上皇、悼皇考各自居陵旁立庙。”惠帝在长陵旁建“原庙”,由此开启了西汉陵旁立庙的传统。西汉惠、景、武、昭、宣、 元、成诸帝,甚至包括哀、平二帝的庙,均立于陵旁。争议较大的是汉文帝庙,或认为在汉长安城东郊的长门一带,或认为在霸陵旁。一项制度一旦确立,不会轻易更改,所以实不能排除后者的可能。西汉陵庙大多位于帝、后合葬的大陵园内,个别位于陵园附近。陵庙作为陵园礼制建筑,其营建当然属于陵园工程的一部分。西汉帝陵在皇帝生前在位时就开始营建,陵庙自然如此。因此,西汉皇帝生前为自己建庙与陵旁立庙制度有直接关系,并非源自秦代。
秦始皇在统一全国后第一年建造极庙,应有其政治目的和特殊意义。王贵祥先生认为极庙性质相当于前世之明堂,为秦创立的属于自己的宗教礼仪建筑;称之为“极庙”,说明在秦代明堂类建筑的称谓尚未定型。其说可从。
极庙遗址尚未发现,有学者认为在渭河南岸草滩镇阎家寺一带,但遗迹现今难觅。极庙本名“信宫”,《左传·庄公三年》:“再宿为信,”似为别宫;但战国时赵都邯郸亦有“信宫”,为举行大朝会和接见外宾场所,有前朝正殿性质。或认为“信”通“神”。西安北郊秦封泥有“信宫车府”,澳门珍秦斋藏秦信宫罍铭文“信宫左般”,传世信宫鼎铭“信(宫)右(般)”,信宫有曹署、车府,服务于皇帝起居、出行。更名为“庙”,说明其祭祀性质;极庙建成后“四海之内皆献贡职,增牺牲”,可见祭祀之隆重。极庙这种集天子(皇帝)起居与宗教祭祀为一体的特点,与后世文献记载的明堂相吻合。
极庙与明堂一样用于沟通人神,因而都具有强烈的法天色彩。《史记·秦始皇本纪》索隐:“为宫庙象天极,故曰极庙。” 《史记·天官书》:“中宫天极星,其一明者,太一常居也。旁三星三公,或曰子属。后句四星,末大星正妃,余三星后宫之属也。环之匡卫十二星,藩臣。皆曰紫宫。” 天极星及其旁属、环卫之星统称“紫宫”。无独有偶,明堂正中的“太室”也象征“紫宫”,亦可说“象天极”。《礼记·明堂阴阳录》:“明堂之制,周旋以水,水行左旋以象天。内有太室,象紫宫。南出明堂,象太微。西出总章,象五潢。北出玄堂,象营室。东出青阳,象天市。”总之,极庙最初性质为秦代明堂,具有祭祀、布政、教化、起居多重功能,是皇帝与上天沟通、并顺时颁政的神圣建筑。秦始皇在统一后第一年营建之,有宣扬天命所归、君权神授的意义。
极庙的设计,当以《吕氏春秋·十二纪》为蓝本。《十二纪》将四季各分为孟、仲、季三月,一年十二月,天子依时起居,由东而南,由南而西,由西而北,顺时针方向旋转,每月居住在明堂建筑的不同房间(堂屋),车驾、衣服、饮食及所尚颜色四季亦各不相同。如春季“乘鸾辂,驾苍龙,载青旂,衣青衣,服青玉,食麦与羊”,孟春之月居青阳左个,仲春之月居青阳太庙,季春之月居青阳右个;夏季“乘朱辂,驾赤骝,载赤旂,衣赤衣,服赤玉,食菽与鸡”,孟夏之月居明堂左个,仲夏之月居明堂太庙,季夏之月居明堂右个;秋季“乘戎路,驾白骆,载白旂,衣白衣,服白玉,食麻与犬”,孟秋之月居总章左个,仲秋之月居总章太庙,季秋之月居总章右个;冬季“乘玄辂,驾铁骊,载玄旂,衣黑衣,服玄玉,食黍与彘”,孟冬之月居玄堂左个,仲冬之月居玄堂太庙,季冬之月居玄堂右个。君主言行、政令亦被要求与春生、夏长、秋收、冬藏相符。为了满足这种礼仪和政治需要,明堂的中心建筑就得建成四向正方形,四面对应四季,每面又分左个、太庙(堂)、右个三间,对应孟、仲、季三月;四边共十二堂屋,对应十二月。
这种形制与西安西郊大土门礼制建筑很相似,该遗址包括中心建筑,方形院落,及外围的圜水沟〔图十二〕。方形院落四面围墙正中各开一门,四隅内有曲尺形配房。圜水沟四边正对四门处还各有一长方形小水沟。中心建筑平面呈“亚”字形〔图十三〕,正中为方形的大夯土台,其上原有建筑,四面各有对称的“抱厦”、“厅堂”。据杨鸿勋先生复原,夯土台上有太室,“抱厦”即为面阔四间的堂及其左右各面阔两间的个(北面左右个各一间半),“厅堂”即为堂后用土坯墙隔成的室及其左右的房,如此为四堂八个五室的结构〔图十四〕;与王国维复原的明堂图基本一样〔图十五〕。从其位置、结构及相关记载看,该遗址应为汉平帝元始四年王莽所建明堂,因其外围圜水,有时又被称为“辟雍”,实则为明堂、辟雍一体的建筑。刘歆为王莽国师,主持明堂建造,除了当时尚存、现已亡佚的一些古籍,他还参考了《吕氏春秋·十二纪》和《礼记·月令》,这些文献所述明堂形制大体相同。由此可以解释大土门建筑与《十二纪》的相似性。秦极庙到汉元始明堂形制上一脉相承,都属于“月令明堂”系统,不同于传世文献记载的“周人明堂”。后者其实指治朝或太庙。
图片
〔图十二〕 大土门遗址平面图
图片
〔图十三〕 大土门遗址中心建筑平面图
图片
〔图十四〕 大土门遗址中心建筑底层复原图
图片
〔图十五〕 明堂图 (王国维复原)
如果不考虑大土门遗址的外围圜沟,则其整体平面为“回”字形,形制布局与秦代西汉宗庙一致。李零先生曾注意到“罗经石”遗址形制与王莽明堂类似,认为明堂与宗庙有一定关系,可能在武帝以前人们就已接触到某种“明堂式设计”,并把它应用于早期宗庙、包括陵庙。现在我们知道极庙本为明堂,秦二世元年将其性质改为始皇庙,其形制又被汉庙继承,遂使秦代、西汉宗庙具有一种“明堂式”风格。
西汉宗庙遗址中心建筑台基四面共有四堂八个,与明堂十二堂屋之数吻合。但明堂与宗庙性质功能不同,前者为天子袷祭上帝、宣教布政场所,后者用于祭祖。《汉书·韦贤韦玄成传》:“日祭于寝,月祭于庙,时祭于便殿。寝,日四上食;庙,岁二十五祠;便殿,岁四祠。又月一游衣冠。”晋灼曰:“〈汉仪注〉宗庙一岁十二祠。⋯⋯与此上十二为二十五祠。” 这里“一岁十二祠”就是每月衣冠出游。《汉旧仪》:“原庙一岁十二祠,闰加一祠,月游衣冠以庙馈食之日。”可以根据考古发现的宗庙遗址〔见图六至图八〕,简单复原“月游衣冠”仪式:每月将先帝衣冠从陵寝中请出,送到庙中对应的堂屋(堂或个)内接受祭享;“堂”或“个”与各月的对应关系如《十二纪》所述;每年衣冠出游始于孟春之月,终于季冬之月,用于祭享的堂屋始于东堂(青阳)左个,顺时针方向旋转,止于北堂(玄堂)右个。该仪式其实是对天子在明堂依时起居的模拟或再现。
被送至庙内接受祭享的先帝衣冠是否如《十二纪》所言有青、赤、白、黑四种颜色?这种可能性不能排除。首先,秦代西汉宗庙有强烈的四时五行色彩,源于秦代明堂设计中的阴阳五行思想;先帝衣服分四色与之协调一致。其次,《汉书·魏相传》记载汉高祖命群臣议天子所服,随季节易服行事,四季各有专人负责。可见西汉皇帝衣服四季各不相同,“能法天地,顺四时”。
《吕氏春秋》作于秦王政六或八年(公元前241或239年),彼时秦统一全国的形势已经明朗,吕不韦为相邦,嬴政即将亲政。杨宽先生说:“殆〈吕氏春秋〉一书,吕不韦盖欲秦王法之以为天子者也。”换言之,《吕氏春秋》本为秦始皇准备,意图作为将来秦帝国的施政纲领。不韦旋即废黜身死,但其书中部分建言后来却被采纳。《吕氏春秋·应同》记载了五德代兴之事,并预言“代火者必将水”;《十二纪》又将四时与五行相配,说孟冬十月“律中应钟,其数六”、“盛德在水”;这些学说在统一后被秦始皇采用,“更命河曰德水,以冬十月为年首,色上黑,度以六为名,音上大吕,事统上法” 。《十二纪》包含内容丰富,但以明堂、月令为主干;秦始皇统一后欲建明堂,以之为蓝本设计、施工,是顺理成章的事。
所谓“月令”,就是按月颁布政令。《礼记·月令》郑玄注云:“名曰月令者,以其纪十二月政之所行也。”月令是王行惠政的依据,属于王礼,其颁布需要特定场所,即四时五行十二月相配的明堂,故“月令”、“明堂”往往连称。今天尚存的月令文献有《吕氏春秋·十二纪》《礼记·月令》和《淮南子·时则训》。前二者大同小异,关于它们之间的关系及渊源,自古以来争议较大,今人多认为《月令》早于《十二纪》,或出于齐人邹衍,或出自晋太史之书。月令是中国古代将天文历法、农业生产、行政管理与阴阳五行相配套的制度设计,战国时期列国可能都有自己的月令安排,如齐国的《管子·幼官》,长沙子弹库楚帛书。楚帛书年代约在公元前350年前后,被称为“纪元前四百年间的月令”。吕不韦门下食客三千,著录其门客见闻的《吕氏春秋》内容庞杂,其中《十二纪》可能是裁取当时列国尤其是东方国家的月令内容整合而成的。
综上所述,秦代西汉宗庙形制源于秦代明堂(极庙);而后者的出现,是战国时期月令明堂思想发展、成熟的结果。
作者单位:西北大学文化遗产学院 汉景帝阳陵博物馆
注释从略,完整版请参考原文。