杭州一户人家:装修明明很复杂,可看起来却特清爽,太漂亮了

都说在装修新房时,硬装处理宜简不宜杂,这样整体效果出来后,会更加简洁耐看。可事实上,对于很多初次装修的人来说,还是希望给家里增加一些造型,让空间看起来更有腔调。
比如下面这位屋主在装修新家时,就希望家里的每1㎡都能充满精致与时尚的腔调。因此,硬装这块也做了很多造型。不过让人非常惊喜的是,明明看起来很复杂的装修,可当效果出来后,却十分干净清爽,真的是太漂亮了。
平面结构图
图片
本案坐标杭州,面积120㎡,屋主一家三口。对于空间,屋主理想中的家应该是清爽慵懒,颜值与功能兼具的。再加上是第一次装修,很想把自己喜欢的元素融入到空间中,所以硬装造型这块的处理,也比较丰富。
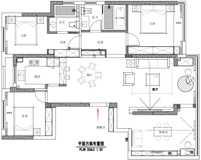
平面方案图
图片
结合屋主的需求,空间布局如下
1、利用电梯间的面积设计鞋柜,让室内更加整洁干净。
2、厨房采用开放式设计,与餐厅形成一体化。
3、书房采用开放式设计,进一步提升客厅的通透性。
4、缩小两个卫生间的纵深,重塑主卧与儿童房睡眠动线,让空间充分得到利用。
入户
图片
进门第一视角,弧形的门洞垭口、拱形的小壁龛、以及顶面大梁采用抹圆处理,一进门就营造出了一抹轻柔、舒适的气息。而在鞋柜摆在电梯间的情况下,也立马让入户做到了干净利落。
图片
客厅
图片
进门右侧就是客厅,木地板采用鱼骨拼花,并延伸至阳台,虽说看起来有一些复杂,但在空间大面积留白,以及顶面采用无主灯设计的情况下,却也彰显出了清爽的气质,且有了一丝复古优雅的格调。
图片
模块式的电视造型墙,悬浮式的电视柜,既在视觉上做到了轻盈,又强化了空间的层次。同时,在日常生活中,也方便了扫地机器人清理卫生。
图片
电视墙细节展示,在南阳台纳入室内的情况下,电视墙模块转角处采用弧形过渡,除了可以让视觉过渡更加平滑自然之外,也间接性让空间形成了半围合式的结构,让空间表现更加开阔、简约。
图片
在书房做了开放式设计的情况下,门洞垭口同样采用了弧形设计,使其与过道门洞做到了对称、呼应,让空间更加协调。
图片
图片
沙发背景墙采用石膏线条和立体雕花来设计,看似是一个很复杂的处理,但实际上施工起来却特别简单,并且成本也非常有限。
不过简单归简单,效果却相当不错,尤其是在搭配上复古的皮面沙发后,更是营造出了优雅、浪漫,让空间更加精致。
图片
阳台的设计比较常规,不过一组一体家政柜设计,却也充分满足了日常的洗晒需求,并兼具了家政工具的储物功能。
图片
餐厅
图片
来到餐厅,相较于客厅的优雅、复古,这里则是以小清新的基调定位的。不过小体积的圆桌,以及藤编材质的餐椅,却也与客厅的复古风形成了呼应。
当睡眠区的动线重新规划之后,餐厅侧面也满足了储物柜设计。柜体以纯粹的白色为主,再搭配上少量的青绿色,以及长虹玻璃元素,既再一次彰显出了清爽的气息,又在视觉上做到了平衡。
图片
餐厅看向厨房视角,为了提升空间的通透性,以及强化生活中的互动性,则给厨房做了开放式设计,并增加了吧台隔断。这样既让面积起到了互补的作用,又延伸出了一块休闲区,让日常生活更有情调。
图片
厨房
图片
来到厨房,薄荷绿的橱柜色彩选择,可以说十分大胆了,不过也从侧面体现了屋主对新家的期待。毕竟自己的家,肯定要融合自己喜欢的元素,哪怕略显浮夸,但在自己看来,每一帧都是一幅绝美的画面。
图片
常规的L型橱柜+高柜设计,可以说是非常实用的设计了。既拥有了充足的储物操作区,也满足了人性化的使用动线。而给地面铺上白色的瓷砖,墙面铺上灰色的瓷砖,也宣告了空间“独立”的属性,并形成了极致的撞色对比。
图片
主卧室
图片
来到主卧,空间同样重新定义了氛围基调。墙面以白色+蜜桃粉为主,再搭配上石膏线条,不仅营造出了独有的法式浪漫,也尽显优雅温柔的气质,从而让睡眠环境更加舒缓轻柔。
图片
儿童房
图片
儿童房的设计相对简洁,不过给墙面刷上淡淡的牛油果绿乳胶漆后,却也呼应了清爽的空间主题,并为空间留下了更多的想象,以便孩子自己填补。
书房
图片
书房在原有的空间基础上,向外面的阳台做了延伸处理,一来提升了使用面积,二来也充分引入了采光,从而让空间更加开阔、明亮。
空间色彩搭配,算是延续了餐厨区的元素,复古又清净。而极度松弛的布局,也让空间有了更多的功能弹性。无论是亲子、休闲、储物、学习,都可以得到满足。
图片
卫生间
图片
主卫的纵深尺寸虽说缩小了,但开间却也让主卧做了扩大处理。这样不仅让空间面积分配更加合理了,也满足了淋浴房和浴缸的空间需求,从而让生活使用更加舒适。
图片
图片
本期案例就分享到这里,虽说整体设计和色彩搭配都略显复杂,但空间表现还是挺清爽的,并且十分符合屋主的审美。对此,你们怎么看呢?