三个45㎡小户型实现玩+学兼顾的儿童房设计,攀岩、攀爬网、吊单杠住在游乐场里放暑假父母也不怕!

全世界父母最恐惧的暑假来啦!这个小恶魔们解放的日子,许多父母求好心切,把孩子们送去培训班,但这样却无法进行适当的休闲、放松、充电,其实在成长过程中,不知不觉形成了难以抹灭的阴影,与其这么压迫,不如把家里造成具有启发、合适学习的状态,或许对孩子的成长有利许多。
图片
许多房主总是问我们“小户型儿童房怎么装?”、“小户型能有儿童房吗?”
当然行!谁说小户型就得屈就?我们可不接受这档事!
本期,就来看3套45m2小户型,让家就是玩不腻的游乐场。
大多数家长对于儿童房的诉求:
①孩子不断成长,长大后不因过于可爱的装修而不适应:毕竟不太可能每隔两三年就大规模装修一次,建议使用可活动的家具,便于随时更换。
② 房内需要有足够的收纳空间:孩子玩具、衣物、书本等,需要收纳的东西很多。
③ 启发孩子感官 ,在这个空间实现玩+学:让孩子的玩得开心,同时兼顾学习。
④ 当然,还有保证安全性是一切儿童房设计的前提。
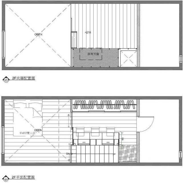
1) 我家就是游乐园,45m2待多久都不腻
这间45m2小户型楼高 4 公尺,原本就开有天窗,但却要挤下一家四口,随着小朋友日渐长大,需要的活动空间更多。
图片
晟角制作利用 4 公尺的楼高做出跃层,也“偷”出1.5 m2,把原有的 45m2增加到将近45m2的使用空间,而且利用安全网取代隔间,不但穿透性十足,而且减少隔断阻碍,无形中又增加使用空间。
图片
从楼梯走上跃层,走道的部分规画成多功能的阅读空间,木作做出屋形及拱形镂空的收纳,而桌面则具有移动收合功能。
图片
图片
图片
在楼梯上方做了迷你夹层,“偷”出1.5 m2使用空间,利用安全网隔间,变身明亮的多功能卧榻区,让人一坐就舍不得离开。
图片
图片
利用 4 公尺楼高做出的夹层,却刻意不做满,将原有的天窗挖大,采用晟角制作的特殊工法,解决顶楼容易产省的漏问题虑,让自然光从顶部洒落,白天不必开灯,晚上还能看星星,成为小朋友最爱的秘密基地。
刻意不做满的夹层部分,则由攀爬网取代实质的天花板,小朋友一样可以安全地在上面活动,让阳光透过此处穿透,照亮全室,同时串连楼上与楼下的互动。
图片
主卧室坐拥挑高空间感,规画出阅读角落,延续夹层儿童游戏室的风格,在墙面以帐篷图案装饰。
图片
拉门制作出大小不同的镂空圆形,与上方的跃层连成一体,可随时观察到孩子在跃层中的使用状况,为大人小孩都保有独立空间。
图片
图片
2 ) 45m2一家三口住在城堡里
室内实际坪数只有45m2的小户型,要住进一家三口,还要让孩子能有足够的活动空间,同时更要启发孩子的感官、符合大多数家长对于儿童房的要求。
图片
图片
过多的装修会成为空间负担。晟角制作设计团队成功说服业主「有舍才有得」,直接以餐厅代替客厅,成为生活重心空间。在控制预算的情况下,利用最简单的圆形、三角形及方形等几何图形,搭配北欧风系统家具,让小宅变身童趣十足的欧风城堡,又能收纳女主人大量的料理工具。
图片
虽然户型小,但具有挑高的优势,3.6 公尺的楼高,跃层的规划是必要的需求,供孩子使用。因此而产生的楼梯对象,下方并没有预期的满墙橱柜,意外地成为开放式空间,恰巧可以放得下较高的厨房用品与大冰箱,收纳机能更灵活,视觉也更能延伸。
图片
图片
图片
楼梯是以铁件+德国进口木地板结合的薄型楼梯,宽度及高度都经过精密计算,甚至配合梁柱提前2阶收尾,方便成人出入。楼梯的那面墙则涂满浅色黑板漆,成为小朋友最佳的涂鸦天地;转角则利用三角层架做出展示空间,完全不浪费。
图片
图片
为了满足收纳机能,特别安排的收纳柜墙面具有隔断作用,让小户型中没有鸡肋第,在柜门上利用简单的几何图形做出镂空,顿时让空间活泼了起来。较大的圆形具有透气作用,而较小排成 3 个一体的圆形则兼具把手功能,相当巧妙。镂空的柜门的空间反而成为小朋友游戏空间,也能当座椅使用,有较多朋友来访时,这里就变成抢手的好位子。
图片
图片
图片
原来的窗户虽然能迎进令人羡慕的自然光,但香槟色的铝窗实在跟北欧风格的空间主调格格不入。这时不必花大钱敲掉窗户重做,利用木百叶就能轻松换得一窗好心情,搭配圆拱造型的木作,变成美丽的角落。主卧室房的入口也运用了相同的方式,圆拱式的隐形门打开后,灰蓝色的主卧室墙面与层架,变成了一幅画。
图片
在有限的预算下,利用油漆粉刷就是简单创造空间质感的方式。主卧室使用沉稳内敛的灰蓝色为主色调,配合简单又有型的北欧风家具、单纯又利落的书桌及层架,成为文青气息浓厚的阅读角落。
图片
图片
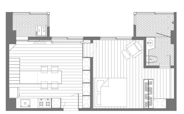
3 ) 45m2在家攀岩,还能有中岛厨房
45m2的北欧风家中,充满着温暖、童趣的气氛,设计师为屋主发想在空间中生活的可能型,期待在有限的坪数中,让孩子玩得开心、大人也能有自己的生活,不压缩彼此的空间。
图片
玄关区域,将入口与室内作出地坪的差异,提供一种过度的情境转换,并压低了空间高度,搭配着具奇幻感的圆弧造型手把与穿衣镜,及略暗的光源照明,酝酿出一股平静的氛围,达到转换心情的作用。
图片
图片
图片
客厅的沙发墙,则使用渐层式的喷漆工法,无形中达到挑高与放大空间感的目的。
图片
图片
楼梯下方则安置开放中岛、U字型的中式热炒区等,而楼梯除了提供串联跃层,也是孩子可健身、玩乐的区域。
图片
图片
图片
透过楼梯位置的设定,有助规划电视墙后方的高柜收纳,并整合餐厨设备机能等,在有闲空间内充分善用每一吋坪效!
图片
图片
同时也打造一处生活交会的多弹性空间,留有俯瞰一楼的圆形窗扇,作为生活动态的视觉交会中心,串起与小孩房、厨房、客厅、庭院等的视线,开启家人之间的情感互动!
图片
图片
图片
图片