终于,广州也有这样的“王炸”户型了!

图片
作为一支曾经在整个湾区实踩过一轮的团队,我们一直有个深刻的感觉——
广州这个地方,与各种神盘迭出的长三角、大西南,甚至隔壁的深圳都不一样。
虽然房价还算亲民,但楼盘的品质感和居住的舒适度,实在是配不上一线城市的地位。
在网上随便一搜,全是这样的灵魂发问——
图片
就连从内陆省会郑州过来的朋友,都不得不……吐槽一下广州的户型,可见广州楼市的产品力有多落后。
二十年楼龄的老破小就不说了,就算是这几年入市的新盘,楼距也都普遍窄,得房率不高。
对于囊中羞涩的年轻人就更加不友好了——
他们口袋里的钱基本只够买百平米以下的中小户型,而这样的户型,朝向大概率向北,通风采光也大概率不好。
但是!最近我在广州市场上踩盘时,居然发现了这么一个居住体验满分的“王炸项目”!
更令人惊喜的是,这个项目居然把最好的产品和位置,留给了……一直在楼市中被忽视的,年轻的刚需们。
先问大家一个问题:在你心目中,一个90平左右的三房刚需户型,应该是什么样子的?
可能是这个样子——
主朝向朝北,长而幽暗的客餐厅,左下的小房间,开窗面积只有小半面墙,光线有多差可想而知。
如果设计师比较潮,加入了最近流行的横厅元素,那可能会是这个样子——
采光面虽然宽了不少,但客厅这种高频使用的空间想要有真正的南北对流,需要打开,嗯,洗手间的门……
更别提主卧的卫生间门直接怼着床头了,想要通风还是好风水,你自己选。
是不是有点难以接受?
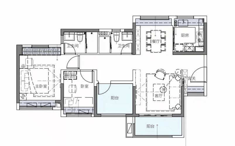
但是!在这个王炸项目里,挂在样板间门口的90平户型图,是这个样子的——
图片
(地产知识橘|拍摄)
咋一眼看上去,这个户型特别扁而宽。
用相对专业的话来说,这就是“大面宽,小进深”的经典户型。
这样的设计有什么好处呢?大概就是——
处处都有大窗户的感觉吧。
销售小姐姐说,因为项目大面积采用钢化透明玻璃,窗地比大概相当于同级别产品的1.5倍。
顺便解释一下,窗地比也就是房间窗洞口面积与房间地面面积的比,这个数字越高,说明室内的采光越好,舒适度越高。
而且,客厅和所有的卧室居然都拥有一整面墙的南!向!窗!户!
也就是说,这个户型做到了全屋≥4开间朝南——一般只有四房才能做到的三个房间朝南,在这个三房户型里,竟然实现了!
而且,客餐厅和主卧还都是双面开窗,通风一流,毫无遮挡!
我放个示意图,你们就懂了。
图片
建面约90㎡户型图
我想象了一下,这么多的大窗户,白天窗外的阳光和风景几乎等于登堂入室,而在南方漫长的夏夜里,如果在屋里闲坐,就能有凉风穿堂而过……
简直不能更美好了。
然后我就直接走进去了。
第一眼是这个样子的——
图片
(地产知识橘|拍摄)
这个刚需户型的入门处居然设计了一个小小的玄关,有收纳能力一流的玄关柜,可以坐下来换鞋,还顺带保护了家人的隐私性。
在我印象中,这是很多140平以上豪宅才有的设计。
而且,就连这个小小的玄关,都配了这么大的窗户……
有点奢侈了。
再往里走,客餐厅的感觉,是这样的——
图片
(地产知识橘|拍摄)
换个角度看,是这样的——
图片
(地产知识橘|拍摄)
无论是北面还是南面,都有大面积的采光面,不但有着直接的南北对流,视觉上还非常敞亮。
而餐厨区域走近了看,是这样的——
图片
(地产知识橘|拍摄)
厨房的尺度不小,在别的楼盘,这个面积似乎都可以当个小房间了,加上U形的设计,家庭聚餐时,同时容纳三个人忙碌都毫无压力。
水槽上方还有同样几乎一整面墙的窗。连洗碗的时候都可以晒太阳,是一种怎样的体验?
再往里走,到了主卧。
最神奇的设计来了——
图片
(地产知识橘|拍摄)
你很难想象,90平的房子居然能有高达19平的主卧套间。
而在房间里,最抢镜的就是这一整面嵌在墙体里面的,齐齐整整的收纳空间了。
但是不对啊,户型图上,主卧的这个位置不是有开窗的吗?
于是,我绕到了主卧洗手间,从窗户里往外一看——
图片
(地产知识橘|拍摄)
果然有。
销售小姐姐解释说,因为主卧本来就两面开窗,所以如果你需要更多的收纳空间,也可以选择把这个窗户封起来,做上足足一整面墙的衣柜。
更有趣的是——打开衣柜门,我发现,这衣柜事实上是垒在飘窗上的!
图片
(地产知识橘|拍摄)
也就是说……这么大的一个柜子,它的面积,其实完完全全是!送!的!
在这个项目的产品中,这样的操作还有很多。
比如说,在厨房里,我打开水槽下面的门,发现——
图片
(地产知识橘|拍摄)
整个水槽的位置,是送的。
到了卧室,发现——
图片
(地产知识橘|拍摄)
大半个床下面的位置,是送的。
更别提上面的餐厅里,餐桌旁边整整一大面酒柜,一眼看上去就知道,也是送的。
……
我们让销售小姐姐随便算了一下,发现90平的户型,光赠送面积都能有十几平,快赶上别家一个主卧的面积了。
啧啧啧……难怪每个房间看起来都挺大,使用感可以吊打市场上的110平了。
这种最新迭代的户型设计,果然已经做到非常极致了。
图片
而这个项目的舒适度,并不仅仅体现在在室内的部分。
整体的空间把控非常关键。
比如说,户型的排布。
我们都知道,很多户型单看起来都不错,但是和邻居的房子组合在一起——
不是一墙之隔的邻居开个爬梯能吵得让人睡不着,就是好好的一面窗面前怼着隔壁的墙面,或者站在阳台,就可以看到别人屋里的景象……
如何保障安静、有隐私性的居家环境,以及每一户采光通风的最大化,是户型排布中最重要的课题。
我随手在样板房门口拍了一张楼栋平面排布图——
图片
(地产知识橘|拍摄)
两梯五户的梯户比,可以媲美豪宅配置,而这种五个户型围绕着核心筒,像风车一样左右打开的排布模式,是非常少见的——
不但尽可能压缩空间,减少公摊面积,还保障了户户都有充足的南向采光,并且,最大限度地避免了视线对望的尴尬。
而且,如果仔细观察就会发现,除了02、03单位,其他户型几乎没有共用的墙面,尝试以最大的努力,隔绝隔壁噪音的影响。
而间距最远的,居然不是大面积,而是04、05单位,也就是刚刚看的90平的“王炸”户型。
不但采光面足够大,还基本不受任何遮挡,从每一个窗户看出去,都有足够宽阔的视野。
而当我们把楼栋的位置再放到沙盘上来观察时,会发现——
图片
(地产知识橘|拍摄)
04、05户型的位置基本都分布在小区的外侧。这种朝向,好处是视野会非常宽广,景观也不错,毕竟一路之隔就是森林公园。
坏处是楼下会有市政道路,多少会有些灰尘和噪音。
于是!项目少见地在红线之内,楼栋和马路之间,专门建造了一个长条形的口袋公园。
这个口袋公园的面积达到1.37万平,不但让房屋与车流之间的物理距离变得更远,还可以利用成排的树木吸音隔尘。
并且,还给住户们贴心地留下了一大片下楼就能享受的,绿意葱茏的小森林。
而这只是项目绿化的一小部分,销售小姐姐介绍说,项目虽然总的占地面积不大,但建成之后,里面会有六大主题花园,光是花园的面积,就相当于6.5个足球场的大小。
毕竟,这个盘的容积率只有3,而当下广州市区的新盘,容积率5算是正常,高一点的,7-8都比比皆是。
众所周知,容积率越低,楼栋的密度越低,舒适度越高。
总得来说,这个项目的整体产品力,确实担得上“王炸”的盛名。
说起楼盘的产品力,有一个现象,其实是无需讳言的。
不错的户型绝大部分出现在市郊,而市区的产品囿于高容积率的掣肘,其实是很难做到足够优质的居住体验的。
也就是说,“好产品”和“好位置”很难两全。
但这个项目更让我们惊喜的是——
这个楼盘产品力这么强,但又不是一个郊区项目,就坐落在番禺区,位于南站商圈和万博商圈中间,300米到谢村地铁站,距离珠江新城大概是7个地铁站的距离。
写到这里,相信你已经知道它的名字了——越秀·星寰TOD。
图片
(规划图)
我仔细分析了一下星寰TOD的地理位置和周边配套,就非常有意思。
“世界级足球场+南站超大购物空间+万博商务CBD”和“体育中心+天河北商圈+珠江新城CBD”的配置几乎一毛一样,而体育中心-天河北-珠江新城一带,作为广州的绝对中心,已经独领风骚超过20年。
这不得不让我对所谓的“南CBD”充满了期待——
如果规划兑现速度足够快,不烂尾,这片土地或许真的能复刻如今天河的辉煌。
那么,接下来,利好兑现的速度到底会怎么样呢?
我就说一点:
星寰TOD的开发商,是越秀地产。
作为市属国企,越秀地产在广州城市发展中承担了很多片区规划、一级开发的责任,这也让它城市布局方面具有很明显的“前瞻性”——
每一次他家重点布局的区域,最终都被证实是广州未来发展的主脉络所在,是配套兑现得最快,资源聚集得最为密集的区域。
而如今,越秀地产的重点已经转向了黄埔和番禺,尤其是番禺。
光是南站-万博商圈,越秀地产就接连布局了三个项目:和樾府、星寰和星瀚。
你细品。
此外,在地产行业的资金链普遍紧绷的情况下,杠杆相对较低,借钱又相对便宜的国企开发商有着无可置疑的安全优势。
简单点说,至少可以保证交楼,不会爆雷烂尾。
据我们周末踩盘了解到的信息是,星寰刚开放样板间,吹风价4万左右,据说首开的价格,还会有更大惊喜。