杭州屋主家的高级场面:不用乳胶漆,不要踢脚线,超有品味

随着装修材料越来越多,我们知道墙面这块,即便不用乳胶漆,也是有很多种方式来替代的。比如石材、木饰面、壁布等等。可不要踢脚线,却有些难以让人理解了。因为给墙角安装踢脚线,不仅仅是为了起到遮丑、收口的作用,也是为了保护墙角,避免在后期生活中,发生潮湿、渗水等问题。
然而本期带来的这套案例,却恰恰放弃了踢脚线,虽说这种做法比较少见,但当空间效果出来后,却显得非常高级。尤其是在墙顶面统一的情况下,更是体现出了不俗的品味,且极具艺术气息。
一层平面结构图
图片
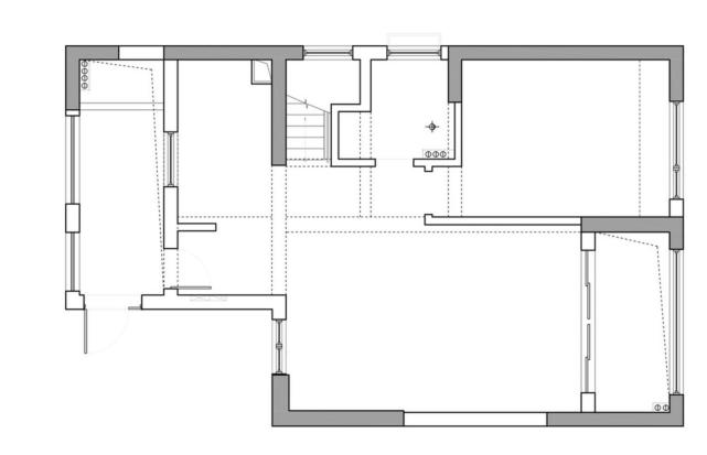
新房坐标杭州,少见的复式结构,面积170㎡。从一层的原始结构来看,问题还是比较多的。尤其是入户这块,虽说有一个独立的花园,但空间却被切割得十分零散,甚至还导致厨房的使用面积受到了影响。再一个,就是单向楼梯间显得比较小气,无法与空间面积匹配。
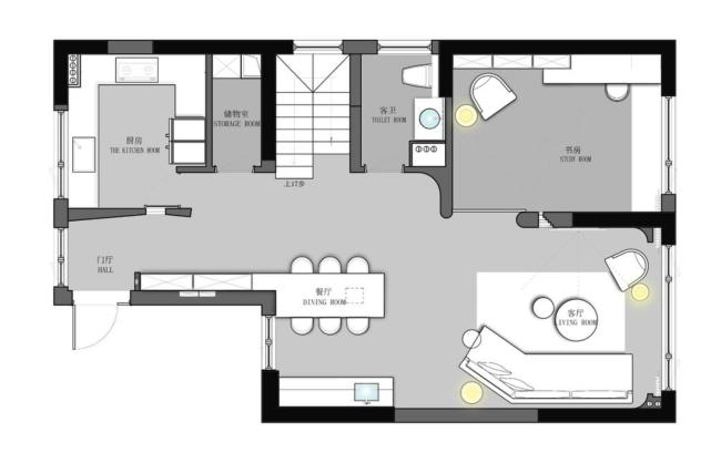
一层平面方案图
图片
重新优化入户区结构,在扩大厨房使用面积的前提下,规划出一间储藏室,解决日常的杂物收纳需求。楼梯间这块,则是向卫生间做了扩大处理,虽说影响了卫生间的使用面积,但对于复式楼来说,影响并不大。而唯一的房间,则以半开放式书房来定位,从而让一层实现LDK一体化的空间结构。
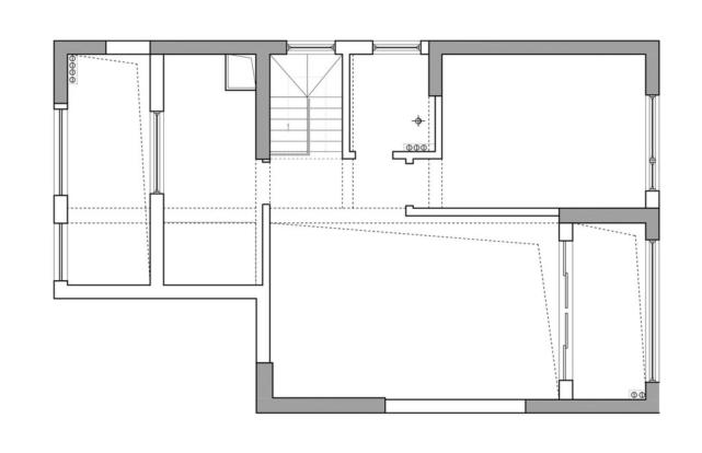
二层平面结构图
图片
二层的户型问题,其实与楼下差不多,都是被切割成了多块空间,导致利用率受到了很大的影响。
二层平面方案图
图片
二层作为家里主要的休闲区,整体是以三室两卫的功能来规划的,并且给主卧配置了套间功能。同时,由于一层的阳台纳进了客厅,所以将二层的阳台定位成生活区,也让生活动线做到了合理。
玄关
图片
取消原有的入户花园,并以墙体隔断的方式,让入户形成一个独立的玄关,不仅让空间动线更加人性化了,也让空间面积做到了合理分配。同时,由于入户左边就有窗户,所以也丝毫没有影响到空间采光。
墙顶面放弃传统的乳胶漆材料,并采用质感更强的艺术涂料,则有效提高了空间品味,并让人一进门就有一种淡然、宁静的空间感受。也正因为如此,墙角的踢脚线也自然舍弃了,毕竟艺术涂料本身就具有防潮的作用。
图片
入户鞋柜则设计在了进门右边手,通体到顶的柜体结构,以及无拉手门板设计,既弱化了空间的复杂,又带来了大量的储物能力。而将柜体中间位置做镂空处理,则在延伸出换鞋区功能的前提下,也减轻了柜体的厚重感。
图片
换鞋凳内部暗藏镜面,巧妙反射出了对面隔断墙体的格子,以及厨房,这样既让空间有了三点连线的趣味性,又让空间做到了通透,且具备了互动性。
客厅
图片
来到客厅,没有过多的装饰,也没有复杂的造型墙,仅通过一组绿色的丝绒沙发,以及一幅大尺寸的装饰画配置,就让整个空间充满了绿意与高级。尤其是当南阳台纳进来后,更是与室外的风景做到了共生共长。
图片
有人说顶面做无主灯设计,就是为了弱化灯具的复杂,让空间看起来更加简约。可事实上,顶面不仅仅有灯具,也可以有艺术装置。像这套案例的客厅顶面,就安装了一个片形装置。只要有微风吹过,就会为空间带来一抹摇曳的灵动。
图片
图片
电视背景墙不一定要安装视听设备,采用镂空、抹圆的方式来设计电视墙,本身就彰显出了艺术格调,并与整体做到了融合。当然,也与书房实现了贯通。
餐厅
图片
通体岩板材质的餐桌,搭配上藤编原木餐椅,硬朗中又不失温润。而侧面一组西橱柜设计,则巧妙丰富了空间的功能性,并带来了一定的储物能力。
图片
书房
图片
书房采用半开放式设计,平时的状态,可以与其它空间形成LDK一体化,而当屋主需要安静办公时,而可以将隐藏的移门关上,享受沉浸式的工作氛围。
图片
书房延续了温柔的大地色主调,不过白色柜门与红色书桌的穿插,又巧妙激发出了空间的活力。而书桌上面的一根圆形柱子,也是作为装置艺术存在的。
楼梯间
图片
原户型楼梯十分小气,所以将旁边的卫生间面积缩小,巧妙还原了楼梯原本的样子。虽说这样一来,卫生间的使用面积受到了压缩,但在家里有多个卫生间的情况下,也丝毫不会对生活品质产生影响。
图片
嵌入式楼梯灯设计,白色可以作为一种装置艺术,晚上当灯光洒在踏步上,既浪漫又很有空间仪式感。
图片
主卧室
图片
当二层结构重新调整之后,主卧则兼具了衣帽间、卫生间等套间功能。相较于楼下一体化的墙顶面,这里则用到了乳胶漆,安装上了踢脚线。让材质与材质之间,有了一个平缓的过渡,并营造出了一个简约、且极具质感的睡眠环境。
图片
纵观整个案例,最大的亮点还是在一楼。不管是材质选择,还是造型优化,都表现出了高级的格调。同时,也体现出了屋主不俗的品味。因此,若有喜欢这种基调的朋友,也可以来参考借鉴下。