最好的售楼处,应该是什么样子的?

作为开发商最具社交性质的公共空间,售楼处一直被开发商当作公司宣传的桥头堡,既宣传公司的产品,同时宣传公司的文化与品牌。开发商对于对于售楼处的认识也是从单一的销售道具到展示楼盘品质再到提升产品售价。
从最开始的销售道具到网红打卡点,售楼处的名字一直不停地变化,最早叫售楼处、营销中心,后来叫“展示中心”、“体验中心”,再到出现了“美学馆”、“生活馆”、“艺术中心”。售楼处名字不停变化,核心功能却没有变化过——以商品房销售为核心的小型商业体。
这几年,房地产市场环境发生了巨大改变,传统售楼处面临成本高、流量低等挑战,未来售楼处该如何进化?下面详细来说一说。
示范区型售楼处存在3大痛点
售楼处的发展大抵经历了卖场型、功能复合型、示范区型几个阶段。
最早的售楼处基本采用卖场模式,在售楼中心配置相应的沙盘,区位图和洽谈区,另外再配一个会议室和几间办公室。一般客户一进门就可以看到小区的沙盘和接待台,沙盘上大的水晶灯是标配。
也有一些将售楼处设计成咖啡店的样式,配置水吧区和比较大的接待区。这个时期的售楼处往往置业顾问的办公区放在一起,置业顾问和物业公司的人一般都在售楼处进行办公。售楼处往往会追求比较好的建筑外观设计,一般是永久型建筑。
图片
图源:龙湖集团
前几年,卖场型售楼处开始向功能复合型售楼处进化。
功能复合型的售楼处往往会叠加一些其他的功能,主要是为了拓展销售道具,比如影音室、VIP室、雪茄吧等。这些功能和社区一般没有什么直接的关系,只是为了销售本身。
图片
售楼处里的超市,图源:上海融创
也有一些相对高端的楼盘,售楼处的功能会往会所方向发展。比如配置一些健身馆,台球室、游泳池等。一般会所的功能都只是为展示其高端性,有些会所会请专业的团队运营。
近几年,越来越多售楼处开始借鉴五星级酒店、博物馆和美术馆的设计手法,力图展现出售楼处高端、极致美学的气质。中国涌现出一大堆最牛的售楼处,风格各异,从中式到新中式,到现代简约再到欧式,百家争鸣,百花齐放。
这个时期售楼处还有一个特点是和示范区相结合,形成一个整体综合建筑的形态,从而使用售楼处的体验感很丰富,趣味性更强,更有宣传效果。
图片
图源:重庆融创
目前来看,大部分高端售楼处都是示范型售楼处,这类售楼处往往存在3大痛点:
一、售楼处建设成本高,效果维护难
示范区型售楼处一直是开发商的神器,很多的开发商通过在两个月左右的时间内建造一个美学售楼处,可以快速地竖立项目的形象,打造一个客户所见即所得的项目品质感。
再加上现在媒体的快速传播,通过一大波美照,就可以圈一大波的忠实粉,从而大大提升项目的销售。在暴力营销的加持下,很多的楼盘开盘即清盘,创造了很多的销售神话。
随着调控政策的不断深入,除了一些热门的城市,房地产项目的销售情况并不乐观,特别是一些三四线城市,销售情况断崖式下跌,房地产公司回款情况比较差,房地产销售进入了持续销售,比拼产品力的阶段。
之前的售楼处往往建造成本比较高,维护成本也比较高。以一个十万方的小区为例,一个售楼处的大小差不多在700—1000m2。如果采用异地建造,成本核算如下:
售楼处土建加装修 500万元~1000万元
示范区景观的费用 150万元~300万元
样板房的费用 150万元~200万元
总体费用 800万~1500万元
在一个不太发达县域级城市,10万方的项目总货值在5到10个亿,如果按照行业内8%的利润核算,也就是4000万元~8000万元的利润,示范区的成本占项目整体利润的20%左右,这是一个相当大的比例了。
还有些项目总具有强烈的设计情节,更是一不小心就在这方面加大投入。据了解,某个二线城市的限价盘,为了拔高调性,硬要花4000万打造售楼处,合作方拦都拦不住。结果200米不远处的竞品项目,售楼处做得很常规,去化速度也很快。
还有些项目为了达到震撼的效果,售楼处的设计往往调性比较高,为了媒体宣传的需求,对于装修材料的品质、室内家具的陈设和人的活动都有一定的要求。
图片
在后期销售过程中,营销人员难免会增加一些销售道具,组织一些客户活动,经过几个月的折腾,售楼处的高大上的气质很快就会完全变样。我曾经先后两次去过杭州的网红售楼处,时间大概隔了一年左右。
第二次去的时候,一年前还随处可见的穿青色长纱裙古装的美女早已不知何处去,售楼处的沙发已经有了很多的污渍,从沙盘到到洽谈区到处摆满楼盘的广告,从吊顶一直延伸到地面,衣冠不整五颜六色的渠着分销人员带着客人来回走动,充满了市进的热闹气息。
回首往时,之前项目软文里宣传的江南烟雨,东方神韵荡然无存,慢慢幻化成繁忙都市的市井喧哗,人间烟火。
二、与社区关联度不高,无法形成持续热度
莎士比亚在《哈姆雷特》里有一句名言:“God has given you one face, but you makeyou another”。翻译过来就是:上帝给了你们造了一张脸,你们替自己又造了一张。这个来形容示范区最恰当不过。
示范区的打造是房地产企业高周转商业模式的集中体现,也是众多企业追求快速去化的最优选择。示范区型的售楼处最大的特点是通过震撼性的效果以及媒体的集中轰炸达以快速去化的效果。
很多的房地产公司为了达到震撼的效果,通过建筑平立面、空间以及园林的营造,打造出一个个美丽但虚幻的世界。从明清时期的江南园林,到宋朝的精式营造法式,从安滕忠雄忧郁光学体验到路易康的静谧与光明,开发商能想的无所不用其极。
为了美而美,当诗人建筑师赋予售楼处以崇高的诗意,销售部给示范区以灵魂及文化,所有的设计与实施都充满了文化的善意与关怀。但是最后交付给客户手上的产品如何呢?
客户是困惑的,开发商同样也是困惑的!
三、缺乏必要的运营,客户体验性差
现金流是一个企业的生命线,对一个快周转的房地产企业来讲,快速销售去化与快速回现是最主要的经营指标。开发商为了追求快速回现的目标,在前期往往会投入比较多的成本,售楼处的运营也是借助于销售的力量,配备的人员众多。
随着产品的不断去化,案场的人员将会不断减少,后期运营往往跟不上,无法满足正常运营的需求。另外,很多售楼处采用异地建设形式,一般不会保留,或者即使保留,也会由于与报批功能不一致不得不进行平面功能的改造。
售楼处进化方向
——微型社交综合体
如今大家的共识是,基于社交场景的模式是商业发展的一个方向。售楼处综合体的模式不在于空间的多样性,而在于空间的共享性。通过共享性空间的打造,形成一个具有社交多功能复合性空间。
具体来看,相比以前的售楼处,社区服务型售楼处的优点是展示性、体验性与社交性与一体,客户粘性高,可以更好地为项目导流。
图片
售楼处的生活化与社交化是售楼处功能的延伸,更多的向客户展示后期销售的产品。
图片
售楼处做成联合生活馆,图源:无锡万科
1、共享空间的营造,弱化固定功能分区
星巴克是多层次社交空间打造的典范。星巴克算是轻奢型的消费饮品,由于咖啡是一种成瘾性饮品,重复消费的次数比较高,加上基庞大的网络以及标准化的服务,使其实成为具有社交以及休闲功能的饮品。
图片
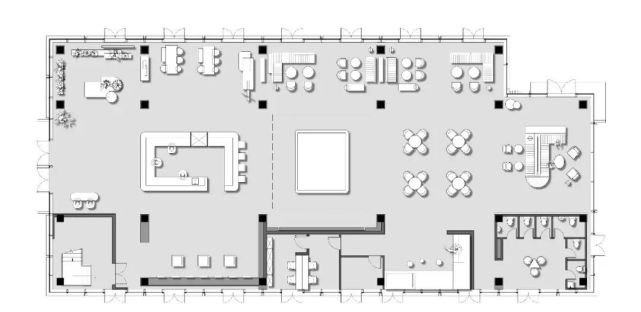
杭州来福士星巴克平面图
从以上的平面图来看,星巴克的经营面积约在150m2,其中操作间加柜台面积差不多占到2/5,房间里布置了30个左右的座位。大面积的操作间及柜台一方面保证了服务的质量,同时也可以提升店面的形象,给客户一个良好的展示空间。
星巴克一般不设VIP室,卡座或者包间,客户可以根据自己的需要进行桌椅的组合,从而确保了空间的多样性与共享性。
这是万科COLIFE售楼处的平面图:
图片
从以上售楼处的平面可以看出,售楼处的核心是大型的接待台。接待台采用岛台的形式,大而气派的接待台仿佛在告诉客户,来吧,我们竭诚为您服务。开敞的空间让空间有了更多的可能性与社交性。
图片
万科G54燕语光年Colife体验中心入口,来源:南京万科
2、多层次的打造,形成公共与半公共空间
在示范区式的售楼处里面,公共与半公共空间不是予以区分的,这造成了所有进入售楼处的人都处于一个公共空间之中,在缺乏私密性的情况下,很多人除非有必要,都不会在里面进行较长时间的逗留。
但是如果将售楼处打造成一个具有社区公共性质的空间,则必须将部分空间比如书吧、咖啡吧、儿童游乐场,老年人活动中心等功能打造成半公共的区域,让其具有一定的半公共性质。
通过公共空间与半公共空间的区分,可以有效地将售楼处打造成美学要求与公共活动兼具的空间体系。
图片
3、形成售楼处的品牌化
服务的标准化是品牌化的前提,只有具有一定品牌和传播力的服务,才能有效的增加客户的粘性,提升服务的质量。在以往,售楼处的服务标准都是项目联系在一起,没有办法形成跨区域跨时期的标准体系。
对售楼处的服务进行标准化,品牌化,将有利于大大提升售楼处的宣传,提升客户的服务体验,使用售楼处不仅成为一个销售卖场,更成为一个产品体验与服务体验的社交空间。
4、重视社区运营,轻资产投入
无论什么样的商业,必须有好的运营才能保障其品质。在以往的售楼处中,作为一个最重的销售道具,在热销阶段开发商会投入大量的人力物业,但随着后期人员的大量撤出,参与运营的人员将会非常少,售楼处基本处于不运营的状态。
采用社区化售楼处的设计,需要持续投入人力进行有效的运营,物业、销售员、分销团队和服务人员都应该成为运营的一部分。销售只是开始,服务永无止境!在产品持续销售的阶段,在以往暴力营销失去效用的时候,真正关注产品本身,让售楼处成为永续服务的开始,而不是产品销售的结束。
结语
有人说,城市是人类最伟大的发明,那么,基于城市化进程而兴起的大规模房地产项目的建设,既是这个伟大发明的基石,同时为这个伟大发明带了人类文明的副产品——由于居住空间隔阂带来的群体孤独感。
希望售楼处不是在贩卖一份群体的孤独产品,而是在营造一个温馨与互通的社交平台。