75㎡简约工业风,文化砖的毛坯感,结合软装装扮,也是精致浪漫

在这套75平米的老房子的改造装修中,整体以简约大方的软装布置,在硬装方面保持了大量的毛坯与工业风元素,让空间显得小资优雅而温情舒适,带来了一种别样温馨而浪漫与惬意感。
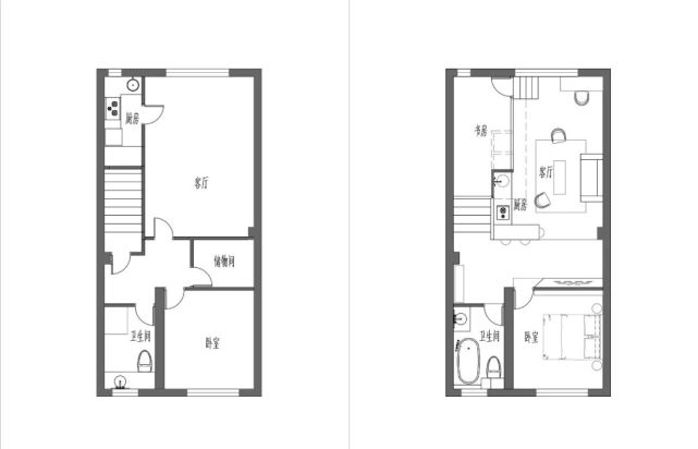
平面布置图
图片
客厅
图片
▲房子的面积并不大,客厅空间的布置保持实用的功能下,整体摆设相对紧凑,软装为主的布置装饰,也显得精致舒适而高级。
图片
图片
▲整个大厅的天花分为两部分,一部分是水泥底的毛坯质感,另一部分是防腐木的吊顶,结合沙发墙上的文化砖背景墙,整个空间充满小资优雅的工业风气质。
图片
▲电视墙是以矮墙设计,小尺寸的电视机,对于小夫妻而言已经够用,电视墙上部分是玻璃隔墙,在分割空间的同时,也让空间的采光得以共享。
图片
▲马赛克的地面铺设,布置在这个工业小资范的空间里,也显得更加高级情趣。
厨房
图片
▲厨房空间也是相对紧凑,开放式的小空间,小巧紧凑的操作台,整个空间显得简雅小资而实用。
图片
▲嵌入式的电磁炉作为灶具,小规格的水槽设计,整体木色的操作台台面,台面上布置小盆栽,让空间空间显得小资自然。
图片
▲操作台连着的吧台,侧边也是装上收纳格,刚好可以摆放厨具餐具,实用又方便。
餐厅
图片
▲餐厅以吧台充当餐桌,吧台连着厨房的操作台,开放式的空间,虽小却也显得小资情趣,吧台上方两盏吊灯布置,也让空间显得更加优雅精致。
卧室
图片
▲电视墙后方,是卧室空间,玻璃隔墙的设计,让空间采光更加明亮舒适。黑框玻璃与黑色的床架呼应,整体风格保持统一的设计。
图片
▲床头墙是白色文化砖设计,床头旁边的简易托盘床头柜设计,摆上台灯,也显得更加温馨自然。
图片
▲温馨舒适台灯,在小资优雅的空间下,显得温情舒适而大气。
休闲书房
图片
▲错位式的设计,下方是收纳柜,上方小舱式休闲书房。上方以玻璃隔出来,做了一个创意的舱式休闲书房,整个空间是在原有空间基础架空出来的,显得有趣舒适。下方在收纳柜的基础,还嵌入了冰箱与洗衣机,让空间利用更加到位。
图片
▲休闲书房里布置的简约舒适的休闲沙发,还有一组吊柜书架,布置精致舒适,让生活充满了憧憬与惬意。
图片
▲舒适优雅的沙发与抱枕布置,沙发后方还有一个壁龛,摆上照片、绿植与小饰品,显得格外的情趣精致。
图片
图片
▲软装细节方面,也是简约而精致,让空间显得更加文艺有趣。
卫生间
图片
▲卫生间地面以黑白配的马赛克设计,布置马桶、洗手盆与浴缸,营造出一个实用时尚的卫浴空间体验。
设计:陈其策-悉熙设计 ,点评:设计馆