融创、万科、绿城的合院别墅,已经进化成这样了?!

经过几年的探索和发展,合院别墅产品越来越成熟了。
但不知道大家发现没有,小面积院墅和豪宅合院产品近两年热度有所下降。
据克而瑞统计,从121个样本城市别墅项目各面积段成交情况来看,2019年120-160平别墅去化最多,畅销别墅产品面积段整体延续小套型化趋势。
图片
由此看来,120~160平这个面积段的别墅产品变成了成交主力。其中,又以叠墅和合院别墅较为常见。
前段时间,明源君《融创、中海、万科的叠墅又进化了,创新值95分》中,分享了叠墅产品的创新趋势,那合院产品这两年又有哪些提升?明源君帮大家一起来扒一扒。
经济型合院别墅
追求性价比,通过高增送提高附加值
之前,自从绿城推出83平的合院别墅后,极小别墅一夜爆红,各大房企争相推出90平左右的别墅产品。但这两年,客户对产品认知有了提高,更追求舒适的居住体验,极小别墅的热度有所降低。从上文图表可以看出,120平以上面积段的别墅更受客户青睐。
不过,经济型合院别墅,瞄准的是经济实力不高,但又向往别墅生活的中产家庭。它的本质是解决从无到有的问题,一方面要控制总价,另一方面要尽可能提高客户的居住体验。
首先,院墅排列方式相对自由。
一般而言,合院别墅排列方式相对自由,可以根据项目实际情况进行排列。
图片
不同排列方式呈现效果有很大不同。
图片
比如万科梦溪里乐高小联排,采用了L型户型排布,两个户型通过二层进行连接,形成一个基本模块,而基本模块可以东西、南北随意拼接,再形成更大的单元,从而组成整个社区。
由于拼接的灵活和多联,规避了日照间距和山墙间距,有效节约了宅间空地,提升了容积率。
图片
再比如武汉保利项目,同样采用L型双拼联排拼接,这种排列方式有以下特点:
省间距,花园体验感更强,有类独栋的产品体验
L型格局排布,所有主要功能空间都可以面向花园,居住体验好
回家可以通过花园进入室内,具有独特的归家体验
竖向道路设计,改变传统排屋横向道路的设计,日照更舒适
图片
据保利测算,合院单元拼接数4拼-5拼为宜,用地紧张的条件下可做5-6拼,7拼以上不建议,会大大降低居住体验。
其次,空间营造上,保证街巷尺度,降低建筑密度带来的压抑感。
保利认为,街巷尺度宜为5:1-10:1,用地紧张的条件可考虑12:1,大于12:1不建议做。组团排列数宜为3-4列,用地紧张的条件可考虑5-6列。
第三,通过高赠送提高附加值。
由于经济型合院别墅的户型面积都在200㎡以内居多,所以赠送面积成为提高附加值很重要的手段之一。一般来看,赠送面积方式主要为南庭背院、侧院、地下庭院、露台、地下室等。
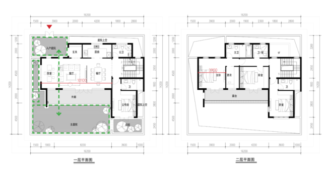
比如招商南宁某项目140平合院别墅,南向庭院面积约31平,北向庭院面积近45平,加上二层露台,赠送率非常高。
图片
重庆万科某项目合院L型联排,建面约154㎡,地上装修后可使用建面约234㎡赠送面积达到近80平,性价比很高了。
图片
同时,越来越多项目通过下沉庭院、采光天井等,并以标准层高打造负一层,解决采光度和通风的问题,将地下室由辅助功能空间转变为娱乐功能空间,刺激客户购买欲望。等于把负一层变成首层了,这样整个户型的利用率会大大提高。
比如方圆惠州项目这个150平合院户型,负一层40㎡地下室空间全明采光,设计下沉式庭院,营造类首层的居住体验。
图片
图片
第四,户型设计强调功能性。
在户型设计上,合院产品的尺度感和舒适度也越来越重要。从市场上项目可以看出一个趋势,相较于早期的合院产品,现在户型设计趋势是:一是房子变得更薄,进深缩短,面宽增大;二是强调庭院与功能空间的融合互动。
比如融创清远项目130平三房户型,南北分别有入户庭院和主庭院,空间相互渗透,而且将大小庭院有机地与卧室等起居空间融合,充分利用景观优势,提升品质。
客餐厅采用横厅布置手法,面积达到31.5平,一楼父母房布置于东南侧,有自己的独立庭院,主卧室设置于二层,动静分离。
图片
再看160平户型,主庭院及前院共有面积68.11㎡,将大小庭院有机的与两厅及茶室结合,客餐厅及茶室一体化设计,采用大横厅布置手法,面宽达到10米。而且父母房拥有自己的独立庭院,私密性升级。二层也设了超大露台,早晚可以在露台吹风观景,非常惬意。
图片
沈阳万科翡翠别墅148平三房两厅户型,只做了两层,同样是L型布局合院,加大了别墅面宽设计,牺牲容积做两层空间。两层做到了四开间朝南。
图片
最后,单体造型尽量简化,进一步控制成本。
对于经济型院墅,除了要考虑提升居住体验,另一方面也要考虑控制总价,这样成本控制也成为必须解决的问题。
具体来看,除了在规划层面提高土地利用率,还可以通过单体设计优化来实现成本控制目的。大象设计指出,中式合院可以从以下几个方面来优化:
外立面设计尽量简化,一是非敏感点减少材料使用,比如很多中式合院屋顶采用小青瓦,可减小瓦片使用量。二是部件采用预制件,比如窗套、窗台、勒脚均采用预制件,不仅可以加快施工速度、也可以降低建造成本。
其次,适当降低层高。大多数合院层高都为一层3600、二层3300。为了进一步控制成本,可以适当将二层层高降为3100。
第三,控制窗地比。包括东西向及北向开窗数量,同时控制大玻璃面积与厚度的适配指标,控制玻璃使用厚度。
最后,院门形制分级选用,重要空间节点采用细节丰富的墙面,其他空间尽量选用形体简洁的墙面。
图片
改善型院墅
增加庭院及社交空间,提升居住体验
相比经济型院墅,改善型院墅客户有了更强的购买力,他们对居住体验要求也变得更苛刻。除了要满足功能,更要满足他们对不同生活方式的向往。具体来看,改善型院墅会通过以下几个设计手法升级空间。
一、多重庭院提供多种户外场景,提升白天居家体验
之前明源君讲过,今年别墅受到客户高度关注,因为别墅住户可以足不出户享受到完全不同于高层住户的院落生活。
为此,改善型合院别墅,除了提升尺度感,为客户营造更多户外空间就成了重要的优化方向。
一方面,庭院面积要足够大,能满足一家人在这里聚会、开派对、烧烤、游戏的需求。比如绿城桃源小镇300㎡的合院户型,庭院面积超大,布局开阔。
图片
▲ 绿城桃源小镇300㎡可变六室两厅四卫C1户型
另一方面,庭院数量要升级,不同庭院承担不同功能,例如营造仪式感的入户院落、有一定尺度的起居院落、赏玩院落,后勤院落和采光院落等等,在装饰上也会有不同的侧重。
比如世茂北京某项目合院281户型,一层设有三个庭院,加上两个下沉庭院,共有5个院子。南向前院是主庭院,面积非常大,孩子可以在这里踢球、游戏,周末可以在这里举办聚会派对等。而后院可以晾晒衣服,侧院除了种植,还可以很好提高房子采光。
图片
再比如德信在杭州某项目268㎡合院户型,一层主庭院面积约160㎡,可供全家人聚会、休闲娱乐。这个户型还有个很大的亮点,除了老人房,基本每一层都是“套房+露台”设计。
一层的老人房,南面带有一个正对花园的落地景观窗,东面还有专属庭院。
二层是主卧套房,层高约3.6米,还有一个朝南,建面约29㎡的大露台。
三层和四层,层高分别为约3.6米和3.4米,同样是套房+大露台的设计。
其中三层空间还有东、南两个露台,面积分别为约6㎡和20㎡。
图片
▲ 德信杭州项目合院效果图
而且每一层露台进深都超过4米,尺度完全超过阳台,达到花园级别。这样设计下,整个户型为业主提供了更多场景,每个业主都有了自己的“秘密花园”。
图片
图片
父母可以在自己的专属庭院喝茶,孩子可以在自己的花园玩游戏做手工,夫妻在花园健身、阅读、聊天等等。任何时候,每个人都能拥有自己的活动空间,可以自得其乐,也可以接待自己的朋友,而且不互相影响,这无疑大大提升了每个人的幸福指数。
二、户内空间增加社交空间,多套房设计更舒适更私密
除了户外庭院露台升级,改善型院墅在室内空间上也进行了两方面优化。
一是多客厅设计,增加社交空间。
很多4房2厅、5房2厅的房子,厅其实是在同一空间。很多老别墅,往往也只有一楼一个大厅。
如果只考虑一家人的集体活动、集体娱乐,这样的设计无疑是最好的。
可对于很多置换客户来说,丈夫、妻子、孩子,乃至老人,因为越来越追求生活品质,其个性被充分挖掘。再加上其拥有不同的朋友圈。
除了家人交流,他们可能会有接待朋友的需求,他们也偶尔也会
越来越多院墅项目考虑在不同楼层都设有客厅。
北京万科“观承.大家”的别墅,设计了3个大厅,分别位于1楼、2楼、地下。而且这几个客厅面积都很大,空间完整方正,可以供多人活动, 自然采光充足,可以长时间活动。
图片
为了让3个大厅的面积最大化,“观承.大家”将上下的楼梯、电梯,集中在别墅的一个角落。由此,大厅保持了完整的方正状态,利用率极高。
二是多套房设计。
从上文案例来看,基本改善型以上的院墅都是全套房设计,一般老人住在一层,免去爬楼的麻烦,二层和三层分别是儿童或主卧套房。
比如世茂某项目合院281户型,除了一层有大客厅,二层除了儿童套房,也设计有家庭厅,还有大露台,增加家人互动的空间。
图片
其中,主卧套房一般设有双人床、浴缸、双台盆、衣帽间和户外露台,带给业主度假般的舒适体验。
三、室内室外一体化设计
与经济型院墅需要严控成本不同,改善型及豪宅型院墅的核心是提升居住体验,为此,通过大面积玻璃引景入室,打破室内室外的界限,成为了他们需要考虑的问题。
比如万科“观承.大家”合院产品,一楼的客厅和院子之间,在需要的时候,是可以没有界限的。从客厅里看餐厅和院子,如下图所示:
图片
从院子看客厅、餐厅,则是下面这样的。
图片
其实客厅和院子之间,是有门的,只不过这个门是可以180度乃至270度打开的,如下图所示:
“观承.大家”别墅整个外墙都使用了大面积的玻璃,是一般项目平均比例的5.5倍。真正实现了室内室外一体化,让业主最大限度亲近自然。