最普通的设计,效果反而很不错,她晒出85㎡新家,超干净!

本期案例中的屋主夫妇情况,应该和很多人差不多,就是由于身处一线城市,为了能拥有一套属于自己的新家,就购买了一套老房来作为新家。毕竟老房的价格相对于新房来说,肯定是会便宜一点。
再者,老房的公摊面积也相对较少一点,且经过合理的改造,居住舒适性也不会比新房要差。当然,为了节省预算,在装修改造这块,也是以最普通的方式来设计的。不过装修普通,效果却一点都不差,全屋看起来真的是超干净。
原室内情况
图片
本案位于杭州,建筑面积85㎡,屋主为一对刚结婚不久的夫妇。从房屋的室内情况来看,属于那种典型的90年代装修。不仅不符合现在年轻人的居住需求,水电线路也可能存在安全隐患。因此,全部拆掉重新改造也是必须的。
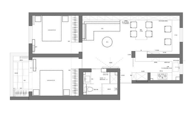
平面结构图
图片
从房屋的结构布局上来看,主要问题集中在这两点。第一点是厨房的空间过小,并与餐厅形成了一定的距离,动线上不太舒适。第二点是由于书房的存在,完全遮挡掉了客餐厅的采光。所以在二次布局设计上,也是针对这两个问题来解决了。
平面方案图
图片
考虑到房屋的年限比较久了,大部分墙体不能做拆除处理,所以在改造上也仅仅是做了微调整。
1、将书房的墙体给拆掉,使书房和客餐厅形成一体化空间,以提高通透性及采光。因为书房是后隔出来的,所以该墙体是完全能拆除的。
2、将厨房的门洞过大,并拆掉原厨房与餐厅之间的柜子,使厨房形成开放式结构。
3、将卫生间的门洞做左平移处理,预留出电视机的安装空间。
这里顺便提一下,厨房与卫生间的门洞做扩建及平移处理,都是经过专业机构指导确认的,所以并不会破坏墙体结构,大家在给老房装修改造时,也要注意到这一点。
客餐厅
图片
客厅看向进门视角,鞋柜做在了原玄关空间处,并在柜体侧面安装上了镜子,来实现全身镜的功能。而冰箱则是设计在了鞋柜的背面,这样既不会显得突兀,空间看起来也更加的整洁。
室内所有的墙面包括电视墙,都只刷了白色的乳胶漆。因为这不仅是最简单的处理方式,也是最能节省预算的。而客餐厅的地面,则是直接在原有的地砖基础上,铺上了木地板,从而增加脚感的舒适性。
图片
进门看向客厅视角,由于硬装部分都是以白色为主的,所以在白色灯光的衬托下,将整个空间营造的相当干净。而原木家具及绿植的配置,也让空间看起来没有那么的单调,反而显得很温馨。
图片
一组绿色的转角沙发贴着墙角摆放,不仅尺寸十分的符合,也起到了点缀空间的作用。而沙发墙后面的矮柜设计,既可以提高收纳空间,也可以起到小背景装饰的作用。
图片
当书房原有的墙体拆掉之后,不仅解决了客餐厅的采光问题,空间也有了明显的通透性效果。而餐桌摆放的位置,不仅起到了空间划分作用,且动线也十分的不错,完全没有拥挤感。
书房
图片
靠窗而做的书桌,不仅完全将空间给利用起来了,也预留出了足够多的活动空间。而右边一组窄柜设计,既可以起到一定的收纳功能,也能起到一点装饰作用。比如后期给墙面挂满照片,既能烘托出温馨的气氛,也能解决墙面留白问题。
图片
纵观整个客餐厅,当卧室的门打开后,采光完全没有一点问题,而以白色作为主色调,也将空间表现的十分简洁干净。和之前的效果相比,不得不说反差还是非常大的。
厨房
图片
虽说厨房的空间并没有做改动,但把门洞扩宽之后,空间看起来明显宽敞多了。而在橱柜布局上,则是将原先的L形结构改成了U形。即便左边的柜体深度有限,但多少也弥补了一点收纳功能,且不会对活动空间产生影响。
图片
厨房还有两个细节处理很不错,一个就是给橱柜做高低错层结构,显得十分人性化。另一个就是在色调搭配上,为了不显得出单调感,将上柜与下柜之间的墙面铺上原木色的瓷砖,既平衡了空间色彩,也能与外面做到统一。
主卧
图片
主卧衣柜的设计非常有意思,采用了上下分体式,中间留空的结构来处理的。而这样做的原因,一是因为门头上也做了柜子,所以分开处理,可以使柜子显得更加轻盈,避免出现压抑感。二是床头两边并没有配置床头柜,所以中间留空的位置也可以起到床头收纳的功能。
图片
床头两边的黑色壁灯设计,也在整个白色空间中,起到了点缀作用。
图片
阳台整体是以榻榻米的结构来设计的,并且将左边做成了衣柜,右边做成了书桌。这样既能再次增加主卧的收纳功能,也解决了休闲及办公需求,非常实用。
儿童房
图片
考虑到现在还没有孩子,所以只是给儿童房准备了一组大衣柜,而像其它家具及装饰准备以后再配置。毕竟现在配置也属于一种隐形浪费,且会增加目前的装修预算压力。
卫生间
图片
卫生间比较常规,但在布局上也做到了细节。比如台盆悬挂式安装,地面增加挡水条功能,镜柜底部配置灯光等。
本案例在装修改造上,可以说是最简单最普通的了,也是比较常见的。但却能通过灯光以及一些辅助色的点缀,表现出非常干净的视觉效果,还是挺让人意外的。所以大家在装修时,也可以来参考一下。