118㎡现代简约,简单装修与布置,精致搭配设计,也有优雅气质

在这套118平米的现代简约风格装修案例中,整体空间以简约黑白灰的搭配布置,摈弃繁杂的设计,以迎合年轻人对生活空间的舒适与轻松态的追求,提供了一种简约轻盈的生活氛围空间。
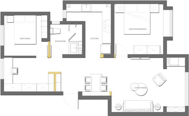
平面布置图
图片
客厅
图片
▲客厅空间整体灰色的地砖垫上灰色地毯,布置米白色布艺沙发,木质小资范的茶几,木饰面做电视墙设计,营造出一种简约大方的舒适氛围。
图片
图片
▲灰蓝色的沙发墙,布置米白色布艺沙发,还有黑白配的边几与装饰画,结合木色茶几与休闲椅,整体布置简约而舒适。
图片
▲电视墙以木饰面为背景,电视墙上还装上隐形门,让空间简洁而又实用。壁挂电视机与悬空的电视柜搭配,整体设计显得简约自然,令人轻松舒适。
图片
图片
图片
图片
图片
▲软装细节也是简约闲适为主,为主人提供了一个轻松自然的生活空间。
餐厅
图片
▲餐厅空间简洁为主,布置黑色的餐桌,还有小资的餐桌椅,让用餐空间显得端庄而闲适。
图片
▲餐厅旁边的墙面做了一个吊柜+凹槽,把餐桌嵌入到凹槽内形成一体的视觉感,同时保持宽敞的动线通道;而人多的时候也可以把餐桌挪出来,增加餐桌台面空间。
图片
▲餐厅旁的凹槽上方,是一个带有茶色玻璃门的餐边柜,摆放装饰品与藏酒,还能以柜门格挡灰尘,黑色视觉也与餐桌相呼应,整体空间感更加成熟高端。
图片
▲独特的吊灯,也是黑色的主体设计,使得用餐空间显得更加小资优雅。
厨房
图片
▲简约的除非,以灰色地面墙面基础,定制木色橱柜与白色吊柜,吊柜底部都加入了灯带,使得操作台面更加明亮方便,让做饭空间也有着舒适轻松的体验。
过道
图片
▲过道木饰面+灰色的视觉感,结合客厅暖灰色窗帘的引入,让空间充满惬意自然的轻松氛围。
书房
图片
▲书房空间相对紧凑,以木地板为基础,左边定制一个收纳柜,右边是灰色的乳胶漆墙面,中间靠窗布置悬空书桌,搭配百叶帘的设计,让办公氛围显得轻松而又自然。
卧室
图片
▲卧室的空间也是简约为主,布置灰色皮艺床,在床尾的衣柜上,中间留空一层,加入了一个木色的抽屉,搭配灰色素雅的窗帘与床单,让卧室氛围也更加年轻舒适。
图片
▲木色床头柜,结合长杆造型的床头吊灯,也让卧室氛围显得更加小资优雅。
次卧
图片
▲次卧空间也是简约为主,床头靠背是灰色的设计,两侧床头柜与衣柜定制成一体的设计,把床头柜的台面延伸到衣柜中空区域,木色与白色的定制柜组合,结合灰色床靠与窗帘,整体空间给人以轻松自然的简约感。
卫生间
图片
▲卫生间在雅白的墙面地面砖的基础,定制黑色边框的淋浴房,木色洗手盆柜,结合带光圈的梳妆镜,让洗漱空间也现代优雅而舒适时尚。
图片
▲洗手盆后方,加入几个壁龛,洗漱用品可以收纳于此,保持空间的简洁与大气。
阳台
图片
▲阳台以定制收纳柜,把洗衣机+烘干机叠放的设计嵌入柜子中,左侧是木色的开放收纳架,可以方便洗衣液之类的物品摆放,右侧封闭的柜子,主要收纳杂物等物件。
设计:清和一舍 ,点评:设计馆