月供33万的房子考虑么?这家公司把老板设计的亿元样板间拿出来抵债了

每经记者:陈梦妤 每经编辑:魏文艺 甄素静 李净翰
“直通商学院”,
中国财经院校报考权威平台;
10,000,000+数据精准荐校;
30+名校直播引路;
点亮财经学子职业生涯
图片
全球新冠疫情数据,请下滑到文末查看
月供33万元的房子考虑一下吗?
这两天,一直被传“跑路”的京城知名开发商山水文园又上拍了一套别墅,800多平方米,起价1.05亿元,8月20日起拍,市场评估价1.8亿元,相当于5.8折,保证金2104万元。
按第三方平台的测算,这套别墅首付款就要5320万元,按25年期贷款计算,月供就是33万元,税费611万元。
近日, 镁编来到现场,希望能开开眼界,但门卫没让进。不过该门卫对这套房号205的别墅很熟悉,“法拍1个亿呢,里面还有人,现在中介也都不让进,我有照片,你看看照片就好了。”
图片
信息来源:瀚海法拍
“这里早就不施工了”
为什么说这套房子这么引人注目呢?
房子的法拍经理告诉镁编,这套别墅是开发商山水文园名下的房产,还是样板间,开发商名下还有很多资产都在拍卖。另外,这套别墅是山水文园李老板的得意之作,叫游艇•锚别墅,据说他是发明人,也是主设计师。
名字有些拗口,户型图也很有意思,但联想一下李老板当年的海军服役经历就可以理解了。根据山水文园的说法,这可是世界首个受《保护工业产权巴黎公约》保护的建筑产品专利。乍一听有些玄乎,似乎业界很多人也不知道,这一公约的保护范围是工业产权,包括发明专利权、实用新型、工业品外观设计等,1985年3月19日中国成为该公约成员国。
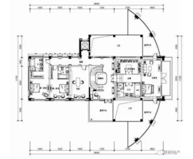
图片
山水文园游艇•锚别墅二层规划图 图片来源:瀚海法拍
在品牌的宣传资料里,山水文园对这一别墅的介绍可谓穷尽溢美之词,其可在4分钟内由原有3层建筑物变成4层,并可在相同时间内将重达70吨的泳池伸出湖面4米,与湖相融,瞬间成为室内外泳池。
“锚型别墅意义在于将人类对建筑业不动产的定义颠覆性地变成了动产,这一革命性的创意将建筑作品由凝固的艺术变成可变化的建筑艺术,同时又给予了人们视觉上的极大享受。”
法拍资料里还说,房子差价很大,7000万元起,属于收藏级别的别墅。
不过镁编绕着小区走了一圈,周围的环境似乎少了点一般人眼里亿级豪宅该有的样子。底商大多处于空置状态,要么就是挂牌转让的,很多商铺都撤掉了招牌,或者把公司名喷上了黑漆,临街的北京潮友汇生活广场招商中心广告还在,但早已大门紧锁。通道口一侧,半掩的门里坐了一位保安,他告诉记者“这里早就不施工了”。
图片
临街的北京潮友汇生活广场招商中心广告还在 (图片来源:镁编 摄)
维权时才知道,几百万还只是小打小闹
山水文园的法拍房可不少,镁编留意到,去年仅瀚海法拍就有14套,市场价在1040万~2700万元,而且还挺抢手。
而像前文这种起价“1个小目标”量级的别墅,在山水文园西园(别墅区)还有几套。
镁编留意到,有一套533平方米的4室2厅别墅,挂牌价9999万元。房子的置业顾问说,业主准备置换去后沙峪,所以想把这套房子卖掉,还主动降了2500万元。
看看,有钱人就是这么豪横,一套房子降点价,就相当于普通人的好几套房子。
图片
山水文园部分法拍房源 图片来源:瀚海法拍
据置业顾问介绍,山水文园西园大部分是出租的房子,自住的很少。至于小区的成交,“很少,要等机遇。”
斗胆看了下西园的租金,305平方米的4室2厅别墅,每个月是45000元。镁编发现,最近一个月,在贝壳找房上新挂牌的山水文园房源就有19套,目前还挂牌的则有83套。最近这一套是7月17日上新,而上次成交已经是2008年了。从挂牌信息看,这套房子为243平方米的4室1厅,房款是1946万元,但是光抵押款就有900万元。
贝壳找房上新挂牌的山水文园房源信息
在各大二手房网站,山水文园最近也新上了不少房源,有两套打包一起卖的,个别还打上了“急急急”的标签。为什么这么多业主急于出手?这可能和开发商最近这一年的表现不无关联。
图片
山水文园空置的底商 图片来源:镁编 摄
山水文园这个项目,坐落在北京东南四环里黄金地块,早年间拿地的时候很便宜,李老板一直舍不得都拿出来卖,到现在的开发周期已经10多年了。但问题就在于,如今这个土地证也没拿全的项目,几乎成为文山水文园最优质的资产了。
就在去年底今年初,这个小区又新开了第5期,名为山水文园九御,霸气的名字,还是准现房。冲着山水文园早年间积攒下来的人气和口碑,很多人花了大价钱买房。但最近他们发现自己已经联系不上开发商,去维权的时候才知道,自己那几百万元还只是小打小闹,多的是上千万元甚至几千万元的大户。
据镁编了解,九御从2014年就开始建设,2016年主体8栋楼就已经基本建成,但赶上又一波房价大涨,李老板想捂捂,搏一搏开盘12万元+/平方米,而当时周边的房价大概也就是每平方米6万~7万元的水准。
但这一捂却捂出了问题。此后由于大手笔做文旅,山水文园的资金出了点问题,加上九御还被抵给了长城信托,这些买了5期房子的业主发现,不仅网签迟迟没下来,正式的售楼合同也迟迟未给到手。在一些二手房交易平台,中介自己也不否认,山水文园5期的新房有点问题。
再后来,公司发不出工资、内部大裁员、老板跑路、十几万块猎头费也付不起等新闻全出来了。去年12月,山水文园只派了一位负责人出来向媒体表态,集团没有大范围裁员,下一步将引入合作伙伴,处置优良资产,加快存量楼盘的销售去化,包括部分轻资产输出的尝试,加速现金回流。
现在,山水文园被越来越多合作方和业主告上法庭,一次次成为失信被执行人,传说中李老板自掏腰包举办300万元奢华生日宴那天,可能是他这两年多来最开心的时刻。
记者|陈梦妤编辑|魏文艺 甄素静 李净翰 肖勇
每日经济新闻