不论是开发商还是购房业主,这个选楼小技巧您必须知道……

图片
1、分享一个选楼案例:高房价下买房,大家应该都知道这样一个逻辑:当你看好某一个楼栋时,即便户型一模一样,东首户也往往是要比西首户贵上那么一些的。理由1,风水问题。理由2,西晒问题。理由3,众口铄金。
但凡事并无绝对,就比如上面这个楼盘,当9#楼的东南向有比它还高的6#楼存在时,其东首户(低区)的居住投资价值就没那么明显了。特别是夏热冬冷、寒冷、严寒地区。南向、东南向遮挡最是要不得。
反观9#楼的西首单元,不仅比南向的10#楼高,视野更为开阔;其背后还有8#楼做靠山。因此,对于9#楼的选楼策就应该是优先考虑西首单元的西首户,然否?
为什么要聊这么简单的选楼话题?因为刚完成的这个选楼案例有点意思,特此放上来给大家提个醒。另外,我正文要聊的这个购房技巧多少跟这个选楼策有点关系。
话不多说,不论是房开总还是计划买房的准业主们请注意,下文值得细品。碰不上也就罢了,若是遇上了,寥寥几百字定能为您解决大麻烦。
图片
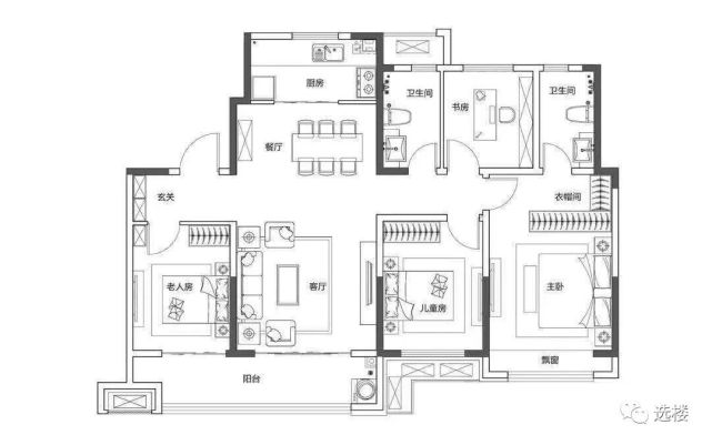
二、正常情况下,不论是房地产开发商还是准业主们,其关注的点或是所能接触到的往往就是如上图所示的常规户型图。
布局好不好,房间大不大,南北是否通透,得房率是否足够高,有没有赠送面积等才是他们最为关注的核心。确实,他们已经被高地价、高房价折磨的身心俱疲了。
至于如下图所示的单元户型图,往往没有多少人会去在意。但你们知道么?在开发设计或是买房前,看一看单元户型图,其实是你们最应该做的事,因为小小一张单元户型图不仅准确的告诉了你住户之间的关系,还将楼电梯位置、各类水电管井、消防通道消火栓都标示的清清楚楚。
图片
看到我画的圈圈没?这个有一点点凸出墙面的小东西就是消火栓。那个红赤赤,一圈一圈盘在那,不允许封闭更不允许遮挡,虽能救命但看着就碍眼的消火栓。
对于准业主们:东首户的钱比西首户贵个三两万是很正常的事,但如果每天上下班一进电梯就要正对这么一个消火栓,感官如何?反观西户,进了电梯就是一排储物柜,买房还便宜,其感官又是如何?
我想,期房的魅力大概就在于此。
而对于房地产开发商:同样的道理,你们既然选择了东首户比西首户贵这一定价模式,你们总得为东首业主多考虑一些吧?我不强求你们把消火栓移到其它位置,因为那样设计起来比较麻烦,呵呵。但哪怕是镜像一下,也是对东首业主的一个交代吧?
这么不伦不类,信不信一交房就是各类麻烦不断?你们这就是纯粹的给自己找麻烦,设计院亦然。
图片
三、写在最后:你们可以说我小题大做,可以认为东首业主多掏钱买个进门对着消火栓的感受无所谓,可以认为开发商跟设计院如此随意不作为无所谓。但作为首席楼盘户型分析师,出于职业道德,我觉得有所谓,所以,仅此而已。
以上分析大家觉得如何?高房价下买房,若遇此类单元楼,您会多掏钱买东首户么?欢迎留言探讨。更多独立楼市观点,超实用购房选楼策略,请关注首席楼盘户型分析师。